查看完整案例

收藏

下载
项目名称:荷兰L形住宅改造
位置:荷兰
设计公司:Niels Olivier Architect
摄影师:Arne Olivier Fotografie
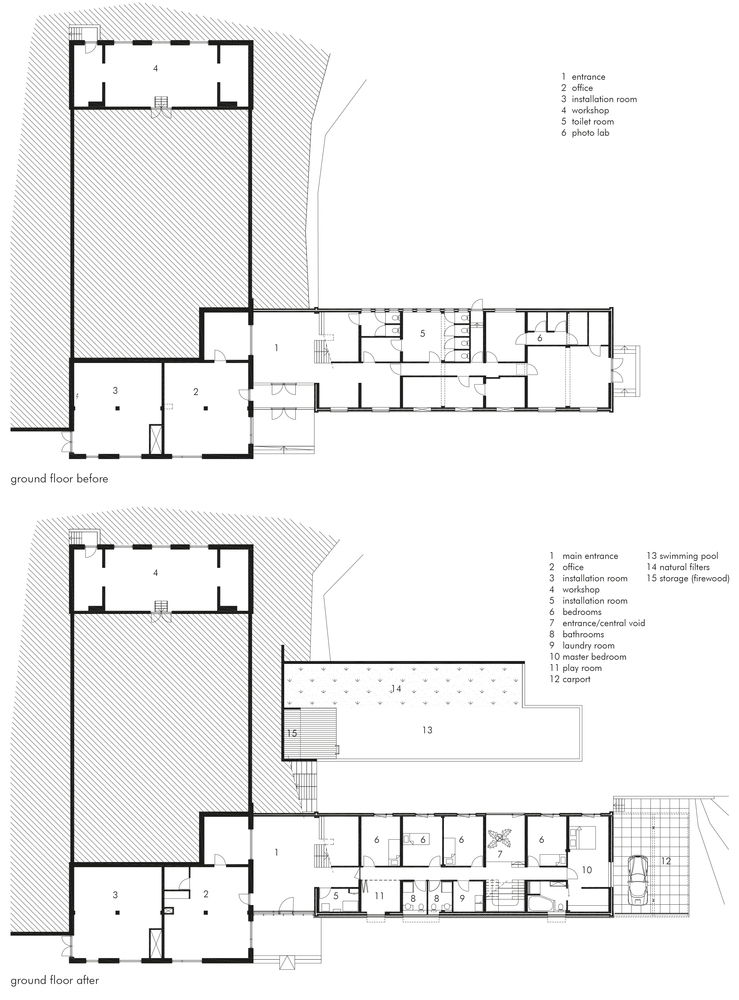
阿纳姆城正北方的树林里一处名为“Buitenplaats Koningsweg”的新社区正在开发中。这个从前的军事区域将被改造成一块文化飞地。这个荷兰语中叫做“De Scharnier”、英文里叫“The Hinge”的建筑坐落在这个社区的中心。建筑体由平面上垂直相交的两部分组成,曾经一侧是军事区域剧场另一侧是饭店,而现在它成为了一位知名艺术家的家,也是作坊、工作室。军事区域中的大多数建筑建于二十世纪六七十年代,年久失修,但出于环保,人们决定尽量改造并再利用它们。L形屋不得不翻新外表皮和屋顶,为此我们选择了相互对比的钢材与木材。现在所有的外墙都按荷兰建筑规范做了保温处理。改造中使用到的颜色,包括各种色调的灰色,以及采用有强烈工业气息的材料都是由总体规划指定的。这也意味着所有原有的砖墙都要漆成灰色。
整个建筑体由一个节能炉系统供暖。房顶的太阳能板使房子几乎做到零耗能。游泳池不加热,由植物、砂石等自然滤网净化。建筑体南侧原本非常不适合作为家庭住宅,它由一系列厕所间、带吧台的饭店厨房和一个用餐区域构成,分为两层。因此,我们实施了两处主要介入。首先我们在房屋中间插入了一段空白空间,通过楼梯连接花园和一层的客厅。这个空白空间将一楼之前的巨大饭店区域分隔成两个独立空间:家庭厨房和客厅。卧室和洗手间在底层位于空白空间两侧。然后我们在房子一端的一层增添了一个餐厅和阳台。支撑屋顶的木质桁架被剥去数层颜料,刷上透明保护漆,展现出木质本身的温暖色调。
房屋表皮被部分翻新。北面面向安静封闭的私人花园。细长的铝制窗框被插入在原有的结构中。充沛的日光照入室内,但又不会在夏天使屋子过热。在这一侧六十年代留下的建筑魅力犹存。住宅的南侧面向一条公共马路和一个小餐馆。为了保证隐私,这一侧立面更加密闭。老化的原有表皮与屋顶由保温良好的现代木制与钢制材料取代。比例独特的大方窗户和水平长窗是这次改造的亮点。窗户配备有小孔的电控折叠板,使阳光透过的同时防止外面的人窥入。主入口大厅是一个分散的体量,将住宅与办公室、作坊相连。朝南的大窗户和正门都被水平百叶窗遮盖,它们的垂直框架由保温固雅木(Accoya wood)制成。
荷兰L形住宅改造外部实景图
荷兰L形住宅改造外部实景图
荷兰L形住宅改造外部实景图
荷兰L形住宅改造外部实景图
荷兰L形住宅改造外部实景图
荷兰L形住宅改造外部实景图
荷兰L形住宅改造外部实景图
荷兰L形住宅改造外部夜景实景图
荷兰L形住宅改造内部实景图
荷兰L形住宅改造内部实景图
荷兰L形住宅改造内部实景图
荷兰L形住宅改造内部实景图
荷兰L形住宅改造内部实景图
荷兰L形住宅改造内部实景图
荷兰L形住宅改造内部实景图
荷兰L形住宅改造平面图
荷兰L形住宅改造平面图
荷兰L形住宅改造立面图
荷兰L形住宅改造剖面图
荷兰L形住宅改造剖面图
客服
消息
收藏
下载
最近























