查看完整案例

收藏

下载
项目名称:英国赫尔姆活叶街房屋
位置:英国
设计公司:Mecanoo
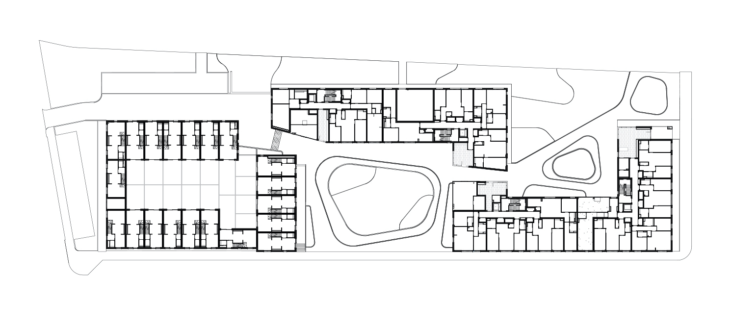
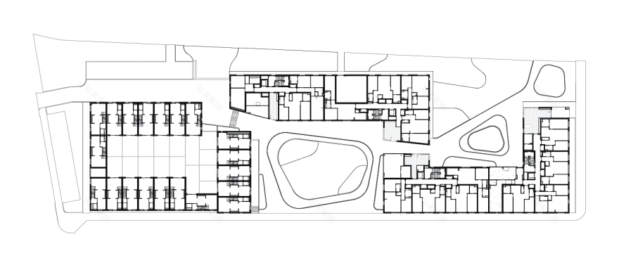
赫尔姆(Hulme)的叶街(Leaf Street)周围地区,就在曼彻斯特市中心之外,拥有市区更新的历史。第二次世界大战后,典型的维多利亚式排屋被拆除,以为臭名昭著的Hulme Crescents 腾出空间,Hulme Crescents是当时英国最大的社会住房项目。在1990年代,“新月者”被拆除,大部分居民区得到重建。叶子街上的Hulme Living是第四代城市更新房屋开发项目,将公寓和单户住宅合并为一个建筑群。在东南侧,该地块与通往曼彻斯特城市大学的社区和其他建筑物的主要道路相接。按照这种规模,住宅综合体扩展到了五层公寓。紧凑的建筑体积蜿蜒穿过整个地块,并向北逐渐缩小。该开发项目这一侧的三层家庭住宅与相邻的1930年代住宅相当。砖块建筑是与地块接壤的各种结构之间的连接元素。建筑物的S形创造了两个半封闭的公共绿地。入口法院转向Hulme拱桥,并具有花园广场的特征。面对叶街是一个可以玩耍的公园区。公共空间通过建筑空间中的大门相互连接,这也标志着公寓的入口。复杂的建筑群保留了该地块上许多现存的树木。各种各样的植被确保居民可以经历所有不同的季节。该地块上的自行车道和人行道与现有的基础设施和非正式的人行道相连。这样,建筑群及其周围的公共空间形成了一个统一的城市规划。“在80年代创立Mecanoo时,社会住房是我自己的一个极其重要的声明;社会住房也应该美丽宜人。尽管这些年来我们改变了工作重点,并绘制了许多其他类型的图谱,但社会住房仍然和以前一样重要。现在和将来仍然与城市更新有关。
英国赫尔姆活叶街房屋外部实景图
英国赫尔姆活叶街房屋外部实景图
英国赫尔姆活叶街房屋外部实景图
英国赫尔姆活叶街房屋外部实景图
英国赫尔姆活叶街房屋外部实景图
英国赫尔姆活叶街房屋外部实景图
英国赫尔姆活叶街房屋外部夜景实景图
英国赫尔姆活叶街房屋外部实景图
英国赫尔姆活叶街房屋平面图
英国赫尔姆活叶街房屋立面图
英国赫尔姆活叶街房屋立面图
英国赫尔姆活叶街房屋立面图
客服
消息
收藏
下载
最近















