查看完整案例

收藏

下载

翻译
Architect:JDAP Design - Architecture - Planning
Location:Park Mladen Stojanović, Dr. Mladena Stojanovića, Banja Luka 78000, Bosnia and Herzegovina; | ;View Map
Category:City Halls;Concert Halls;Cultural Centres
The site for the new Culture and Congress Centre at Banja Luka in Bosnia and Herzegovina lies at the edge of the town today, as an anchor for the developing city to the East. As part of the city’s strategic goals of developing as a South East European centre for culture, tourism and services, the design brief emphasised a facility that would have the flexibility to accommodate multiple activities, events and functions within it. It also laid emphasis on the Centre being a symbolic entity of the renewed city.
JDAP’s approach focused around transforming the site into an inviting and enriching part of the city, where citizens can socialise, ideate, create and collaborate in a setting that encourages conviviality. Various activities retain their own domain, but form linkages across diverse spaces both through visual and physical connections. The Centre makes an emphatic gesture of openness to the city by stepping down towards the street and throwing open an entrance gateway over 50-feet wide to draw people in. Vehicles are discreetly taken to the rear, giving priority to pedestrians and cyclists, who are taken up by a wide stair to the main public level of the building.The movement of visitors is kept intuitive, leading to a central hall that is the main orientation zone and hub of activity.
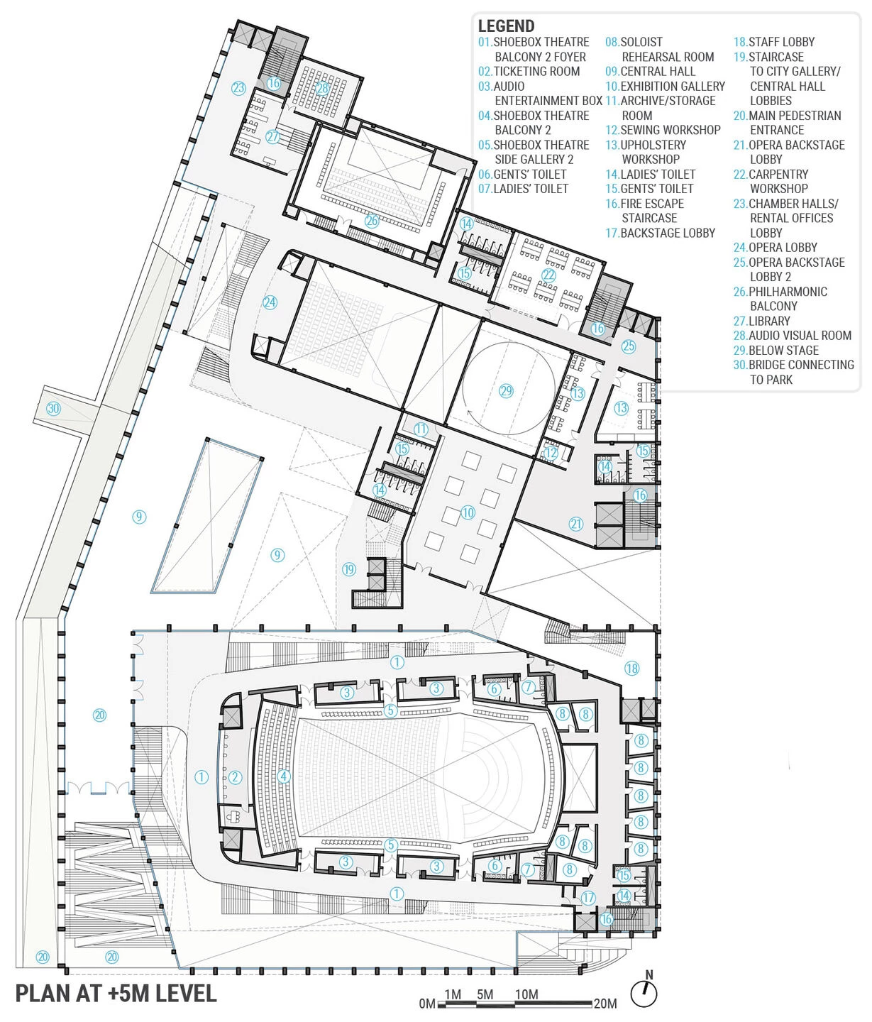
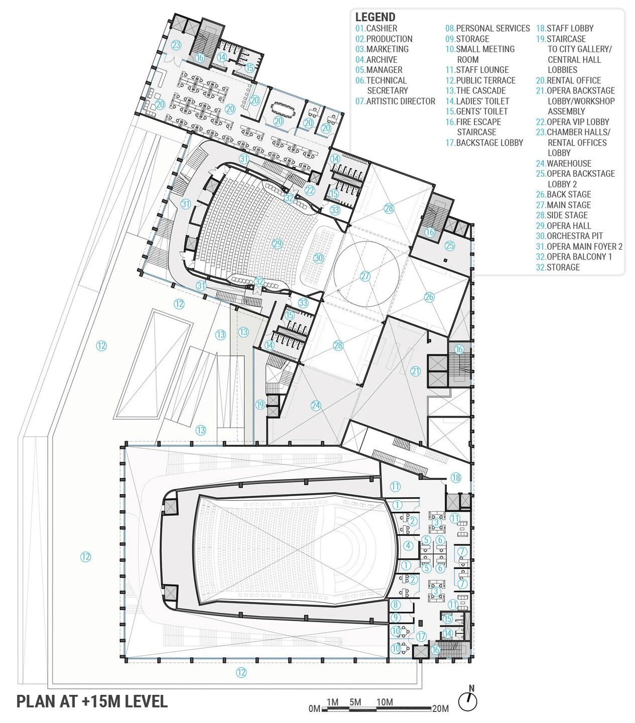
The two main theatres - the 700-seater Opera theatre, and the 1500-seater Concert Hall are oriented facing West, with backstage access from the new street to the East. Each of these theatres aligns with two different city grid orientations to the North and South of the site respectively. The Opera theatre is designed for optimal acoustic performance and visual proximity of audience and performers in a compact bulb shaped format. The Concert Hall is in the ‘shoebox’ format, designed with three levels of balconies over the main parterre, ensuring a compact form with width of hall restricted to less than 20 metres and no seat more than 25 metres from the stage.
A key differentiator for this Centre is the relationship between backstage and visitor areas. A triple height lobby cuts across diagonally from the central hall, past the exhibition halls connecting backstage areas to the main public spaces. This enables both theatres to have contained backstage facilities, yet allows for an interaction between performers, administrators, press and general visitors creating an atmosphere of openness and sharing.
A place for people would only be successful when it embeds itself into the city’s landscape. The Centre is developed with a strong connection to the Mladen Stojanovic park to its East, helping the Centre and the Park to become natural extensions of each other. Visitors are led from the park, on an elevated path across the street to an open plaza, pulsing with activity at the heart of the Centre.The Cascade becomes a space for casual recreation, a place to gather for a coffee while looking across at the park, and a lookout point, that offers unbroken views back over the city. The Cascade draws up any casual visitor from the park or the street to the Rooftop City Gallery with its changing roster of events and activities, also offering glimpses of activities within the Centre itself.
In a post-pandemic world, the new Banja Luka Congress and Culture Centre becomes a place where communities come together in the backdrop of culture. Where every individual may find a place and activity of her own interest, making it a joyous and exhilarating space for the city to come together in true symphony!
▼项目更多图片
客服
消息
收藏
下载
最近


















