查看完整案例

收藏

下载
项目名称:泰国遮阳屋
位置:泰国
设计公司:阿约特和联合设计公司
可能减少占地面积,房子因此被改造成三层楼,停车场分别放在前面。这一新策略有助于将绿地面积增加60%,是曼谷绿地法规最低要求的两倍。加上房子的每个角落都增加了袖珍花园和绿色屋顶,整个房子的绿色空间增加到90%。当植被完全生长并覆盖了房子的所有高度时,绿地面积将比其初始位置大150%。因此,它将满足业主和建筑师的初衷——通过在居住者和周围的自然环境之间建立一种终生的交流,最大限度地增加现场的自然景观感知,从而使房子的阴影越来越大。
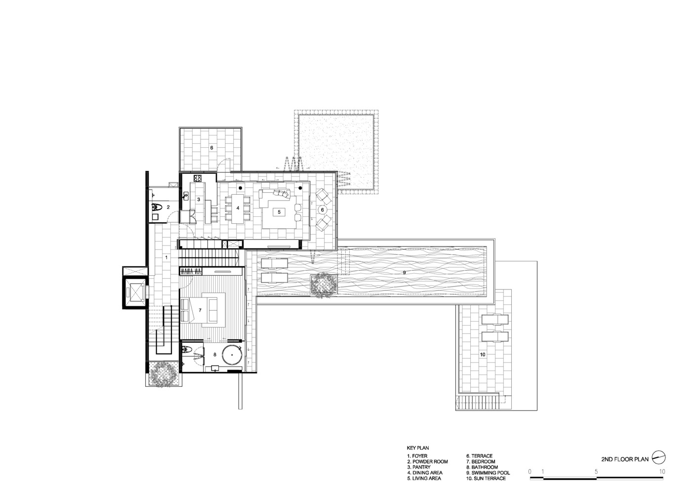
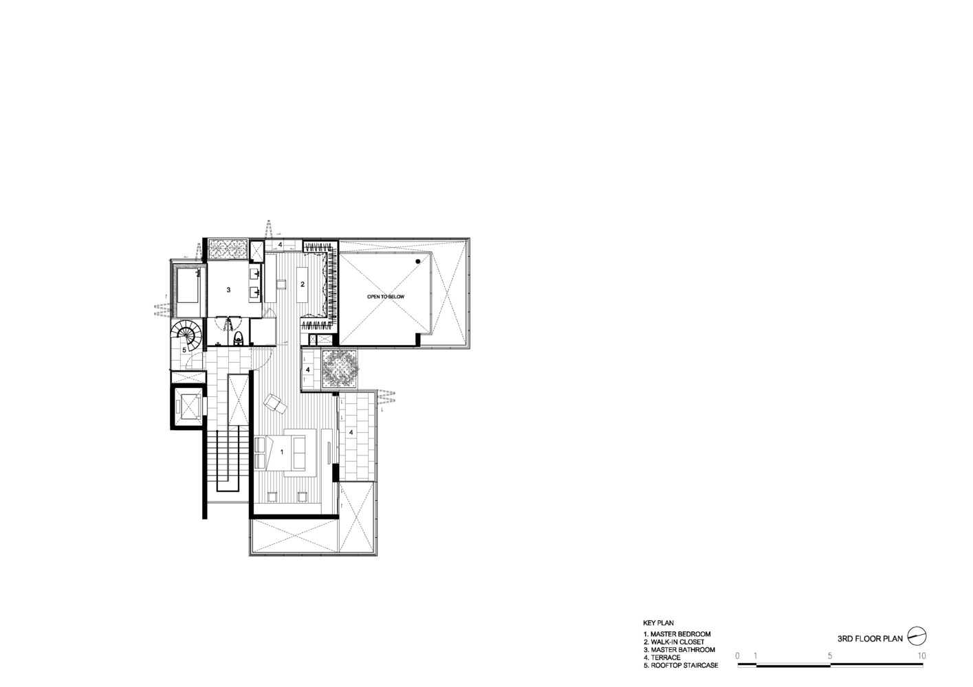
如何减少建筑占地面积的设计细节-建筑师们最初的计划是在二楼连同家庭生活空间一起举起并放置一个游泳池,在一楼留出最开放的区域用于景观美化和维护房主的隐私。这创造了一种新的感官体验,将无缝无限的水池嵌入树叶的云朵中,创造了一种与远处天空的视觉联系。在游泳池中游泳时,你可以触摸并享受置身于绿色和蓝天之中。AAd设计团队还提出了一种不同类型的房间布置,每一层都将完全在自己的内部运作。每个生活单元都配备了套房所需的所有功能,如浴室、厨房和餐具室、花园和露台。一楼被指定为“花园别墅”客房单元。游客可以选择通过主门厅进入这间套房,或者通过靠近瀑布的侧门直接进入套房。其余的生活空间需要更多的隐私和安全,只保留给房子的主人,放置在较高的楼层。二楼的“泳池别墅”套房设计成嵌在树丛中。它从地板到天花板的窗户都集中在一种方法上——一个雕塑鸡蛋花和游泳池。三楼单元位于树冠上方,可以看到苏瓦那普机场附近的原始景观。
O多功能穿孔立面(模仿树叶)和温度控制通过把所有的生活空间放在上层,所有的房间都像一个树屋。树叶和灌木丛不仅为居民提供盛开的点心,也是一个天然的缓冲,保护房子免受外人的眼睛。客厅的正面仍然保持着AAd正面设计的特征:使用空气间隙和穿孔铝板来减轻房子的热度,并允许阳光和空气流通通过。在夏季测量温度时,这些面板有助于将室外的39摄氏度冷却到室内的26摄氏度。立面孔的图形是模仿覆盖的树叶创造性地冲压而成的。白天,当阳光照射在房间里时,它会产生与坐在树下吸收阳光一样的效果,阳光透过树叶层照射进来。孔的大小也根据内部功能的使用情况而定。例如,客厅穿孔立面的洞在站立层和沙发座位层被打得更大,而卧室内睡眠层的洞被打得更小,以保护隐私。晚上,当内部光线穿过这些洞时,生活区将变成一盏灯笼,指引回家的路。然而,由于AAd的精心设计,由于打孔的程度,外人将无法看到里面是什么。
钢棒随着树木的生长而发展/神殿和光明+阴影+阴影-这座房子最引人注目的元素之一是连接在一起的白色细长钢棒,就像一个雕塑般的刚性框架。它形成几何体积,从入口楼梯台阶到房子的主门厅形成一个直接的连接。这个雕塑般的细节不仅包围了一个室外露台,还构成了一个焦点,使道路更直观,更能引发冒险。白色的连续框架创造了一系列的空隙和开口,吸引着游客。当走近大门时,一个荷塘似乎与眼睛相接,露出另一组站立在荷塘中间的坚硬框架。当客人在酒店内四处走动时,他们会看到意想不到的景观,并在穿过房子的过程中开始展现。除了用这种坚硬的框架来保护房子免遭抢劫之外,它的目的还在于阻挡外人的视线。由于重叠的设计技术,白色的钢棒创造了一种错觉,使框架看起来比实际密度更大。设计师倾向于使用这些刚性框架来悬挂不同类型的墙体材料。有些包围着坚固的墙壁,有些包围着不透明的部分,有些包围着透明的玻璃窗;这些都创造了房子周围不同的动态景观。
泰国遮阳屋外部实景图
泰国遮阳屋外部实景图
泰国遮阳屋外部实景图
泰国遮阳屋外部实景图
泰国遮阳屋外部实景图
泰国遮阳屋外部实景图
泰国遮阳屋外部实景图
泰国遮阳屋外部实景图
泰国遮阳屋外部实景图
泰国遮阳屋外部实景图
泰国遮阳屋外部实景图
泰国遮阳屋外部实景图
泰国遮阳屋外部实景图
泰国遮阳屋外部实景图
泰国遮阳屋外部实景图
泰国遮阳屋外部实景图
泰国遮阳屋外部实景图
泰国遮阳屋外部实景图
泰国遮阳屋外部实景图
泰国遮阳屋外部实景图
泰国遮阳屋外部实景图
泰国遮阳屋外部实景图
泰国遮阳屋外部夜景实景图
泰国遮阳屋外部夜景实景图
泰国遮阳屋外部夜景实景图
泰国遮阳屋内部实景图
泰国遮阳屋局部实景图
泰国遮阳屋内部实景图
泰国遮阳屋内部实景图
泰国遮阳屋内部实景图
泰国遮阳屋内部实景图
泰国遮阳屋内部实景图
泰国遮阳屋平面图
泰国遮阳屋平面图
泰国遮阳屋平面图
泰国遮阳屋立面图
泰国遮阳屋立面图
泰国遮阳屋剖面图
客服
消息
收藏
下载
最近









































