查看完整案例

收藏

下载
项目名称:美国卡洛威·里奇住宅
位置:美国
设计公司:桑德斯·佩斯建筑事务所
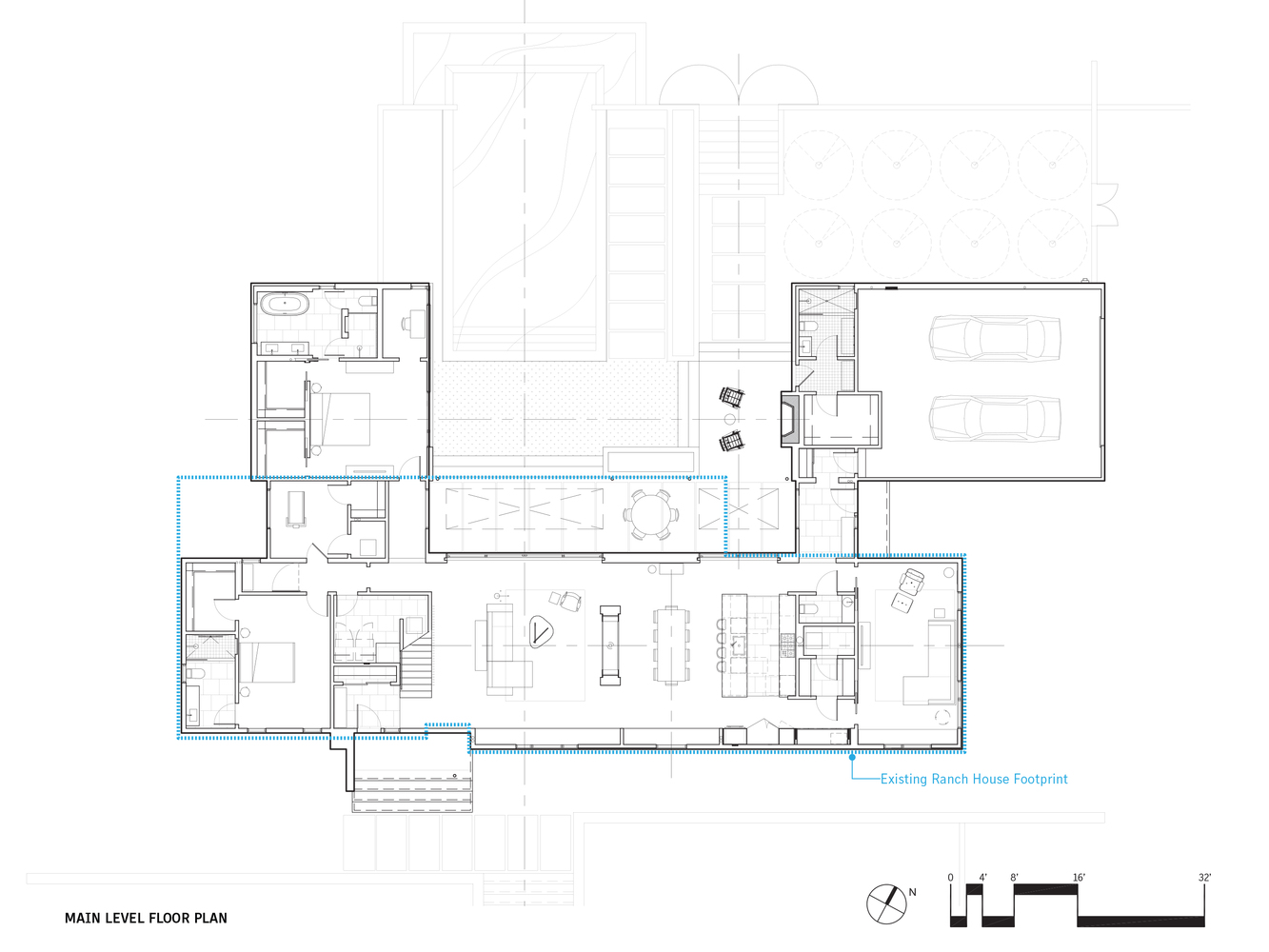
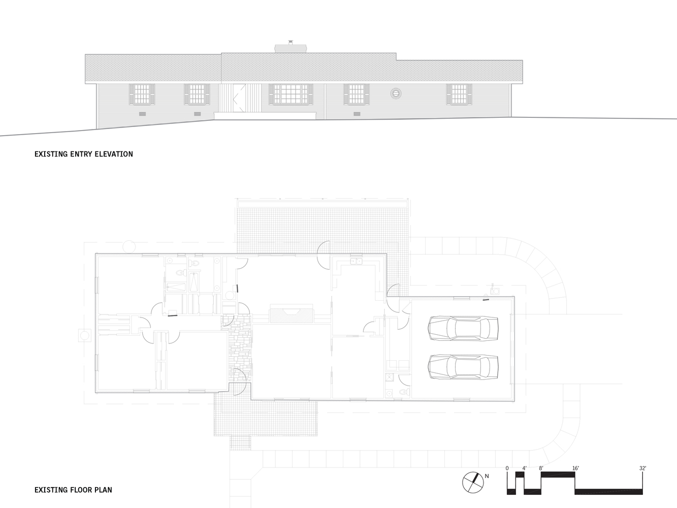
20世纪50年代郊区牧场式住宅的改造始于寻找一处没有风格基础的契约或限制的房产,这些契约或限制是位于客户目标区域内的许多住宅区所共有的。在完成了对没有这些限制的房产的详尽搜索后,一个有趣的房产变得可用了,在一个8英亩的山脊上有一个现有的农场房子,可以俯瞰烟雾山。早期的设计研究侧重于保护现有建筑的外壳,并在现有足迹之上和之外增加新的空间。额外的空间包括一个可以俯瞰新泳池的双高公共区域,以及由单层亭台构成的庭院——一个用于新主人套房,另一个用于住宅泳池房和车库功能。现有的牧场式住宅和两个单层的亭子被水泥灰泥覆盖,通过榫槽管道连接着深窗。上层添加的是一个反向板和板条壁板添加纹理和图案,与光滑的灰泥体积形成对比。
从一开始就很清楚,在郊区建造现代住宅的挑战中,这个项目将成为业主和建筑师的速成课程——这种背景主要包括建筑工地、投机性半定制住宅,以及一个有大门的社区网络,其中超大定制住宅位于分开的地产大小的地块上。在两年的时间里,建筑师与业主密切合作,审查邻里契约和限制,同时还会见了HOA设计审查委员会。这一努力的重点是作为客户资源的倡导者,帮助他们阻止对一个不允许他们为他们和他们的年轻家庭建造简单和适当的现代住宅的网站的投资。在最初的概念设计努力证明了客户选择的社区并不适合这个项目之后,建筑师随后建议寻找可以改造成他们想要的那种类型的旧的牧场式住宅。在这4年的过程中,所有者和架构师的耐心和承诺导致了一个项目,这个项目与通常在这种背景下发现的项目截然不同。
美国卡洛威·里奇住宅外部实景图
美国卡洛威·里奇住宅外部实景图
美国卡洛威·里奇住宅外部实景图
美国卡洛威·里奇住宅外部实景图
美国卡洛威·里奇住宅外部夜景实景图
美国卡洛威·里奇住宅外部夜景实景图
美国卡洛威·里奇住宅内部实景图
美国卡洛威·里奇住宅内部实景图
美国卡洛威·里奇住宅内部实景图
美国卡洛威·里奇住宅内部实景图
美国卡洛威·里奇住宅内部实景图
美国卡洛威·里奇住宅内部实景图
美国卡洛威·里奇住宅平面图
美国卡洛威·里奇住宅平面图
美国卡洛威·里奇住宅平面图
美国卡洛威·里奇住宅平面和立面图
美国卡洛威·里奇住宅立面图
客服
消息
收藏
下载
最近




















