查看完整案例

收藏

下载
项目名称:比利时的社会住房
位置:比利时
设计公司:Tom Vanhee工作室,Luk Van Neste 工作室
巢穴建筑共有4层和7个公寓楼。它结束了一排排排房,并标志着一条古老的蒸汽火车经过的城市中的一条绿轴。受到街道排屋的红砖,白色窗户和檐口的启发,我们还建造了带有红色马森工和白色窗户的建筑物。一楼有盖的入口使公共和私人之间可以过渡。此外,它还可以将建筑物停在建筑物附近,以供更多的老年人居住。每个房屋都有一个与居住空间有关的露台。我们通过在三个立面上分布阳台来创造更多的隐私。电梯和楼梯正通往地板上的公寓。在一楼,每间公寓都设有用于存放自行车或其他车辆的仓库。
比利时的社会住房外部实景图
比利时的社会住房外部实景图
比利时的社会住房外部实景图
比利时的社会住房外部实景图
比利时的社会住房外部实景图
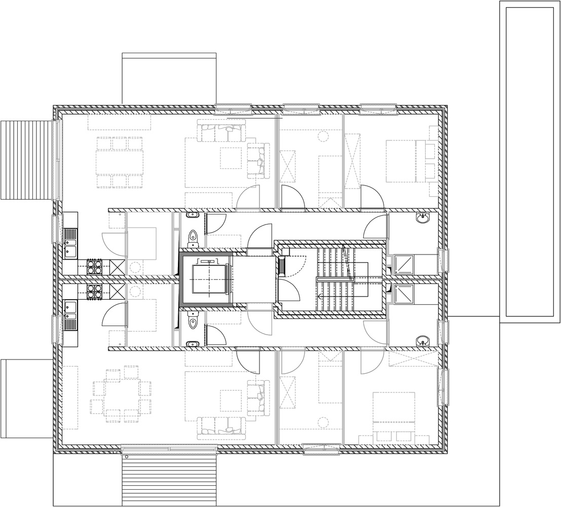
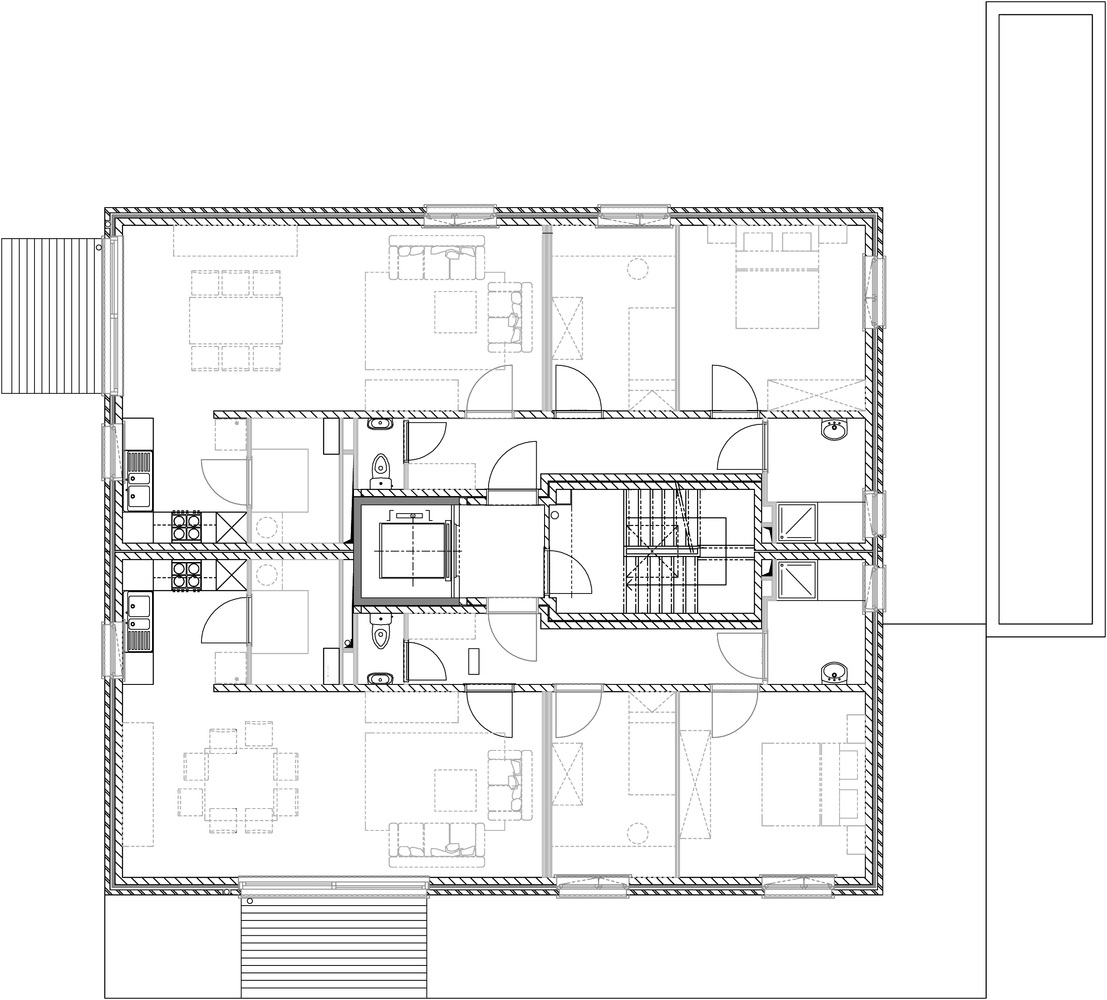
比利时的社会住房平面图
比利时的社会住房平面图
比利时的社会住房平面图
比利时的社会住房平面图
比利时的社会住房平面图
比利时的社会住房剖面图
客服
消息
收藏
下载
最近














