查看完整案例

收藏

下载
项目名称:瑞典海边岩石上的集装箱之家
位置:瑞典
设计公司:Ellsinger Arkibad
摄影师:Åke E:son Lindman
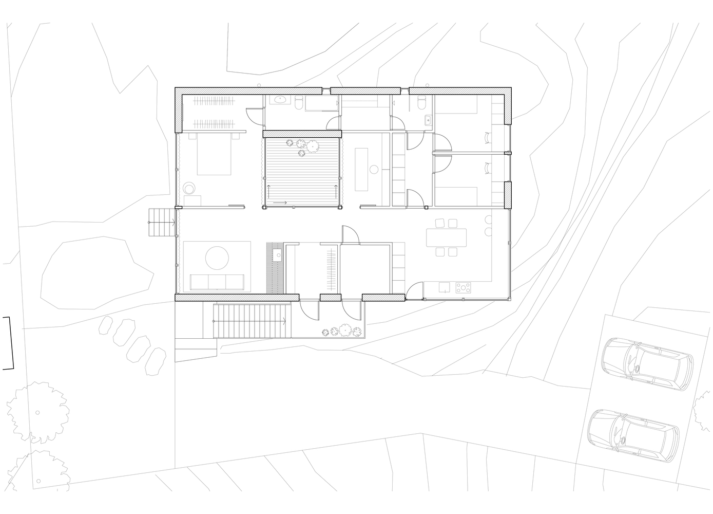
位于瑞典哥德堡西海岸的瑞典建筑师duo Mikael和Fanny Ellsinger完成了他们的第一个项目——由一个铝盒子组成的他们自己的家。由17根超薄柱子支撑,房屋柱子被浇铸在花岗岩下近一米深的洞里。凹凸不平的场地保持了原样,而红色的花岗岩为这座令人吃惊的建筑创造了一个展现自己的舞台。屋顶则坐落于外墙和建筑中心的三根木柱上。这栋房子给予了这对夫妇测试他们通常不会在客户项目中尝试的技术的机会。最重要的是,理性和功能性对外部和内部均产生了影响。铝板立面的低维护成本,是项目暴露在Kattegat海边中完美的选择。立面闪亮的表面反射着天空,并随天气变化而变化,从早上的冷蓝色逐渐演变到晚上的温暖金色。预算和时间是设计和材料选择中最重要的影响因素。屋顶结构在内部是可见的,允许Ellsinger省下粉刷天花板的时间和精力,而电线也是故意暴露出来的。内部材料和颜色的选择简单明了,尽量减少了选择的机会。松木、软木、白墙和黑白陶瓷创造了一种舒缓的氛围,与外面的暴风雨天气形成强烈对比。建筑由两个部分组成,一个是私人的,一个是共享的的。私人区域包括卧室、浴室和洗衣房,而其余部分是一个开放的体量,容纳了厨房和客厅。这个部分也包含一个较小的体量,即入口和储藏室。由于所有的东西都安装在一层楼中,在建筑中心的中庭设计的帮助下创建一个中心光源是很重要的,也可当做一个中央庭院。这也意味着出现四个新的立面和一个更灵活和有效的使用空间。在温暖的季节,它不仅能带来阳光,还能带来清爽宜人的环境。
瑞典海边岩石上的集装箱之家外部实景图
瑞典海边岩石上的集装箱之家外部实景图
瑞典海边岩石上的集装箱之家内部实景图
瑞典海边岩石上的集装箱之家内部实景图
瑞典海边岩石上的集装箱之家内部实景图
瑞典海边岩石上的集装箱之家平面图
瑞典海边岩石上的集装箱之家平面图
瑞典海边岩石上的集装箱之家立面图
瑞典海边岩石上的集装箱之家立面图
瑞典海边岩石上的集装箱之家立面图
客服
消息
收藏
下载
最近













