查看完整案例

收藏

下载
项目名称:浙江龙游后山头28号住宅
位置:浙江
设计公司:中国美术学院风景建筑设计研究总院
中国快速城市化的当下,都市新人的家乡老宅,区别于国外的独栋住宅,成为历史上可能最具有独特性的居住单元。它承载着父辈的乡村生活,同时也必须接纳数个子辈家庭每个节日往来于城市和家乡老宅,如候鸟迁徙。爷爷的柴米油盐,父母叔伯的家乡,和小朋友的年味,在每个春节时候达到一种饱和式的冲突混合。而这方方面面,都是候鸟之家需要探究的空间本质。在12*10米的基地内,人与人、人与家乡的深层关系都通过感官转化成为各种空间元素。魔方楼梯串联起一楼圆桌大餐厅,二楼立体家庭厅,三楼阳光茶室,最后到达半遮半透的大露台。室外的风景伴随着连续通透的公共空间,步移景异,随便一喊一家人都能听到,每个窗外都是旧时稻田远山,每步楼梯都有小孩的追逐身影。这些画面是设计的核心理念。生态设计仍然是乡村建筑营造的主旋律,木、石、泥、草仍然是乡村田舍的原材料。传统木屋架丰富了建筑细节,吸引燕雀归来;外墙掺入稻草的质感涂料以及当地石材的基座依旧与屋前水田亲近;院子里的菜圃就是鲜活的生活。就地取材是成本控制的关键,低廉的造价让生态设计具有普适性意义。一个三代人大家庭旋转在屋檐下庭院间,燕归,人还,看春来。就是中国乡村自建房的生命力。
浙江龙游后山头28号住宅外部实景图
浙江龙游后山头28号住宅外部实景图
浙江龙游后山头28号住宅外部实景图
浙江龙游后山头28号住宅外部实景图
浙江龙游后山头28号住宅外部实景图
浙江龙游后山头28号住宅外部实景图
浙江龙游后山头28号住宅外部实景图
浙江龙游后山头28号住宅外部实景图
浙江龙游后山头28号住宅外部实景图
浙江龙游后山头28号住宅外部实景图
浙江龙游后山头28号住宅外部实景图
浙江龙游后山头28号住宅外部实景图
浙江龙游后山头28号住宅外部实景图
浙江龙游后山头28号住宅外部实景图
浙江龙游后山头28号住宅外部实景图
浙江龙游后山头28号住宅外部夜景实景图
浙江龙游后山头28号住宅外部夜景实景图
浙江龙游后山头28号住宅外部夜景实景图
浙江龙游后山头28号住宅外部夜景实景图
浙江龙游后山头28号住宅外部夜景实景图
浙江龙游后山头28号住宅外部夜景实景图
浙江龙游后山头28号住宅内部实景图
浙江龙游后山头28号住宅内部实景图
浙江龙游后山头28号住宅内部实景图
浙江龙游后山头28号住宅内部实景图
浙江龙游后山头28号住宅内部实景图
浙江龙游后山头28号住宅内部实景图
浙江龙游后山头28号住宅内部实景图
浙江龙游后山头28号住宅内部实景图
浙江龙游后山头28号住宅内部实景图
浙江龙游后山头28号住宅内部实景图
浙江龙游后山头28号住宅内部实景图
浙江龙游后山头28号住宅内部实景图
浙江龙游后山头28号住宅内部实景图
浙江龙游后山头28号住宅内部实景图
浙江龙游后山头28号住宅内部实景图
浙江龙游后山头28号住宅内部实景图
浙江龙游后山头28号住宅内部实景图
浙江龙游后山头28号住宅内部实景图
浙江龙游后山头28号住宅内部实景图
浙江龙游后山头28号住宅内部实景图
浙江龙游后山头28号住宅内部实景图
浙江龙游后山头28号住宅内部实景图
浙江龙游后山头28号住宅轴测图
浙江龙游后山头28号住宅剖面图
浙江龙游后山头28号住宅剖面图
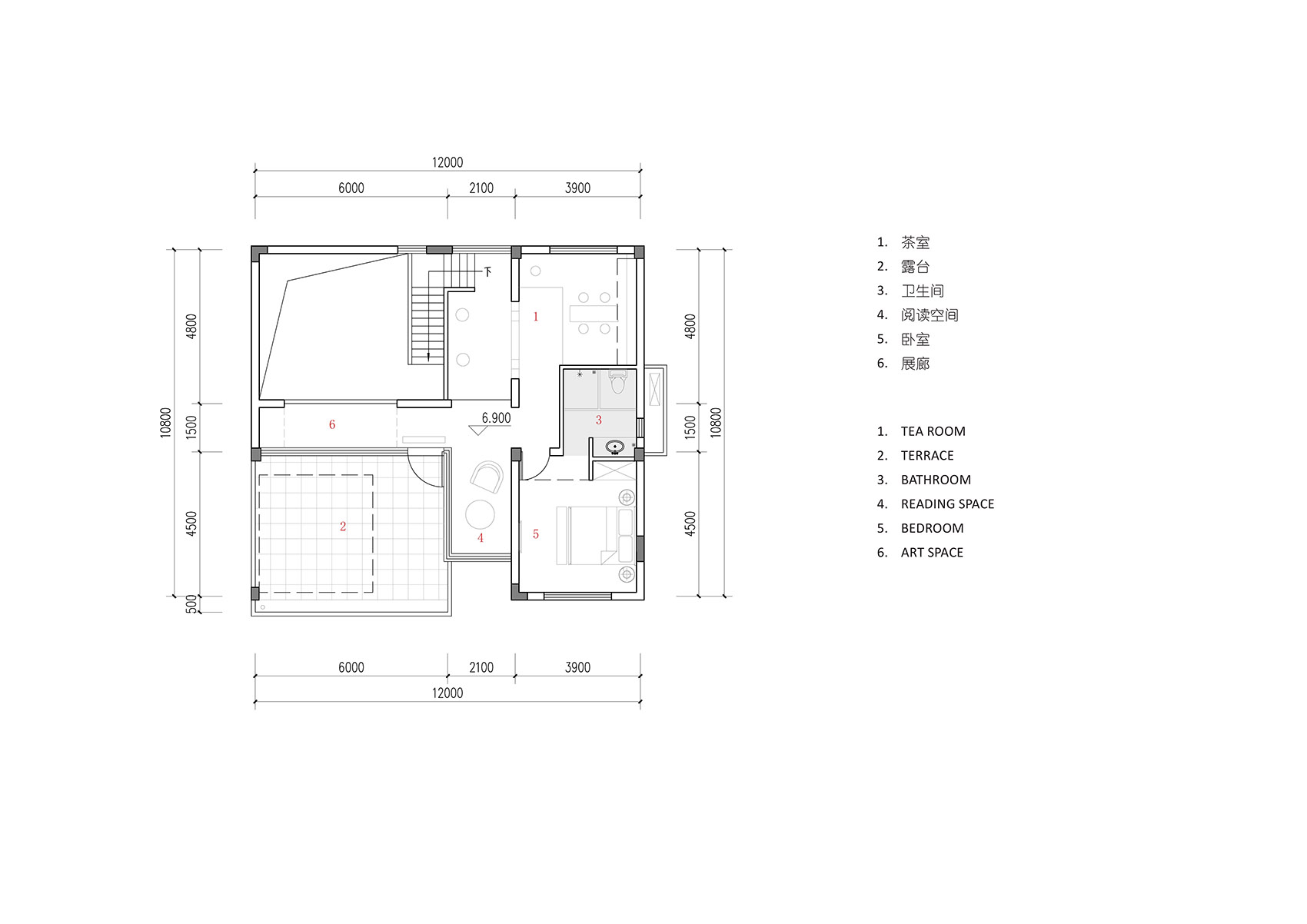
浙江龙游后山头28号住宅平面图
浙江龙游后山头28号住宅平面图
浙江龙游后山头28号住宅平面图
客服
消息
收藏
下载
最近




















































