查看完整案例

收藏

下载
项目名称:澳大利亚榆树林住宅
位置:澳大利亚
设计公司:本·沃克建筑师事务所
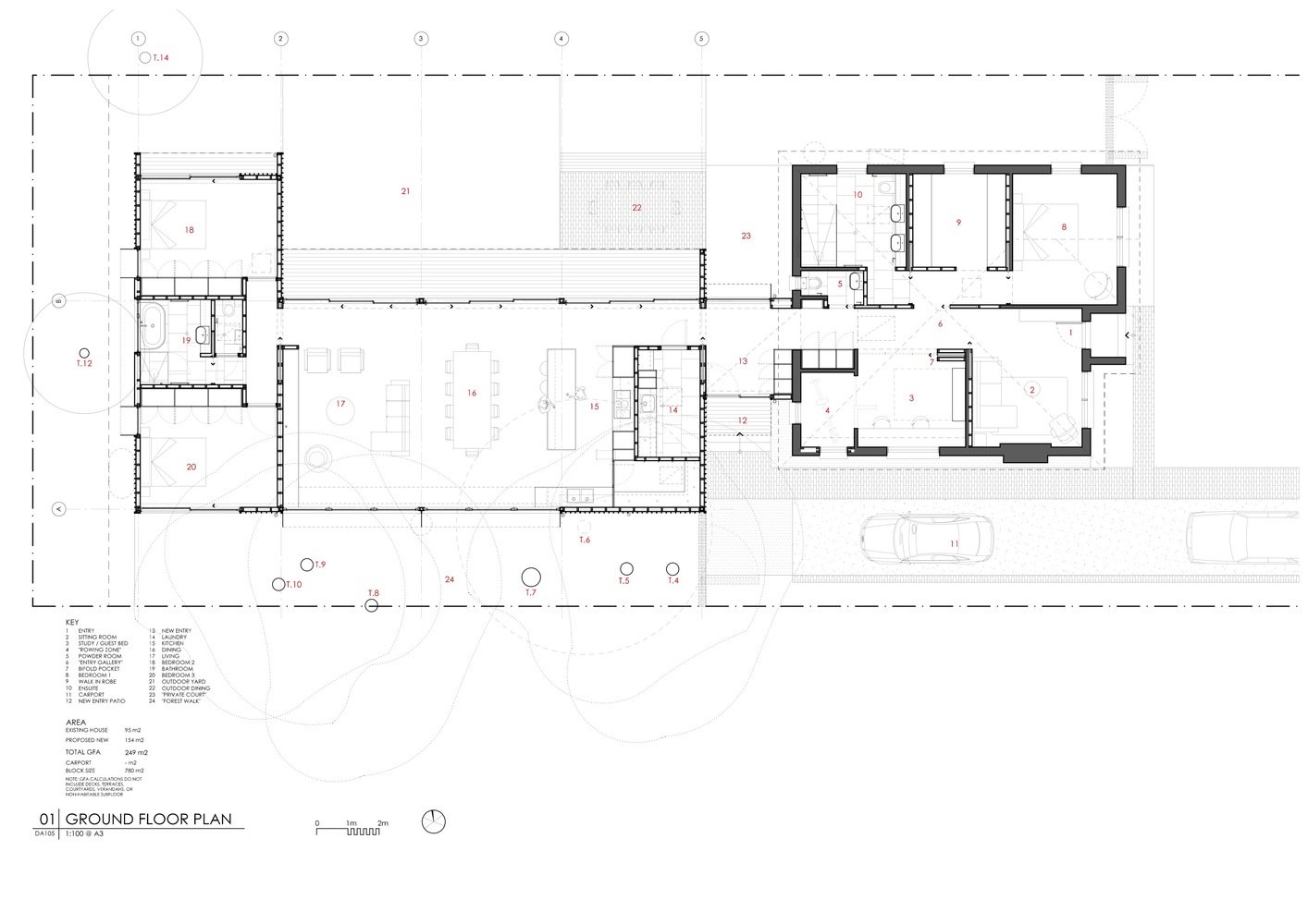
该项目包括对奥康纳现有红砖平房的改建和扩建。客户简报的主要组成部分包括改善自然采光和后院连接、额外的生活空间、良好的被动热性能和使用灵活性。对现有的小屋进行了翻新,以提供新的地板饰面、新的双层玻璃窗、墙壁和屋顶隔热材料,并对一些室内房间进行了重新规划。增加了战略位置的天窗,以增加自然日光照射,并安装了新的屋顶瓦片和纱窗。现有的房子在细节和装饰方面很大程度上被保留了下来,旧房子的北部被重新规划成一个由卧室、长袍和套间组成的父母翼。房子的南部被用作生活和“灵活”的空间,可以成为一个书房,备用卧室,工作室等。新工程位于街区的南侧,以保护北部庭院。翅膀平行于现存的成熟榆树。项目团队承诺保留榆树的视觉和凉爽品质。为了保持榆树的健康,新的机翼被抬高,并建造在带有混凝土边梁的加长穿孔底座上。这减少了对榆树根部的影响,并允许水和空气在根部周围流动。新翼的屋顶水流入一个排水道,排出榆树根部周围的水。当从后院往南看时,榆树形成了一个美丽的后坡,并通过新的亮点窗户提供了一个景观。
新的侧翼被认为是一个明显不同的建筑,可以清晰地保留原别墅的比例和可读性。新翼包括厨房、生活和餐饮、洗衣房、两间卧室和浴室。该建筑表现出了功能,滑板屋顶向北提升,为新的居住空间提供了绝佳的太阳能通道。居住空间可以沿着北部边缘开放,为后院提供方便灵活的入口。南侧的高亮度窗户提供了极好的交叉通风,可以看到成熟的榆树林(不影响隐私)。该项目还认真考虑了太阳能被动和可持续性原则。新的机翼包括一个隔热的磨光混凝土板,为冬季和夏季使用提供了极好的隔热质量。大檐和外部电动百叶窗允许夏天的阳光在需要的时候远离地板。北面和南面的高水平窗户允许良好的通风和夜间净化。电热泵用于家庭热水,基础设施已经建成,用于未来的光伏阵列。榆树的保留和根的被动雨水收集有助于降低夏季的块温。
澳大利亚榆树林住宅外部实景图
澳大利亚榆树林住宅外部实景图
澳大利亚榆树林住宅外部实景图
澳大利亚榆树林住宅外部实景图
澳大利亚榆树林住宅外部实景图
澳大利亚榆树林住宅内部实景图
澳大利亚榆树林住宅内部实景图
澳大利亚榆树林住宅内部实景图
澳大利亚榆树林住宅平面图
澳大利亚榆树林住宅立面图
澳大利亚榆树林住宅立面图
澳大利亚榆树林住宅剖面图
澳大利亚榆树林住宅剖面图
客服
消息
收藏
下载
最近
















