查看完整案例

收藏

下载
项目名称:墨西哥城爱马仕28号住宅楼
位置:墨西哥
设计公司:OW Arquitectos
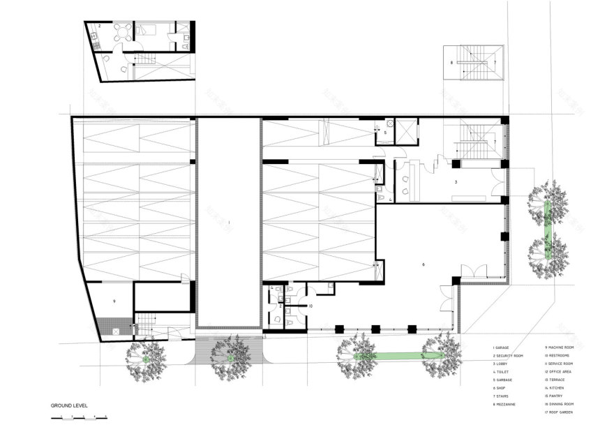
该建筑位于墨西哥城南部混合使用区的一角,占地800平方米。分配的设计方式应使空间尽可能宽,以便拥有最大的自由度,强调公共与私人之间的分配。混凝土结构是整个建筑的语言,在所有立面上都创建了框架。一楼有一个停车场,一个商业空间和办公楼的入口大厅。这些空间是双倍高度的,这给了商业空间和入口大厅很大的空间和空间效率。大堂采用最少的材料进行了概念化,重点放在大理石和间接光上。楼梯的大胆而实用的设计在空间中形成了雕塑元素, 邀请您进行探索。第一层和第二层是带有通道大厅和卫生服务的办公空间。第一层在建筑物的后部有一个私人露台,而办公空间则尽可能保持清洁,可以看到两条街道,强调了立面上的结构框架。第三层是行政楼,在混凝土中增加了一定数量的钢结构,为起居室和餐厅提供了一个俯瞰大型屋顶花园的空间。
墨西哥城爱马仕28号住宅楼外部实景图
墨西哥城爱马仕28号住宅楼外部实景图
墨西哥城爱马仕28号住宅楼外部实景图
墨西哥城爱马仕28号住宅楼内部实景图
墨西哥城爱马仕28号住宅楼内部实景图
墨西哥城爱马仕28号住宅楼内部实景图
墨西哥城爱马仕28号住宅楼内部实景图
墨西哥城爱马仕28号住宅楼内部实景图
墨西哥城爱马仕28号住宅楼内部实景图
墨西哥城爱马仕28号住宅楼平面图
墨西哥城爱马仕28号住宅楼平面图
墨西哥城爱马仕28号住宅楼平面图
墨西哥城爱马仕28号住宅楼平面图
客服
消息
收藏
下载
最近
















