查看完整案例

收藏

下载
项目名称:巴西伊比那摩亚之家
位置:巴西
设计公司:Patricia Troster Rodrigues Alves
在图皮瓜拉尼(Tupi Guarani),伊比那摩亚(Ibinamoa)的意思是“陌生人的地方”。客户的确是苏格兰人,并且对他的藏书有特殊的爱好。因此,该项目受到启发,设计了一个从上层露台通往他办公室的落地图书馆,从那里可以欣赏到Mantiqueira山脉的壮丽景色。好像在挑战混凝土结构一样,我们选择了轻巧的形式,给人的感觉是房屋刚刚降落在地面上并正在调整其地形。我们想要一栋既能接待内部客人又能使室外景观最大化的房屋。它的形式是纵向的,带有大片的玻璃,周围的露台使内部-外部边界变得流畅。 好像在挑战混凝土结构一样,我们选择了轻巧的形式,给人的感觉是房屋刚刚降落在地面上并正在调整其地形。我们想要一栋既能接待内部客人又能使室外景观最大化的房屋。它的形式是纵向的,带有大片的玻璃,周围的露台使内部-外部边界变得流畅。
巴西伊比那摩亚之家外部实景图
巴西伊比那摩亚之家外部实景图
巴西伊比那摩亚之家外部实景图
巴西伊比那摩亚之家外部实景图
巴西伊比那摩亚之家外部实景图
巴西伊比那摩亚之家外部实景图
巴西伊比那摩亚之家外部夜景实景图
巴西伊比那摩亚之家内部实景图
巴西伊比那摩亚之家内部实景图
巴西伊比那摩亚之家内部实景图
巴西伊比那摩亚之家内部实景图
巴西伊比那摩亚之家内部实景图
巴西伊比那摩亚之家内部实景图
巴西伊比那摩亚之家内部实景图
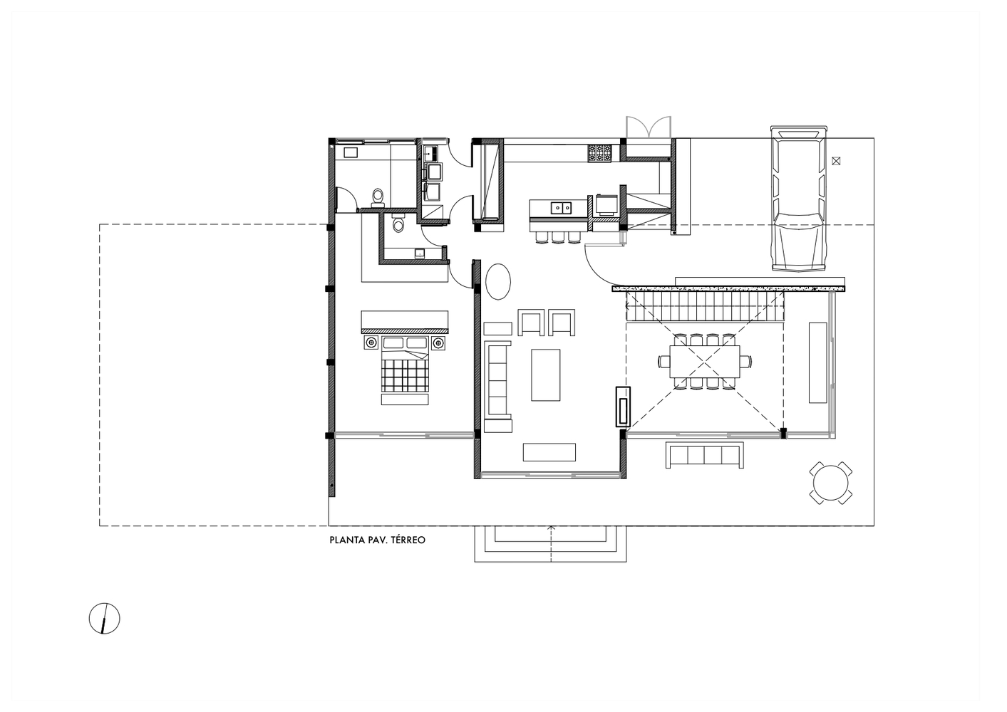
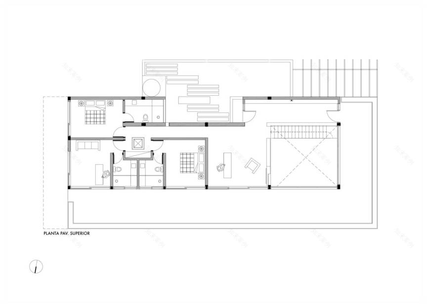
巴西伊比那摩亚之家平面图
巴西伊比那摩亚之家平面图
巴西伊比那摩亚之家立面图
巴西伊比那摩亚之家立面图
巴西伊比那摩亚之家平面和立面图
客服
消息
收藏
下载
最近






















