查看完整案例

收藏

下载

翻译
Architect:SUTE-ARCHITECT
Location:Thailand; | ;View Map
Project Year:2011
Category:Hospitals
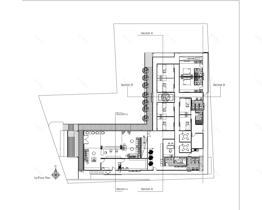
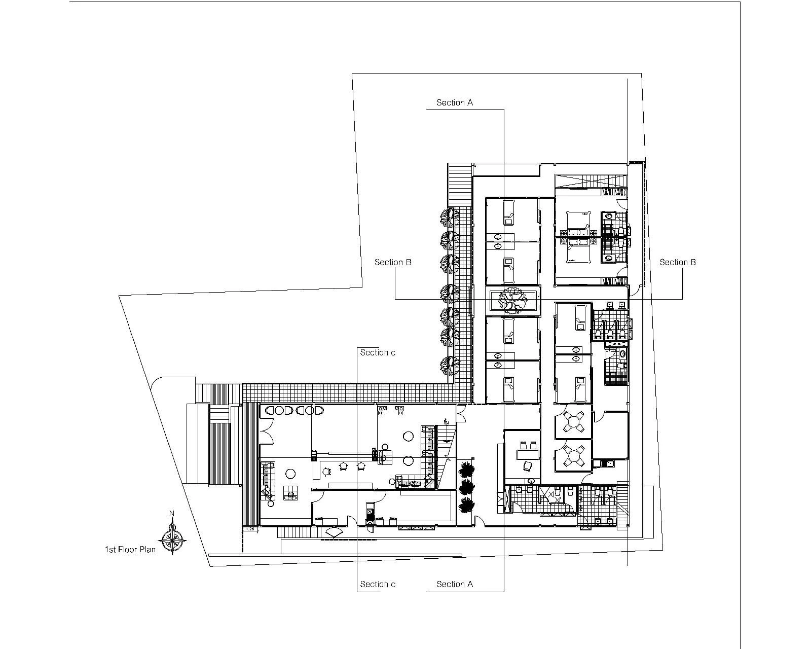
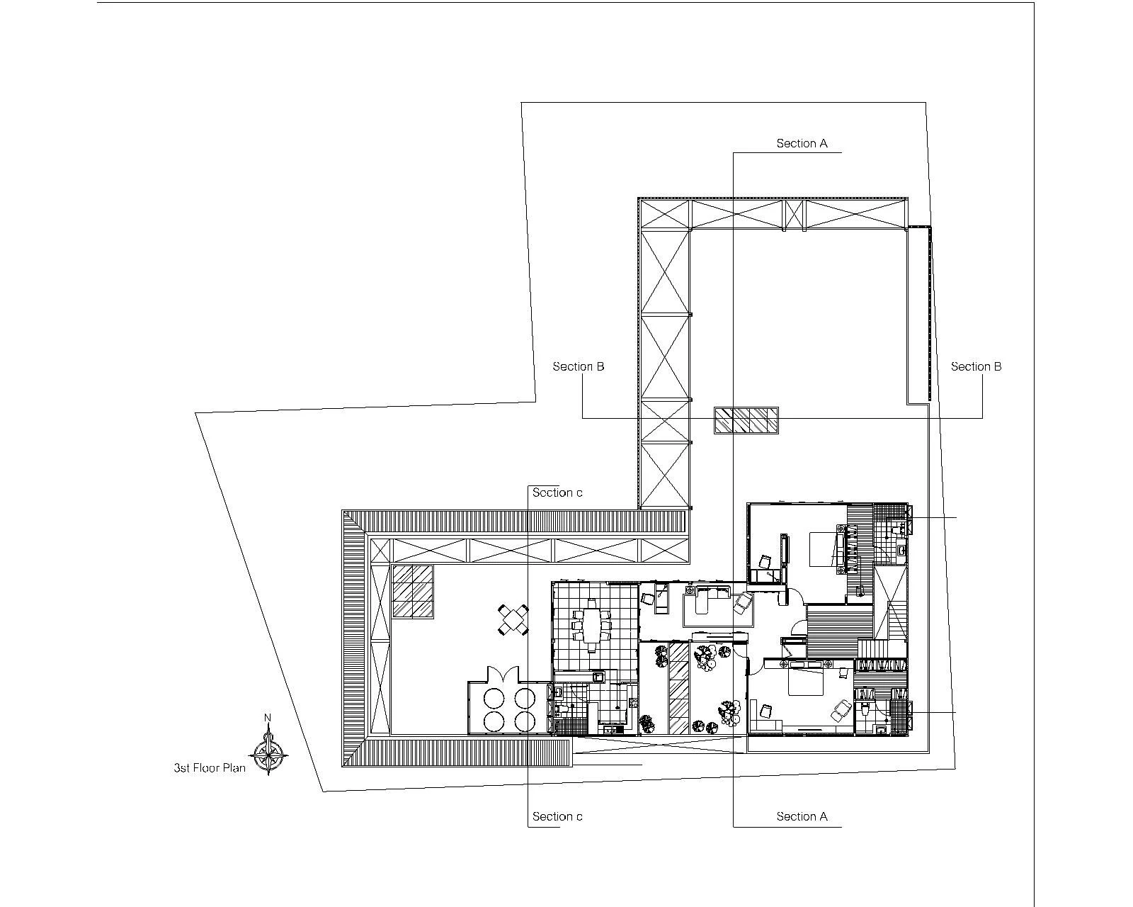
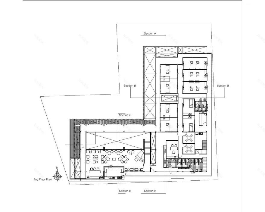
The Wind clinic is a beauty clinic project that located in the downtown of Ubon Ratchathani Province, Thailand. It is designed and made from a steel structure. It is the main structure of the project and the important material of the facade is the glass block.
On the owner’s demand. Dr. Bas, he needs a building that was eye-catching for people passing by in the area of this intersection, and the building must not be very hot because the building faces the west so we still need natural light in the project and space within the
Project. Therefore it is an option that we choose to use as the main material because
it can answer many things for us so we want our project to have the natural light area. Trees within the project area need light without being very hot inside and sparkle in the sun will shine to the building in the afternoon to make the building look outstanding according to the needs of the project owner.
The design of this project might be an experiment that does something new for us and it is able to connect creative idea and the main problem that project owner wants together.
The customers must come and feel comfortable. They will not feel like to come to the general clinic. We hope them feel relaxed when entering to the space, project and space connected by trees and gardens which makes this building look outstanding both inside and outside, becoming a new beauty clinic that meets the needs of customers and project owner excellently.
1. Facade cladding: bangkokcrystal
2. Flooring: Cotto
3. Roofing: SCG
4. Interior furniture: Sute Fur
▼项目更多图片
客服
消息
收藏
下载
最近











































