查看完整案例

收藏

下载
项目名称:加拿大La Duette住宅
位置:加拿大
设计公司:Natalie Dionne Architecture
两户家庭的新房为蒙特利尔一个安静的社区带来了新生活,该社区的历史可以追溯到50年代和60年代。随着越来越多的年轻家庭搬进来,这座新近的建筑以一种朴素的方式成为了运动的一部分,该运动正在逐步改变蒙特利尔的传统街道。他们在寻找友善的环境,同时也寻求现代的生活方式。这座新房子的名字是La DUETTE,意为二人表演,是为想要与家人住在一起的兄弟姐妹设计的。其中一个占据了较高的两层,而另一层则位于最低层。尽管有严格的分区规则,但仍要为两个内饰都带来自然采光的挑战是Natalie Dionne Architecture的可喜机会。La DUETTE实际上是从3D模型演变而来的,这使建筑师能够在不违反现有法规的情况下探索这个狭窄场地的潜力。虚拟模型对于塑造项目非常有用,但它也有助于设计师发现意想不到的景观和外部居住空间。
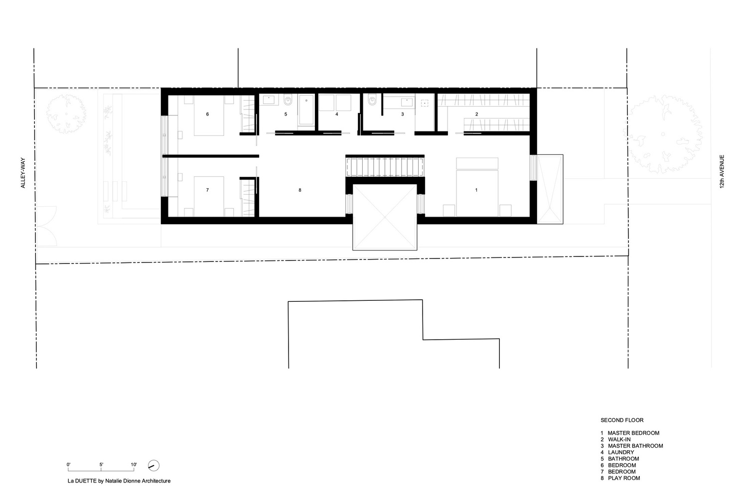
这座新的三层双层公寓的上层单元可从街道正门面访问。可以从侧面小巷进入下部单元。每个入口上方的小帐篷标志着他们在街上的身影,有助于为两个家庭营造亲密感。下部单元位于地下,是一间两卧室公寓,其居住区向外延伸至一个小型私人庭院。光线从背面的大开口以及侧窗射入。在房屋的前部,楼梯通向上层单元,该上层单元抬高至街道上方。一楼被视为开放概念的居住空间。厨房和用餐区直接连接到宽敞的带顶露台,俯瞰后巷。主卧室,两间儿童卧室和一个小型游乐区位于较高楼层。设想了两种使自然采光最大化的解决方案。首先是向内“折叠”外侧立面,创建一个足够大的凹槽以容纳两组彼此面对的窗户。
加拿大La Duette住宅外部实景图
加拿大La Duette住宅外部实景图
加拿大La Duette住宅外部实景图
加拿大La Duette住宅外部实景图
加拿大La Duette住宅外部实景图
加拿大La Duette住宅外部夜景实景图
加拿大La Duette住宅内部实景图
加拿大La Duette住宅内部实景图
加拿大La Duette住宅内部实景图
加拿大La Duette住宅内部实景图
加拿大La Duette住宅内部实景图
加拿大La Duette住宅内部实景图
加拿大La Duette住宅内部实景图
加拿大La Duette住宅内部实景图
加拿大La Duette住宅平面图
加拿大La Duette住宅平面图
加拿大La Duette住宅平面图
加拿大La Duette住宅剖面图
客服
消息
收藏
下载
最近





















