查看完整案例

收藏

下载
项目名称:越南排屋
位置:越南
建筑师:QBi Corp.
这座刚刚完工的豪华住宅,绝对是满足业主偏爱的一项设计,而不仅仅是满足建筑师的品味。成功开展业务的业主在生活中也具有丰富的经验,并且拥有不同的建筑概念。丈夫喜欢独特和创新的风格,而妻子则喜欢实用方便的东西。结合起来,他们启发了建筑师Tran Le Quoc Binh进行了巧妙的设计。从外面看,郁郁葱葱的绿色栅栏将过路人带入敬畏的境界,只是露出了屋后的光芒四射的杰作。在大门的后面,独特的存在使游客沉迷其中,展示了异国情调的形状与木纹板结合而成的画廊-露台农舍风格。所有这些都是使房子如此独特的原因。在客厅,天花板上的“鸟巢”式吊坠与包裹在电梯周围的木材兼容,类似于鸟巢和树木。栏杆面板上刻有复杂的花朵图案。用餐区和厨房区均符合业主的风格和需求。两者都享有花园的美景。厨房中的材料易于清洁和维护。餐桌布置与天花板和地板使用的木材相匹配。剧院室安装了高科技设备,隔音,吸收性材料与天鹅绒墙面相结合,营造出电影般的体验。除此之外,利用游泳池和锦鲤鱼池等水因素的作用,将其划分为绿色,这也是协调和适应夫妻之间差异的想法。内部空间主要关注便利性,每一个细节都经过仔细处理,以最大程度地为用户带来便利。业主从一开始就为自己的住所设定了一个明确的目标:确保每次回家都比在任何酒店或度假胜地舒适。这个美丽的房子已经满足了丈夫和妻子:外墙和外部使丈夫感到高兴,而室内则满足了妻子的所有功能。
越南排屋外部实景图
越南排屋外部实景图
越南排屋外部实景图
越南排屋外部实景图
越南排屋外部夜景实景图
越南排屋外部夜景实景图
越南排屋内部实景图
越南排屋内部实景图
越南排屋内部实景图
越南排屋内部实景图
越南排屋内部实景图
越南排屋内部实景图
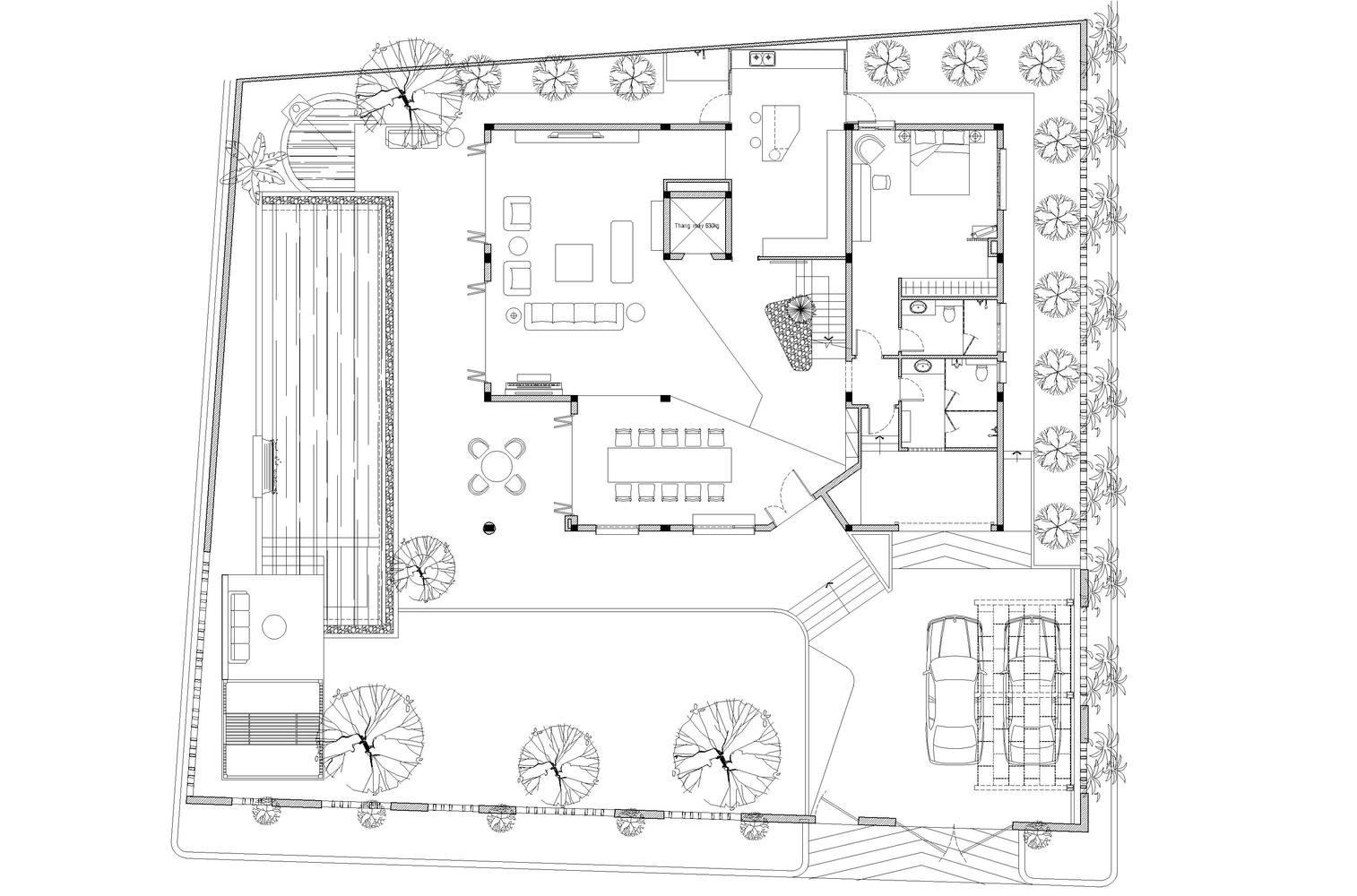
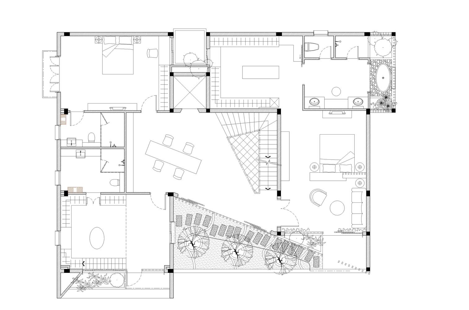
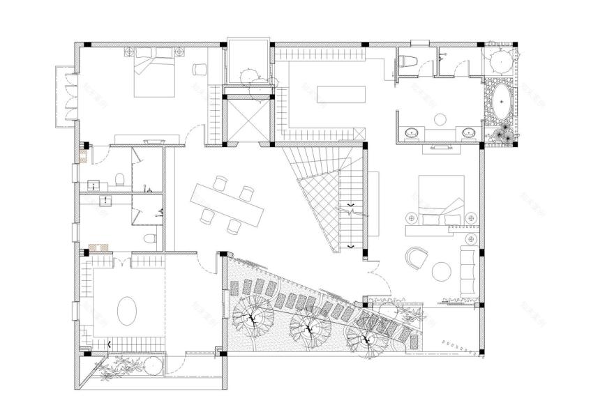
越南排屋平面图
越南排屋平面图
越南排屋平面图
越南排屋平面图
越南排屋立面图
越南排屋立面图
客服
消息
收藏
下载
最近





















