查看完整案例

收藏

下载

翻译
Architect:Lemanarc SA
Location:Nan'An, Quanzhou, Fujian, China; | ;View Map
Project Year:2017
Category:Hospitals
With the development of medical knowledge and modern technology, the city will put forward higher requirements for hospitals. The hospital is no longer just a simple multifunctional hospital. It will develop, extend and eventually form a hospital-centered health city.
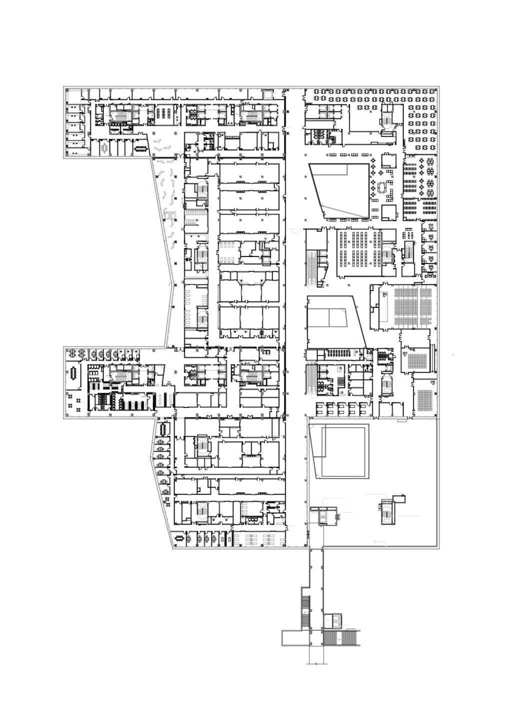
We use the Medical Street to reserve a north-south direction for development, so that in the future we will use the medical technology belt as the core to expand and form the entire health city. The Healthy City of the Future will have a street commercial zone serving the health city; a core medical technology zone that supports the functioning of the entire health city; and the Xixi ecological landscape will infiltrate the landscape green belt of the entire Health City.
The parking lot on the east side of the city has solved the elevation problem of the east-west elevation. It also enabled the hospital to form a peninsula next to the waterfront landscape linking with the Jiangbei Avenue on the south side, coordinating the convenient transportation and quiet environment required by the hospital. The east-west landscape texture brings more of the ecological landscape of Xixi on the west to the building, creating space for dialogue between the patient and the medical staff. The north-south medical street not only runs through the entire building but also sets up a bridge for the construction of the second phase of the hospital in the future. It also reserves the main lifeline for the growth of the hospital.
The entire building complex is composed of 3 building units. The first phase on the south side includes outpatient and emergency, medical technology, inpatient department, administrative management and logistics support, and on the north side is the second phase nursing unit, administration, teaching and research building, physical examination center and The radiotherapy care unit, fever clinic and infection ward are located in the northeast corner of the plot independent of the theme building complex. The north side of the first and second phases are directly connected, and the east side of the second phase is connected by corridors on each floor of the podium. The east side of the site is reserved for long-term hospital development.
▼项目更多图片
客服
消息
收藏
下载
最近














