查看完整案例

收藏

下载
项目名称:越南生物气候热带别墅
位置:越南
设计公司:T3建筑事务所,Kanopea建筑工作室
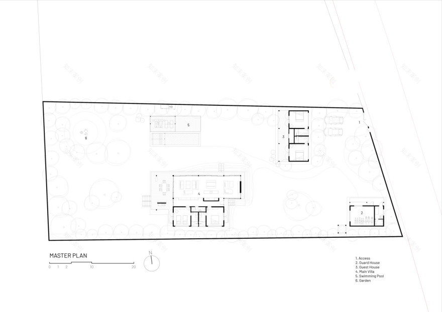
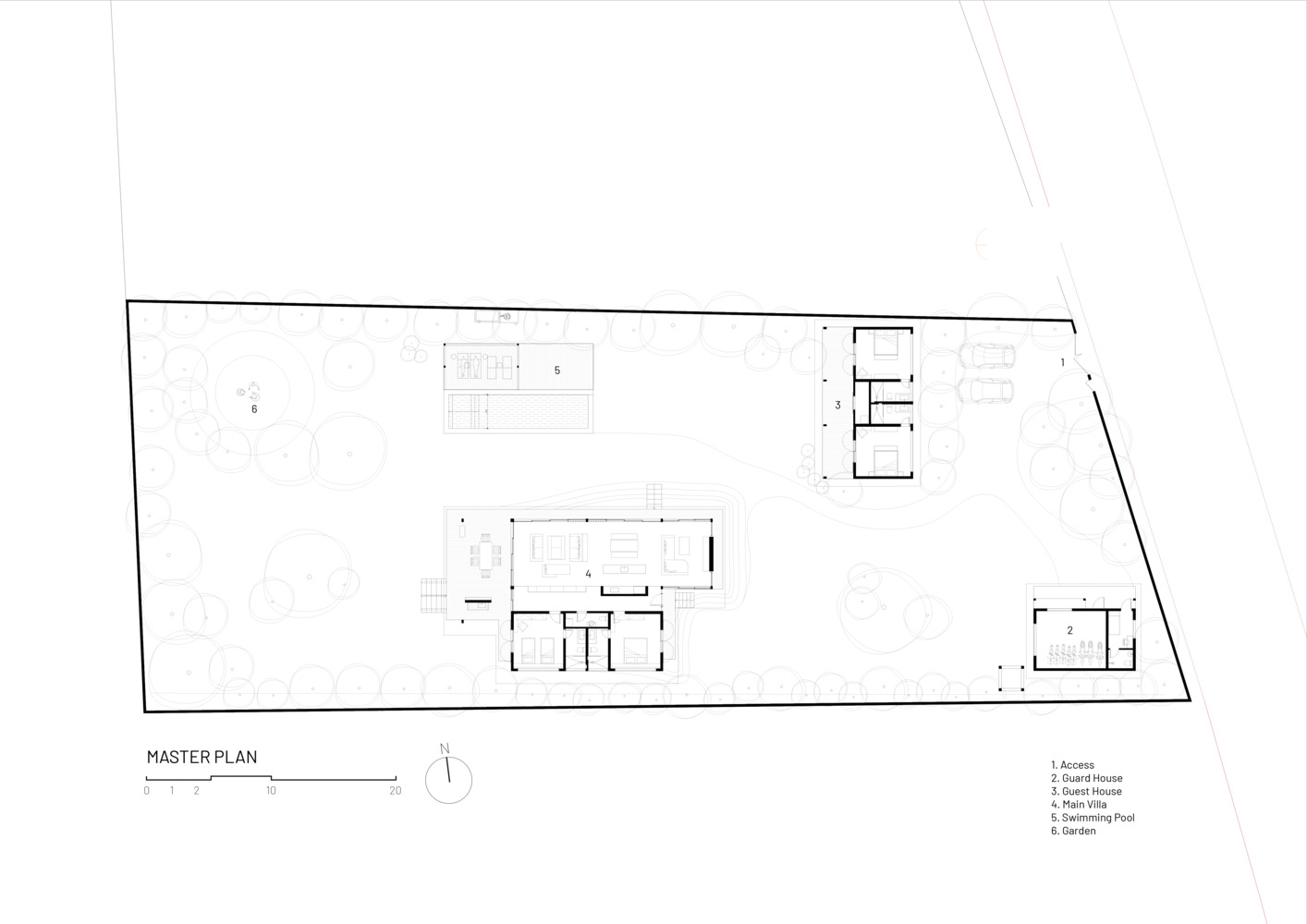
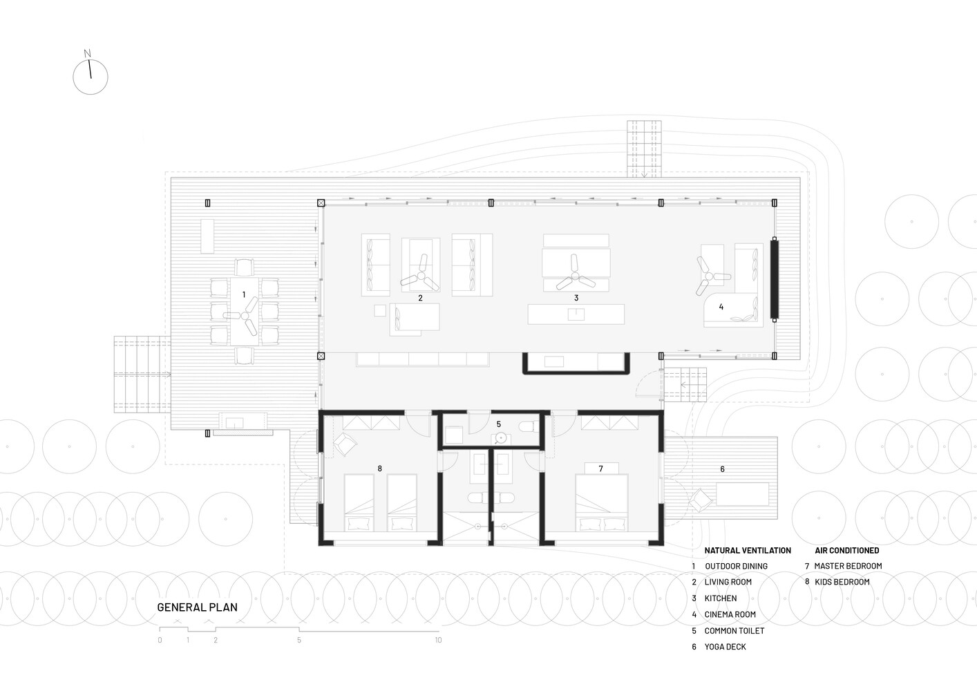
T3建筑师和kanopéA建筑工作室本周末设计的别墅采用了为热带条件量身定制的真正可持续的方法:炎热的天气、暴雨、风(因为我们靠近大海)、昆虫和其他野生动物……由于现有场地部分被森林覆盖,T3团队决定将别墅设在树下(以获得阴影和热舒适性),但主立面位于森林线上,以获得热带花园和游泳池的美丽景色。客人有自己的建筑以获得隐私。它还从小路创建了一个缓冲区(以阻挡潜在的噪音并保持高度的隐私)。建筑遵循生物气候原则,大型隔热屋顶覆盖了房屋的不同功能。公共区域是自然通风的(没有空调,只有高效的吊扇),以节省能源并保持热带的感觉。两间卧室都做了适当的隔热处理(屋顶用稻壳,墙壁用轻质混凝土砌块,双层玻璃窗和窗户)以防止空调带来的寒冷。外墙上的石灰抹灰是使用从现场挖掘的当地沙子制成的。
越南生物气候热带别墅外部实景图
越南生物气候热带别墅外部实景图
越南生物气候热带别墅外部实景图
越南生物气候热带别墅外部实景图
越南生物气候热带别墅内部实景图
越南生物气候热带别墅内部实景图
越南生物气候热带别墅内部实景图
越南生物气候热带别墅内部实景图
越南生物气候热带别墅内部实景图
越南生物气候热带别墅内部实景图
越南生物气候热带别墅内部实景图
越南生物气候热带别墅内部实景图
越南生物气候热带别墅平面图
越南生物气候热带别墅平面图
越南生物气候热带别墅剖面图
越南生物气候热带别墅剖面图
客服
消息
收藏
下载
最近



















