查看完整案例

收藏

下载
项目名称:挪威桑德斯别墅
位置:挪威
照片:伊瓦尔·克瓦尔
roksunds夫妇和他们的两个孩子已经在卑尔根南部的博姆洛区的一个岛屿上生活了多年,他们发现一条新的道路和桥梁计划将对他们现有的家园产生重大影响。鉴于这家人喜欢这里的环境和周围的环境,解决方案是在一个远离公路的山顶上建造一所新房子,这样也可以提供一个迷人的穿越岛屿的开阔远景。作为一名经验丰富的工程师,Reinert roksund决定将施工过程作为一个自建项目来管理。但后来,教师Judit roksund患了癌症,当她开始治疗时,他们的计划受到了质疑。他们决定继续建造新房子,认为这是整个家庭迈向未来的积极一步。对桑德斯本人来说,这个项目有了新的相关性和共鸣。与客户一起设计和建造家庭住宅显然涉及到个人和专业的关系,但在这里,该项目对所有参与者的重要性达到了一个新的水平。
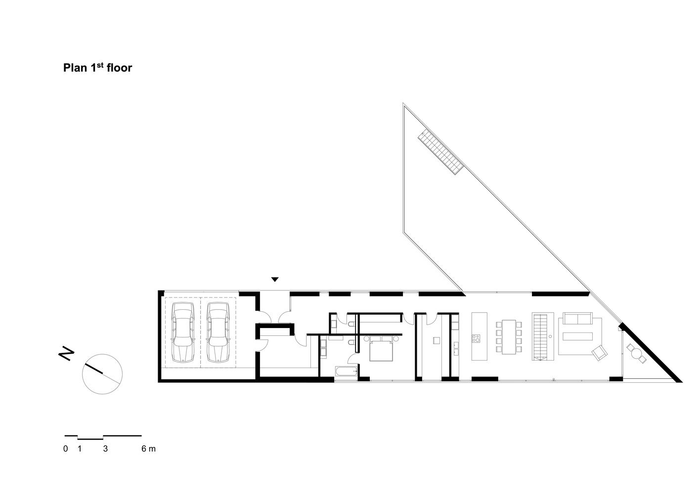
房子本身的设计最大限度地发挥了山顶场地的潜力,同时在崎岖的地形周围工作,包括岩石露头和成熟的树木,这些树木在斜坡上向下面的水倾斜。房子的大部分被安排在一个主要的层面上,包括一个综合车库和储藏室,在主要入口旁边的一端。除此之外,一条循环线穿过主套房和一个专用书房,这两个房间都面向景观,然后到达一个开放的居住空间,包括厨房、餐厅和客厅,再远处是一个有盖的露台。桑德斯将这个空间描述为一种“乡村阁楼”,提供了一个水、树和邻近岛屿的框架全景。房子的位置很高,这意味着这个空间,从地板到天花板的玻璃墙构成了远景,有一种复杂的树屋或观察点的感觉,漂浮在陆地和海洋之上。
与此同时,一个烧木头的炉子在这里形成了一个关键的焦点,增强了温暖的感觉。这座钢架木结构建筑的主体形成了一座桥,跨越了场地的较低部分,并跨越了一个隐蔽的地下室,形成了一个额外的室外房间。桥的一端,围绕车库和入口区,由岩石露头支撑,而另一端由适度缩小的较低水平支撑,以90度角从房子的其余部分向后推。这个较低的区域有一个媒体室,两间卧室供洛克苏德斯家的孩子使用,还有一间卧室供客人使用。房子的精心设计意味着日常生活变得更加简单明了。例如,柴火店就在车库里,这意味着当家庭需要更多的木材来烧炉子时,他们不必走出家门。对于一个热爱航海的家庭来说,能够在储藏室和入口处旁边的洗衣房更换湿衣服也非常实用。这些元素使日常生活更加愉快。
挪威桑德斯别墅外部实景图
挪威桑德斯别墅外部实景图
挪威桑德斯别墅外部实景图
挪威桑德斯别墅外部实景图
挪威桑德斯别墅外部实景图
挪威桑德斯别墅内部实景图
挪威桑德斯别墅内部实景图
挪威桑德斯别墅内部实景图
挪威桑德斯别墅平面图
挪威桑德斯别墅平面图
客服
消息
收藏
下载
最近













