查看完整案例

收藏

下载
项目名称:芬兰K别墅
位置:芬兰
照片:蒂莫·皮科宁
一个理想的逃避场所是在湖边的一个偏僻的小岛上芬兰,被大自然包围。这个项目是为一对夫妇完成的芬兰偶尔呆一会儿。隐匿小屋是一个经过深思熟虑的实体,可以适应不断变化的季节和景观。建筑的主要生活空间和产生的观点都是以此为出发点设计的。设计基于对周围自然的尊重;目标是将建筑尽可能自然地放置在地形上,而不破坏环境。因此,别墅旨在与自然融为一体。目的是最大限度地利用所有可用的建筑许可,为休闲目的提供一个实用的、理想的项目。目的是创造一个尽可能免维护的设计,同时将周围的自然融入空间的氛围中。从技术角度来看,这些建筑被设计成生态和低能耗的。建筑的材料和配色方案经过精心选择,使建筑与自然融为一体。别墅被做得尽可能长久耐用。
芬兰K别墅外部实景图
芬兰K别墅外部实景图
芬兰K别墅外部实景图
芬兰K别墅外部实景图
芬兰K别墅内部实景图
芬兰K别墅内部实景图
芬兰K别墅内部实景图
芬兰K别墅内部实景图
芬兰K别墅内部实景图
芬兰K别墅内部实景图
芬兰K别墅内部实景图
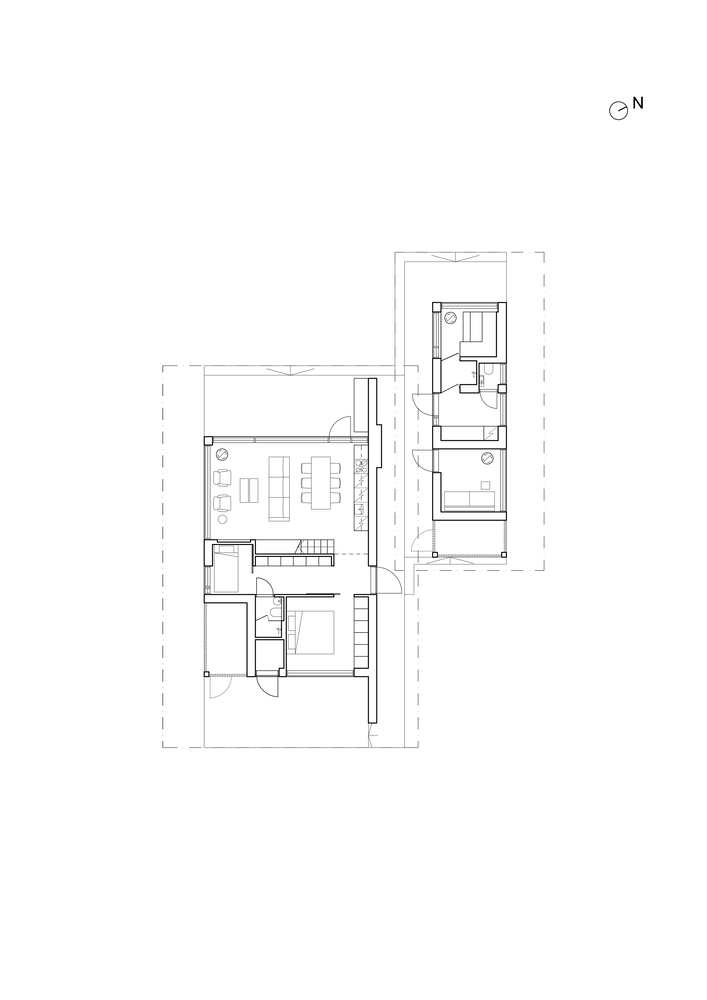
芬兰K别墅平面图
芬兰K别墅平面图
芬兰K别墅平面图
芬兰K别墅立面图
芬兰K别墅立面图
客服
消息
收藏
下载
最近



















