查看完整案例

收藏

下载

翻译
Architect:BCQ arquitectura barcelona
Location:Cardona, Spain; | ;View Map
Project Year:2019
Category:Auditoriums
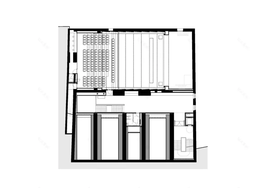
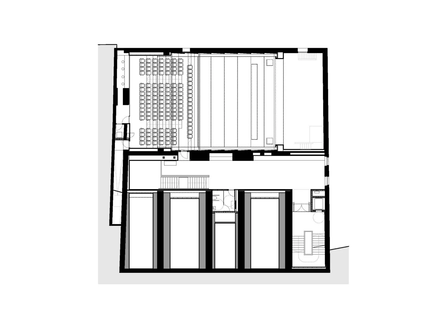
The project proposes the interior rehabilitation of the Moderno Cinema and the annexed premisses into the new Convention Center of Cardona, located on Rastrillo Avenue 1.
This rehabilitation affects mainly the interior area of the building, currently occupied by the Moderno Cinema, without modifying the compositional structure of the main facades of Rastrillo Avenue and Graells Street.
The facade that is facing the staircase connecting Rastrillo Avenue with Graells Street has undergone interventions that have modified its initial compositional structure. The rehabilitation of the Cinema proposes the intervention on this facade by creating new openings that, while giving visibitlity to the new Convention Center, in addition it improves the current character of the facade.
▼项目更多图片
客服
消息
收藏
下载
最近














