查看完整案例

收藏

下载
项目名称:加拿大克雷文路别墅
位置:加拿大
建筑师: Ania Moryoussef建筑师(AMA)
这座朴实无华的单层工人小屋的彻底改造多伦多这座历史上著名的“小镇”将一座破旧的房子变成了一个明亮而空灵的疫情避难所。客户劳雷尔·哈钦森是一名退休教师,靠固定收入生活,预算专门用于基本翻新,以挽救她112年的老房子。其结果是一个720平方英尺,比例精致,光线充足的家,建立在原来的基础上,同时重新设想工人小屋方言的每个其他方面——一个世纪之交的住房类型,几乎完全从城市中消失。克雷文路代表了一种不寻常的城市状况。这条街以前被称为伊利台,最初是在20世纪初为低收入劳工和移民开发的。只有街道的东侧排列着小住宅,西边有市政围栏,这条非典型的街道是多伦多美国500平方英尺以下独立式住宅最集中的地方。今天,克雷文路仍然是一个紧密团结的社区和独特的建筑前哨,在一个越来越昂贵的城市。
在保持原有足迹不变的情况下,墙的高度、屋顶角度和窗墙比都是由城市改造指南严格预先确定的,设计过程需要仔细研究现有工人的小屋类型,以便能够以一种完全现代的方式去设计、改造、重新诠释和重新建造这个家。主要的设计策略包括沿着计划的长轴翻转计划,将计划重新定向为亲密的朝南庭院,并通过将屋顶的传统山墙改造为36英尺长的锯齿天窗来创造一种压缩和扩张的感觉,以使自然光和新鲜空气充满房屋。战略性地引入了额外的光圈,从各个方向吸收光线,无缝地将室内与其小花园连接起来,同时遮挡了从外面直接进入室内的视线。这些形式上和现象上的策略共同创造了一个高度活跃的、不断展开的空间,挑战了720sf住宅的物理边界。这些设计决定是对客户要求的直接回应:渴望充足的光线、宁静,以及与繁忙的城市环境的相对隔离感。
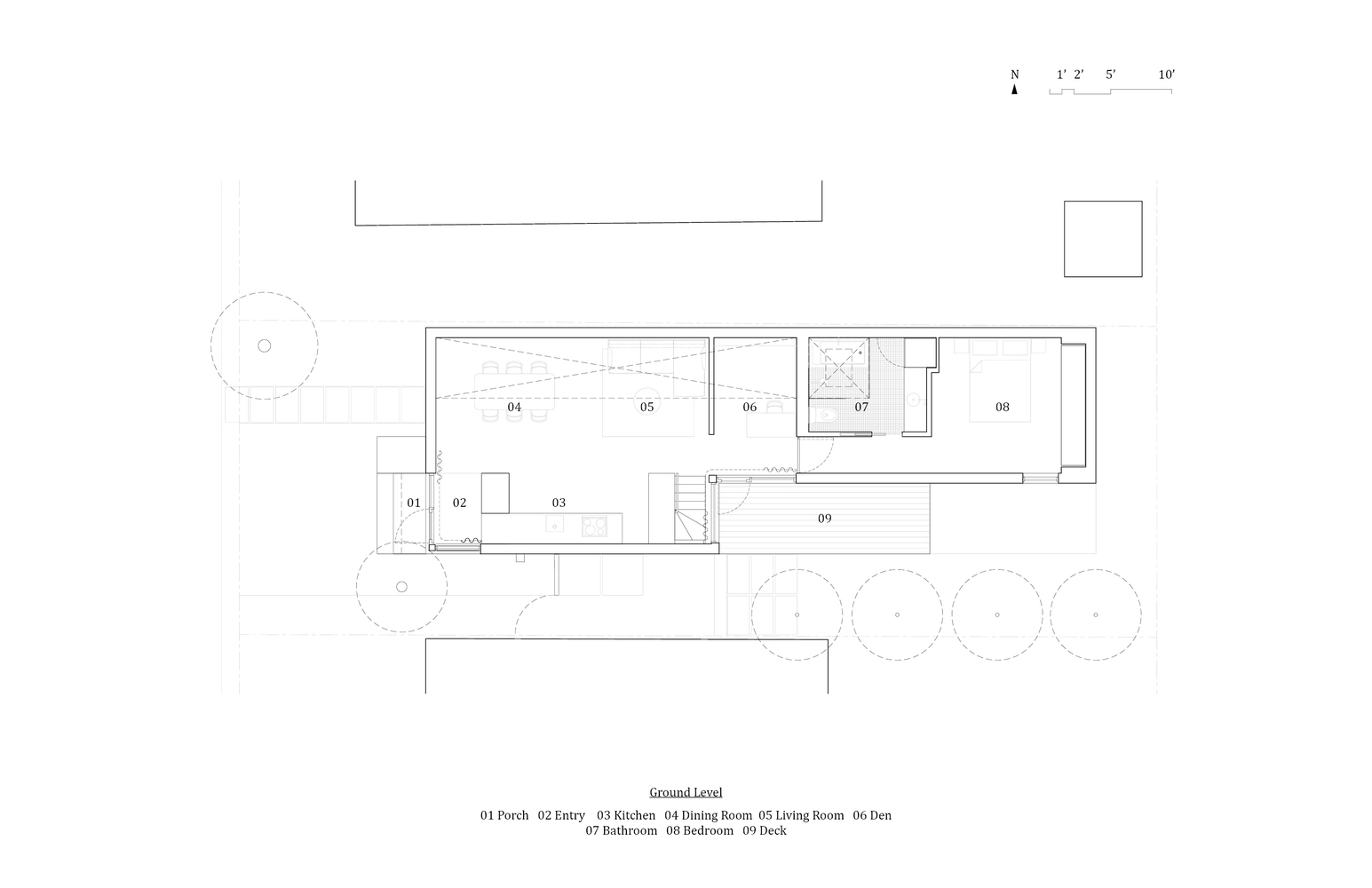
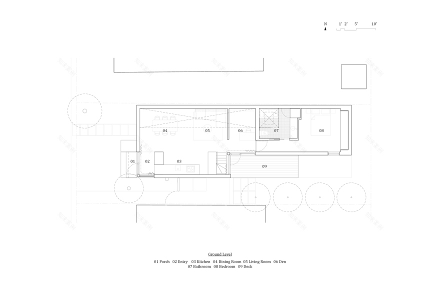
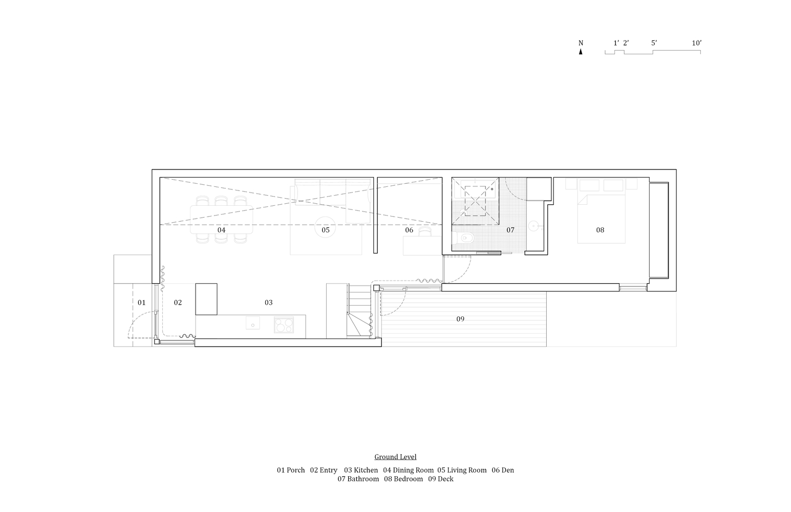
为了回应这种对独处的渴望——一个人可以独处,但并不孤独——这个家被改造成了一个光影的容器,两者似乎就居住在这个空间里,和月桂一起。尽管相对简约的审美,家总是感觉很充实。为了进一步强调这一点,住宅北墙16英尺高的室内立面形成了住宅主要生活空间的背景,充当了过去一天和一季不断变化的颜色、辉光和阴影的投影屏幕,包括克雷文路西侧成熟城市森林的斑驳灯光和树木剪影。这个家由四个房间组成:一个组合的入口、客厅、餐厅和厨房空间;可以容纳一张单人床的小工作室/书房;盥洗室/洗衣房的组合;和一间主卧室。这个简单的项目由一个就地老化策略补充,该策略整合了一个U形厨房,便于流通;适用于无障碍设备的无路边湿室,其墙壁为将来的扶手杆而封闭;LED照明和坚固的饰面,以降低维护和能源费用;潜在住家保姆的睡眠空间;还有一个前门廊,设计用来容纳未来的坡道,有一个可以抵御天气的天篷。
加拿大克雷文路别墅外部实景图
加拿大克雷文路别墅外部实景图
加拿大克雷文路别墅外部实景图
加拿大克雷文路别墅外部实景图
加拿大克雷文路别墅外部实景图
加拿大克雷文路别墅外部实景图
加拿大克雷文路别墅内部实景图
加拿大克雷文路别墅内部实景图
加拿大克雷文路别墅内部实景图
加拿大克雷文路别墅内部实景图
加拿大克雷文路别墅内部实景图
加拿大克雷文路别墅内部实景图
加拿大克雷文路别墅内部实景图
加拿大克雷文路别墅内部实景图
加拿大克雷文路别墅平面图
加拿大克雷文路别墅平面图
加拿大克雷文路别墅平面图
加拿大克雷文路别墅剖面图
加拿大克雷文路别墅剖面图
加拿大克雷文路别墅立面图
加拿大克雷文路别墅立面图
加拿大克雷文路别墅立面图
客服
消息
收藏
下载
最近

























