查看完整案例

收藏

下载

附件

翻译
Architect:Lahdelma & Mahlamäki Architects
Location:Helsinki, Finland; | ;View Map
Project Year:2020
Category:Auditoriums
The Urban Environment House is a building designed by Lahdelma & Mahlamäki architects for the Urban Environment Division of the City of Helsinki. It combines new building technology with references to the history of architecture – as a building, it is modern and archaic at the same time. The Urban Environment House is also characterized by the rough materiality of brick, concrete, wood and copper, and the rooftop terraces with their distinct pavilions. The spacious interiors include activity-based work environments and public spaces that invite citizens to utilize city services. Nearly a zero-energy building, the environmental friendliness of the Urban Environment House is reflected in long-lasting solutions that allow flexible use of the building. It is also the winner of the Tekla BIM Award 2020 for Finland and the Baltics.
Verkkosaari, an area once occupied by a harbor and sawmill industry has become one of the most important growth areas in Helsinki. Business premises, public services and housing have risen on the wastelands left behind by the industry. Among the significant new buildings in the area is the Urban Environment House, which was designed by Lahdelma & Mahlamäki architects for the Urban Environment Division responsible for, e.g., city planning, building supervision and environmental services in the City of Helsinki.
As a new home of city planning officials, the Urban Environment House acts as a role model building which demonstrates the City’s high standards of building and urban planning. The Urban Environment House is a large building that was adapted to its surroundings by dividing its mass into parts. In terms of functionality and HVAC, the building complex can be divided into three independent parts. In the facades, the parts of the building are separated by rooftop terraces and pavilions placed on them, which give each terrace its own character. Varied mortar joint styles and the use of wood, concrete and copper in details also subtly differentiate the parts of the building from each other. The main facades of the building open to the middle of the block towards a new public square and a pedestrian street. Up to two-story-high brick arches and an arcade, which continues all the way to the main lobby, connect the street space and the interior of the Urban Environment House and, on the other hand, communicate about the public nature of the ground floor. Overall, the building is designed to invite citizens to utilize city services and participate in civic activities.
The most significant users of the Urban Environment House are built environment officials. This was made visible in the building by, for example, pursuing rough materiality and leaving HVAC largely exposed. The building utilizes an advanced combination of brick cladding and cast-in-place concrete structure, which made it possible to realize the broad brick arches and the half-arch at a corner of the building. As historicist elements, the arches and arcades link the Urban Environment House to the history of architecture, thus creating a building that is both modern and archaic.
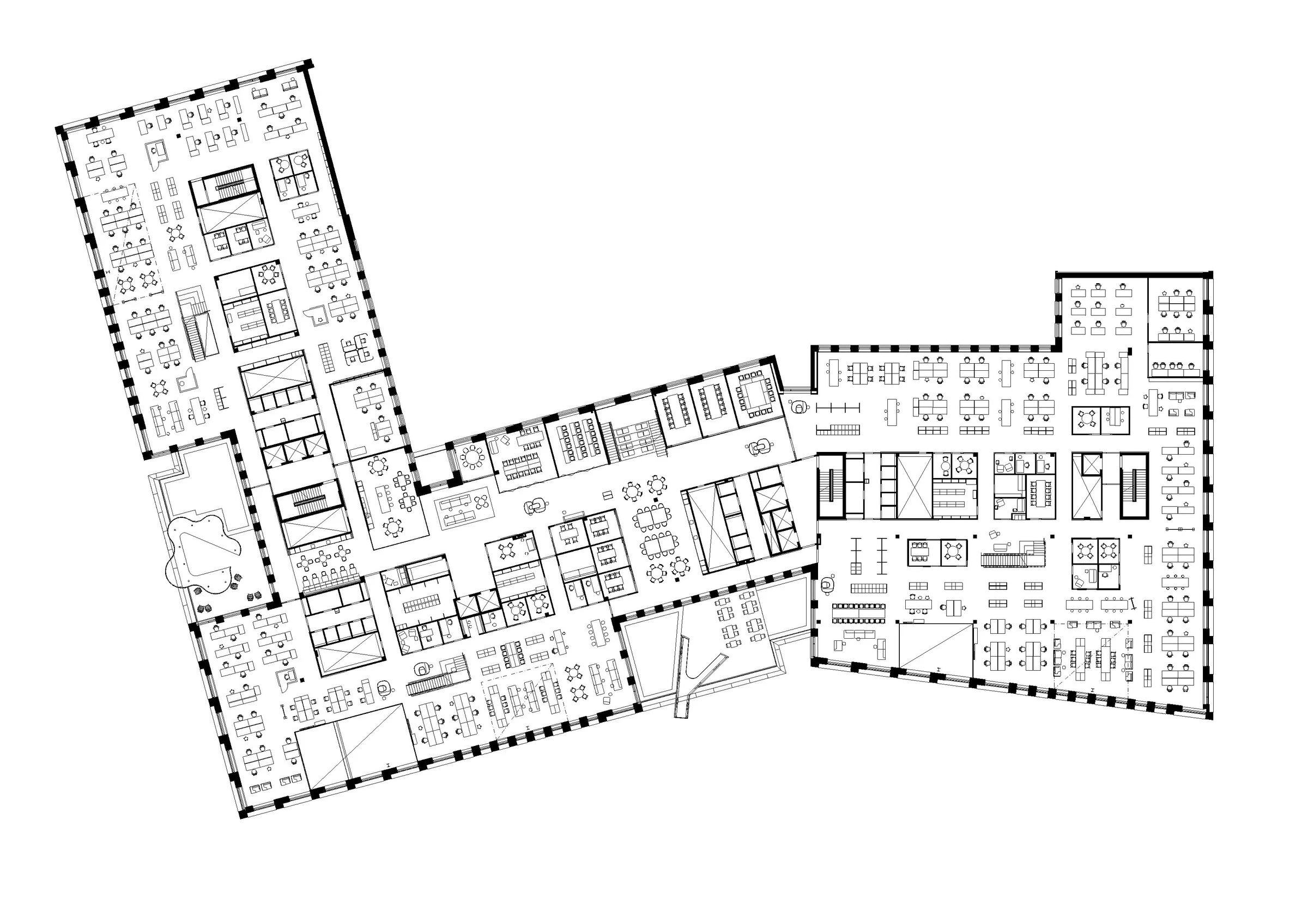
Thanks to the project’s ambitious starting point, the design aimed at ideal premises. Space planning was emphasized, as the City wanted to gather 1,500 officials who worked in several locations under one roof and provide them with modern workspaces that create a sense of togetherness. All the spaces are designed to support collaboration between officials and, on the other hand, to serve the citizens. What is more, several workshops were held to involve the users of the building in the design process and to ensure that all the spaces serve their purpose. The Urban Environment House is an activity-based work environment characterized by spaciousness and high ceilings.
The interiors are a diverse mixture of ample spaces, where, for example, openings connecting the floors, auditorium-style staircases, and street-like passageways have replaced conventional isolated floors and lobbies that pierce the whole building. Efficient workspaces are the result of combining a deep building frame with higher-than-usual floor height and large windows, which allows daylight far into the building. Open spaces, quiet work areas and rooms suitable for either meetings or concentration cater to present-day office work. As a counterbalance to work, the Urban Environment House also has various facilities for exercising, as well as cafeterias and break rooms. In the spirit of open Nordic society and civic democracy, the first two floors of the building consist mostly of public spaces. In the spacious entrance lobby citizens can find an exhibition space and customer service points, which were previously located in several places across the city. An auditorium, a café, and a restaurant on the first floor are also open to city dwellers. On the second floor there is a conference room for city boards and meeting rooms that can be used for customer service as well as for meetings between city officials and cooperation partners. The rooftop terraces with distinct pavilions on them, which can be used for both relaxation and work, are a unique addition to the spaces and character of the Urban Environment House. Each terrace is different, which is reflected in the vegetation and the shapes and materials of the pavilions. Inspired by gazebos, the pavilions were designed with an aim of applying the historical building type into an urban work environment.
The leading thought in designing the Urban Environment House was to pursue environmental friendliness through longevity. From the point of view of sustainable development, it is essential that a building serves its purpose well into the future and suits different kinds of uses during its life cycle with only minor modifications. In terms of energy efficiency, the Urban Environment House is nearly a zero-energy building, and a portion of the renewable energy used in the building is produced on-site with solar panels. In addition, a 5,000-square-meter green roof with more than 22,000 plants, such as herbs and shrubs and decaying wood for fungi and insects, was placed on the roof of the Urban Environment House. Thus, the roof acts as a laboratory for urban nature and, at the same time, contributes to biodiversity and prevents urban floods by delaying stormwater. It is also worth noticing that the Urban Environment House has parking spaces for 590 bicycles but only for 75 cars, which encourages people to reduce the use of private cars and favor bicycling, walking and public transportation instead. The Urban Environment House has won the Tekla BIM Award 2020 for Finland and the Baltics, which is awarded for the extensive and advanced utilization of building information modeling technology in a construction project.
▼项目更多图片
客服
消息
收藏
下载
最近













































