查看完整案例

收藏

下载

翻译
Architect:Bruno Gaudin architect
Location:Allée du Musée, 92100 Nanterre, France; | ;View Map
Project Year:2021
Category:Libraries
Bruno Gaudin Architectes just delivered the new Bibliothèque de Documentation Internationale Contemporaine (Contemporary International Resource Library), at the entrance to the university campus in Nanterre, west of Paris.
This institution is a resource for research in the humanities and social sciences: a library, a center for archives and a museum.
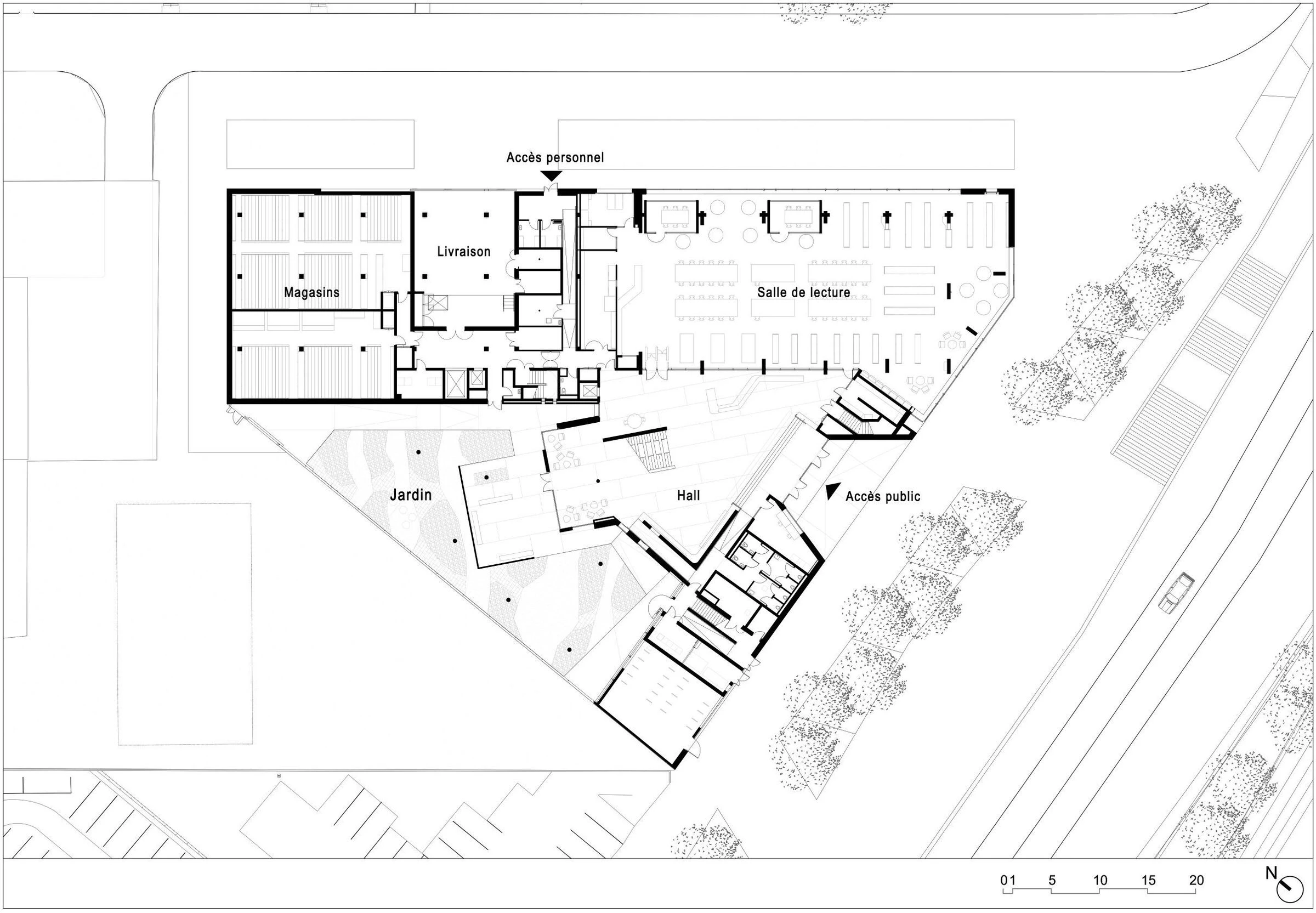
Located on the southeast edge of the Université de Nanterre, opposite the exit from the RER suburban train station, the library stands on an atypical triangular plot of land of rather modest dimension when compared with the size of the campus and the neighboring landscape of office and apartment towers.
On the east façade, the main part of the program runs alongside the university, coming to an end on the south side with the great window of the exhibition areas. The grand entrance porch stands on the south side, overlooking the mall, on the smaller side of the building. It serves as the base for the prism that dominates all the building’s volumes. The programs are dense and superimposed on this challenging plot: a reading room on the ground floor, exhibitions and training rooms on the second floor, and offices on the two upper floors.
A sort of lantern or colonnade emerges from this ensemble, “a wind tower” in a dialog with the urban landscape, signaling the presence of this public building in a cityscape of large scale-structures. Taking advantage of its southern exposure, the constantly changing interplay of deep shadows outline this parallelepiped.
The library’s specificity resides in its role of archival conservation, resource center, permanent and temporary exhibition space. Far from being the result of a vision exclusively focused on the museum or research function, it is both a home to documentary resources and a teaching tool. Here documentary resources are the focus of exhibitions and research, accessible to researchers and the general public alike.
The various spaces are organized around a lobby, bordered by an ambulatory. As this vertically rising promenade distributes the various functions, it enables an understanding of the whole.
The monumental ground floor arches are a series of white concrete slats straddling and structuring the reading room. Passing through the glass walls, they fold to frame and contain the triangular lobby space. The staircases are hooked to these slats as they climb towards the deambulatory for exhibitions. Whether artificial or natural, light is carefully constructed to create a specific poetry in each space.
▼项目更多图片
客服
消息
收藏
下载
最近









































