查看完整案例

收藏

下载

翻译
Architect:Bolles + Wilson
Location:Luxembourg City, Luxembourg; | ;View Map
Project Year:2019
Category:Libraries
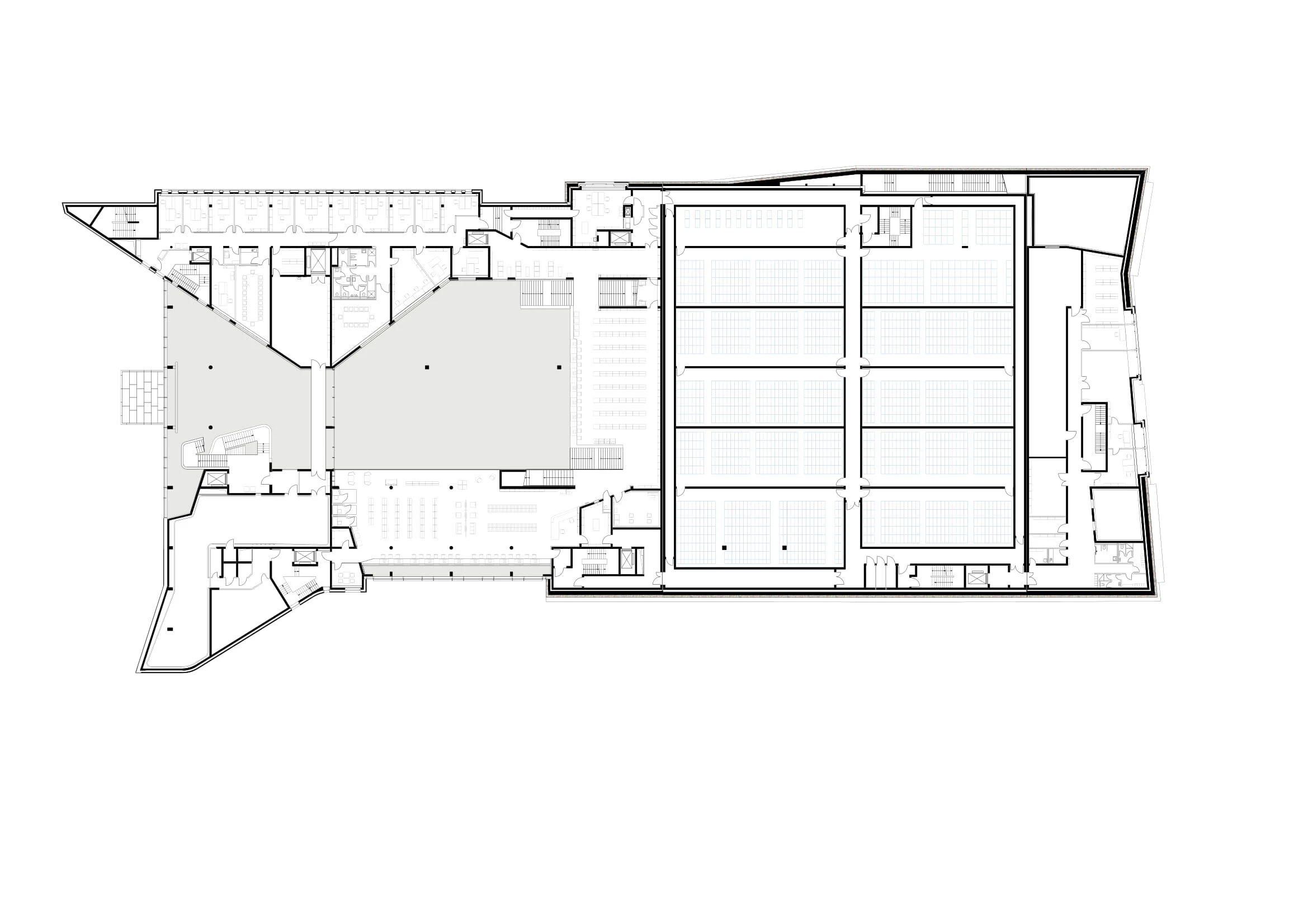
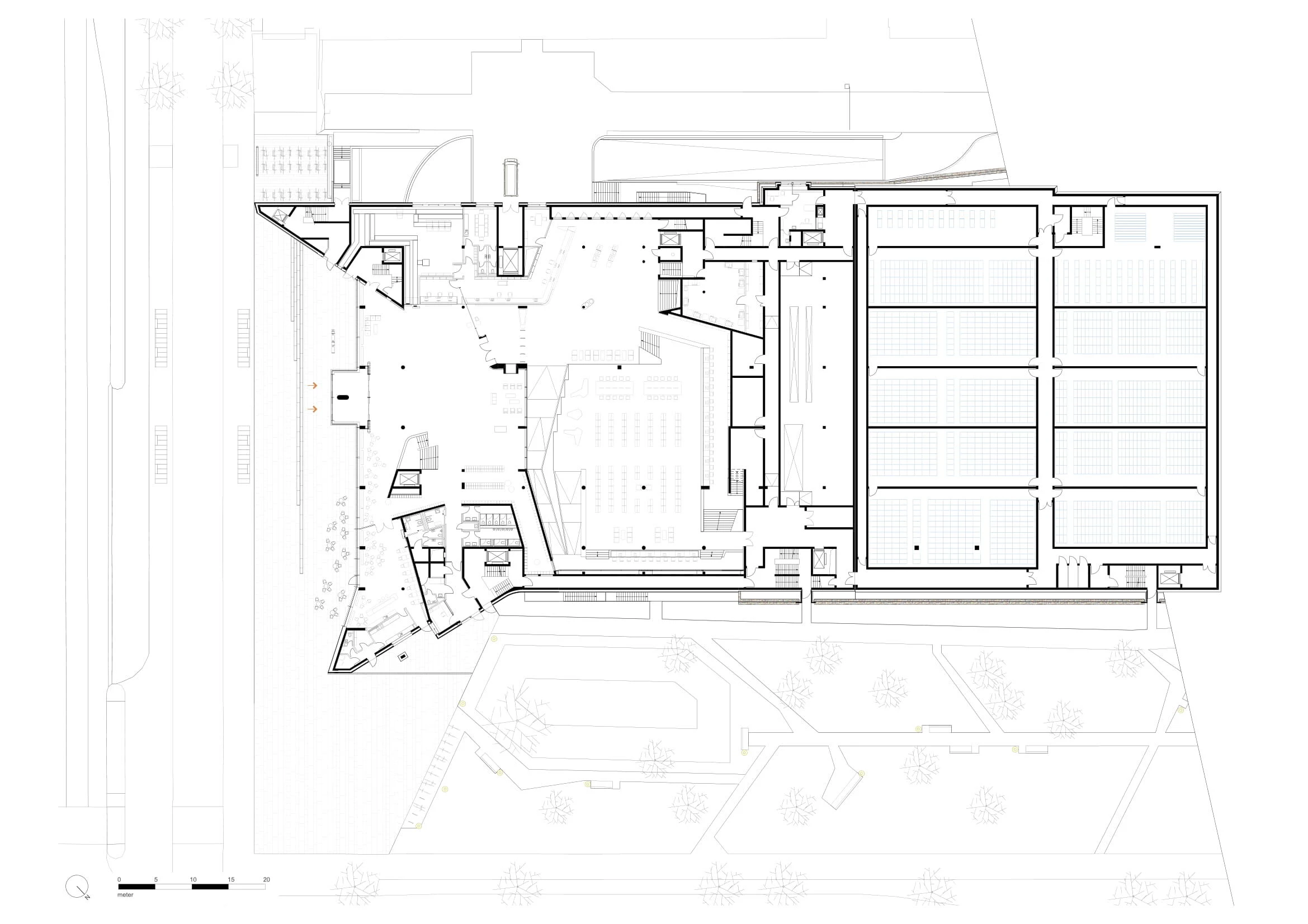
The task of the Patrimonial and Universal Library is the housing and protection of Cultural and Intellectual Texts– a foundation stone of the intellectual community.
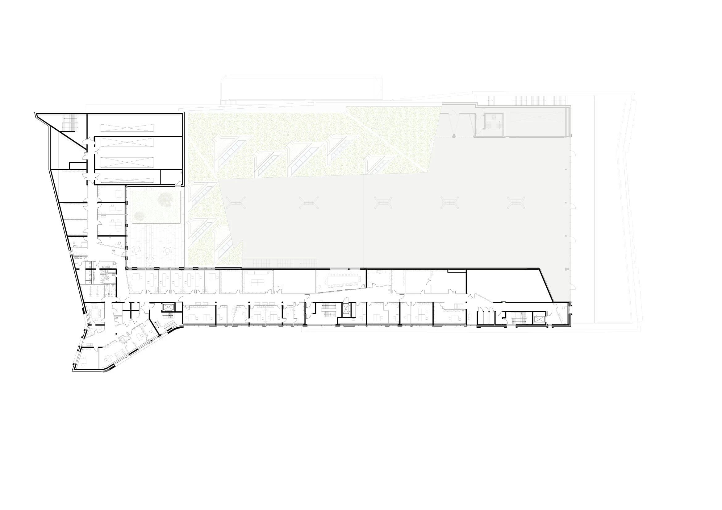
For the BnL a compact, energy efficient building volume houses a wide range of functional entities. A transparent imposing, but at the same time inviting, facade fronts onto the Avenue John F. Kennedy. Internal functions unfold sequentially from this entrance gesture; Foyer +, Café (with upper level Conference +seminar rooms), next the Reading Room – a landscapeof terraced workstations and bookshelves. The principle building block is located deep within the building, a central and compact archive over five levels. This secure core is encased by public spaces and forms a
plateau on top of which the largest bookshelf area and reading-deck is found.
The principle facade material is large format red precast concrete panels - a patchwork due to a variety of surface treatments (water/sand-jeting, acid washing). The architectural intention is homogeneity, a material unity of the overall building volume, with an undercurrent of surface articulation. The archive plateau is encased in a bastion-like wrapping of stone-filled Gabion cages.
Planning prioritized energy efficiency; technical installations take second place in favour of an activating of the buildings thermal mass to engender a sustainable
interior climate. Geothermal heat pumps are installed below the foundation plate and on the roof photovoltaic panels. Interior materials were chosen for their thermally absorbing capacity to allow night-purging, an activating of the building mass to dampen temperature extremes. The cradle-to-cradle principle was wherever
possible the referent in choosing materials. The widespan roof structure in laminated timber is, via air circulation within the roof layer, also thermally activated.
▼项目更多图片
客服
消息
收藏
下载
最近




















































