查看完整案例

收藏

下载
项目名称:德国海克别墅
位置:德国
设计公司:Christof Schubert Architekten
一切始于互联网上的分类广告:寻找工作室和办公楼的建筑商所有者。Villa Heike建于1910年,是一栋带有钢筋混凝土骨架的多功能建筑,被遗弃了20多年。拯救它的是它作为一栋受保护建筑的地位。该项目的概念已由建筑师预先制定:为艺术家和创意企业设置的可负担空间。该概念是针对建筑物量身定制的。这样就可以使历史结构基本上保持不变。战后添加物被删除,丢失的元素被仔细添加。完全改建的入口大厅根据其初始状态进行了重建。作为历史的见证,海克别墅(Villa Heike)旨在不掩饰其伤痕。有意识地保留了所有时期的痕迹,以可感知的方式进行了当代的添加和重构。丢失的重要元素,例如大门,入口大厅的栏杆或三楼阳台,都是以现代方式设计的,但强烈地受到了历史前辈的启发。
德国海克别墅外部实景图
德国海克别墅外部实景图
德国海克别墅外部实景图
德国海克别墅外部实景图
德国海克别墅内部实景图
德国海克别墅内部实景图
德国海克别墅内部实景图
德国海克别墅内部实景图
德国海克别墅内部实景图
德国海克别墅内部实景图
德国海克别墅内部实景图
德国海克别墅内部实景图
德国海克别墅内部实景图
德国海克别墅内部实景图
德国海克别墅内部实景图
德国海克别墅内部实景图
德国海克别墅内部实景图
德国海克别墅内部实景图
德国海克别墅内部实景图
德国海克别墅内部实景图
德国海克别墅内部实景图
德国海克别墅内部实景图
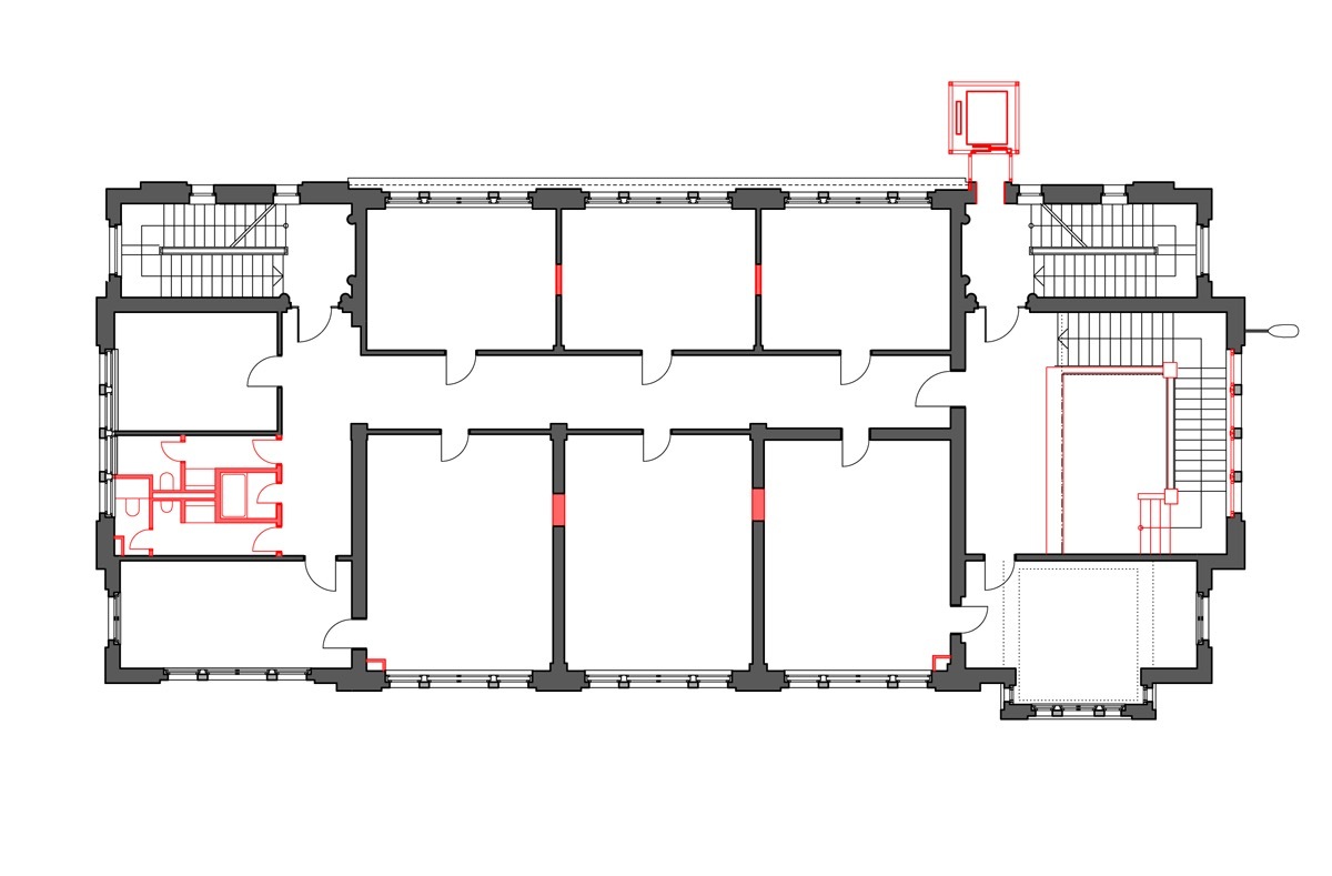
德国海克别墅平面图
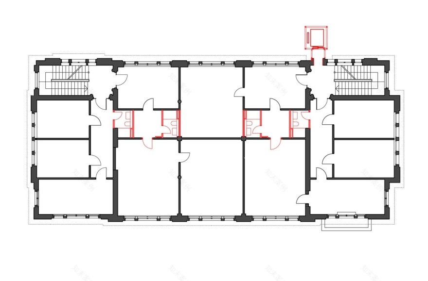
德国海克别墅平面图
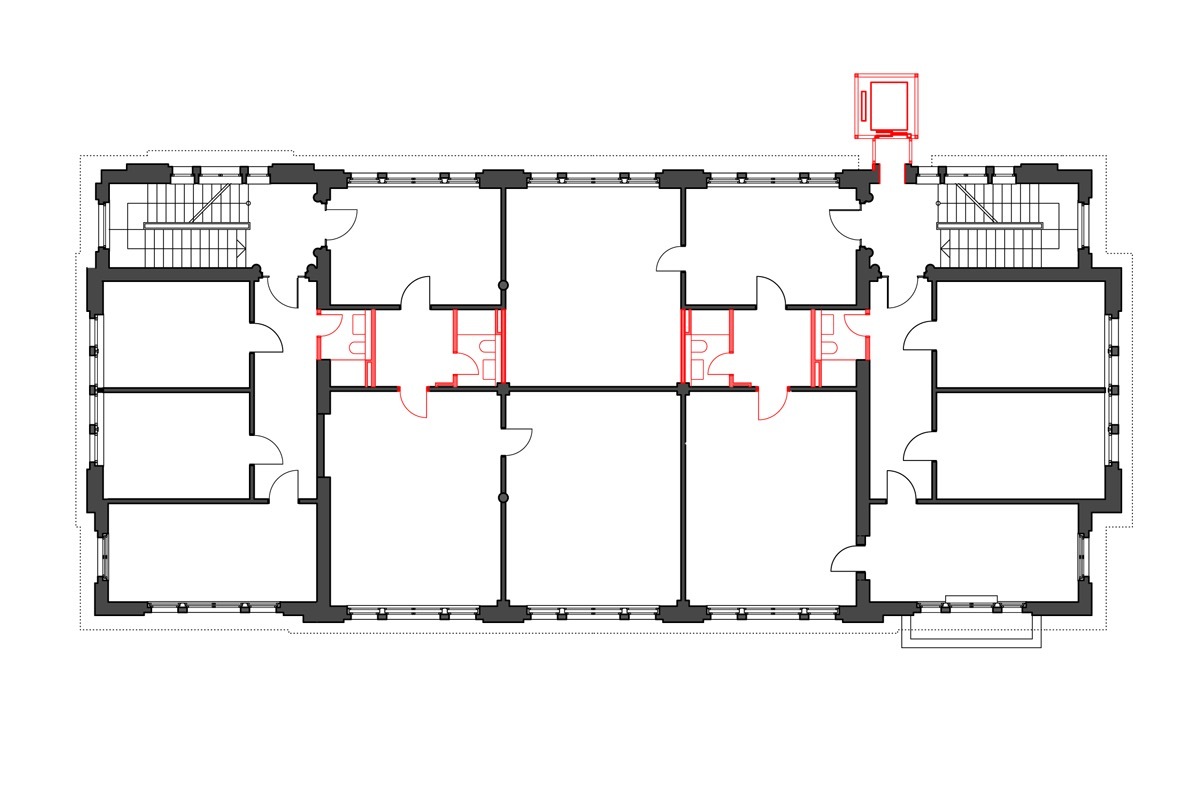
德国海克别墅平面图
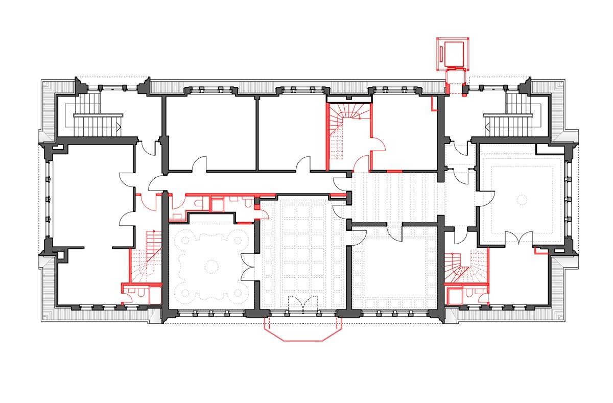
德国海克别墅平面图
德国海克别墅平面图
客服
消息
收藏
下载
最近






























