查看完整案例

收藏

下载
项目名称:哥斯达黎加Atelier别墅
位置:哥斯达黎加
设计公司:FORMAFATAL
在距哥斯达黎加小镇乌维塔不远的地方,有一座隐于赫摩斯海滩上方丛林间的小型度假村Art Villas。3栋独特的别墅和一个多功能亭阁分布在2公顷的土地上。项目投资人希望建筑师打造一个可以让游客近距离接触自然、净化身心,也同时体验奢华与冒险的地方。来自Formafatal工作室的建筑师们在满足客户需求的同时,也从中南美洲热烈缤纷的氛围中得到了启发。Atelier Villa是为投资人及其家庭设计的私人住宅。长达26米的棱形体量依偎在陡峭的山坡间,部分结构悬浮于茂密的热带植被上。放眼室外,目之所及的是漫山的绿意与无边的海洋。面朝车道和相邻别墅的后墙特意不设窗户,以保持空间的私密性。在本次项目中, “消除室内外的界限 “与强调建筑的简洁性和线条的纯粹感同样重要。建筑系统由一个跨度为4 x 4米的钢结构框架组成。别墅外墙采用与绿色屋顶相结合的谨慎色彩,使其与周围环境融为一体。面向海洋和丛林的立面采用了大尺寸的铝制穿孔模块,它们既能在阳光下保持稳定的温度又具有超强的防锈性能。如果将其拉起,它们还可作为天棚。
每块铝板上的穿孔比例和图案都不一样,从而在室内创造出惊艳的光影效果。面板采用了与耐候钢同色的特殊涂层,整个后墙都被焦木覆层包裹,并使用了一种名为Shou Sugi Ban的日式传统防风化和抗老化技术来处理。从布局上看,这栋别墅拥有与外形一样的极简风格。共用设施、储藏室、卫生间和厨房均沿后墙分布。剩余部分的布局非常开放,模糊的内外部空间界限让整个空间看起来就像是一个带顶的露台。轻质滑动隔墙可以根据需要来创造出私密的区域,或将空间重组。露台处有一个向外延伸的无边泳池,部分区域被屋顶覆盖以避免烈日的侵袭。室内装饰以自然材质的暖色调、大地色系为主。除了休息室和餐椅外,所有的家具都是为这栋别墅量身定制的。大部分家具都在当地工匠的帮助下制作,有的部件则在捷克定制并运到现场。此外,项目团队还选择了捷克著名玻璃制造公司Bomma的相关产品以及他们与项目整体热带风情相得益彰的Shibari灯具。
在哥斯达黎加茂密的丛林中,有一个超越寻常的空间:白天与黑夜在苍翠的植物群、原始的海滩和雅致的设计中不断交替变换。在这里,三栋别墅都有着个性鲜明又独特的设计与风格。度假村里的别墅在回归大自然与受保护的奢华住所之间取得了难得的平衡。当你与丛林的气息交融,在舒适迷人的空间里放松身心并找回最初的自己时,创造力就会自然而然地迸发。由沉静的混凝土墙组成的巨型单体结构,在丛林深处裸露而自信地矗立着。广阔的玻璃墙、丛林原木和大胆的外形尺寸在点燃、吸收并反映着自然的原始元素。手绘墙壁捕捉了水的动态性质,并映衬着周围的热带森林。走在铺有手工尼加拉瓜瓷砖的地板上,柔和、真实与疗愈感汇聚在脚下,唤起了一种来自上古时代的情绪。极具复古特质的装饰与现代设计的简约性也在室内空间中得以结合。
哥斯达黎加Atelier别墅外部实景图
哥斯达黎加Atelier别墅外部实景图
哥斯达黎加Atelier别墅外部实景图
哥斯达黎加Atelier别墅外部实景图
哥斯达黎加Atelier别墅外部实景图
哥斯达黎加Atelier别墅外部实景图
哥斯达黎加Atelier别墅外部实景图
哥斯达黎加Atelier别墅外部实景图
哥斯达黎加Atelier别墅外部实景图
哥斯达黎加Atelier别墅外部实景图
哥斯达黎加Atelier别墅外部实景图
哥斯达黎加Atelier别墅外部实景图
哥斯达黎加Atelier别墅外部实景图
哥斯达黎加Atelier别墅外部实景图
哥斯达黎加Atelier别墅外部夜景实景图
哥斯达黎加Atelier别墅外部夜景实景图
哥斯达黎加Atelier别墅外部夜景实景图
哥斯达黎加Atelier别墅外部夜景实景图
哥斯达黎加Atelier别墅外部夜景实景图
哥斯达黎加Atelier别墅外部夜景实景图
哥斯达黎加Atelier别墅内部实景图
哥斯达黎加Atelier别墅内部实景图
哥斯达黎加Atelier别墅内部实景图
哥斯达黎加Atelier别墅内部实景图
哥斯达黎加Atelier别墅内部实景图
哥斯达黎加Atelier别墅内部实景图
哥斯达黎加Atelier别墅内部实景图
哥斯达黎加Atelier别墅局部实景图
哥斯达黎加Atelier别墅局部实景图
哥斯达黎加Atelier别墅内部实景图
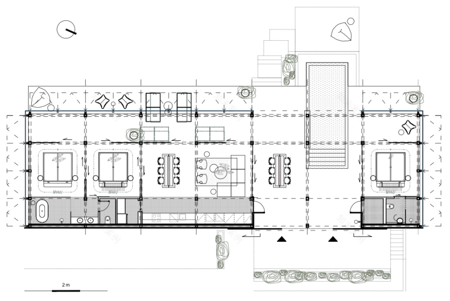
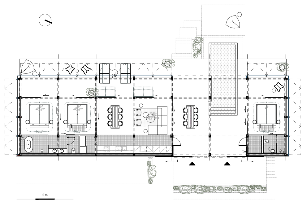
哥斯达黎加Atelier别墅平面图
客服
消息
收藏
下载
最近


































