查看完整案例

收藏

下载
项目名称:塞浦路斯花园别墅
位置:塞浦路斯
设计公司:Christos Pavlou Architecture
城市被认为是造成当今许多环境问题的主要原因之一。研究表明,城市排放的碳比原先想象的多60%,实际上,它们占全球二氧化碳排放量的70%以上。在我们的花园住宅项目中,我们要强调城市花园和创造小气候的潜力,这些潜力可以改善城市的生活条件并减缓全球变暖。将单一房屋整合到城市结构中始终是一个挑战,但它可以作为一种统一要素发挥积极作用,可以以积极方式促进城市的连续性。与其他许多将房屋与邻里的其他建筑隔离开来的城市房屋相比,我们建起了围栏和各种障碍,我们的建议旨在形成公共绿地的物理延续,该公共绿地位于该地块的最长一侧。 我们的设计旨在在社区,私人(房屋)和公共绿地之间建立统一的关系。这样,诸如建筑,街道和公共空间之类的城市元素就不会被孤立地视为绝对活动,而是被视为一个单一的同质配置。我们的房子成为公园的一部分,公园也包含在房子中,从某种意义上说,两者与人行道,花园,阳台,门槛等共同的地方相互关联。并被视为一个类似房屋的大城市的元素。这样,我们的花园住宅可帮助提升城市结构的质量,同时寻求改善生物多样性,从而减少城市中的二氧化碳足迹。
房屋的中心元素是在地面60%的地块上种植花园,并促进在一楼使用绿色露台。蜂草大多种植在地面上,为蜜蜂营造了友好的环境,从而有助于维持生物多样性。研究表明,世界上75%的粮食作物依赖蜜蜂。该建筑设计为两个矩形立方体,中间有一个绿色庭院。内部花园的概念使人们很难意识到花园在哪里停下来,室内在哪里开始。中心的花园是房屋的主要特色,其余空间则围绕该功能组织和发挥作用。绿色似乎将房子从东向西平分。它深深地流入室内,充满了楼梯下无法使用的空间,并逃到了房屋的另一侧。内部的所有区域都倾向于集中在外部空间上,整个房屋成为中间区域,丰富而紧张的内部空间,但同时又令人愉悦,从而改善了居住者的愉悦和舒适感。一楼的24m长玻璃门不仅分隔了内部空间,而且当打开时,整个房屋就像是一个由花园连接的单个空间。当景观成为概念时,就没有墙了。
塞浦路斯花园别墅外部实景图
塞浦路斯花园别墅外部实景图
塞浦路斯花园别墅外部实景图
塞浦路斯花园别墅外部实景图
塞浦路斯花园别墅外部实景图
塞浦路斯花园别墅外部实景图
塞浦路斯花园别墅外部实景图
塞浦路斯花园别墅外部实景图
塞浦路斯花园别墅外部实景图
塞浦路斯花园别墅外部实景图
塞浦路斯花园别墅外部实景图
塞浦路斯花园别墅外部实景图
塞浦路斯花园别墅外部实景图
塞浦路斯花园别墅外部夜景实景图
塞浦路斯花园别墅外部夜景实景图
塞浦路斯花园别墅内部实景图
塞浦路斯花园别墅内部实景图
塞浦路斯花园别墅内部实景图
塞浦路斯花园别墅内部实景图
塞浦路斯花园别墅内部实景图
塞浦路斯花园别墅内部实景图
塞浦路斯花园别墅内部实景图
塞浦路斯花园别墅内部实景图
塞浦路斯花园别墅内部实景图
塞浦路斯花园别墅内部实景图
塞浦路斯花园别墅内部实景图
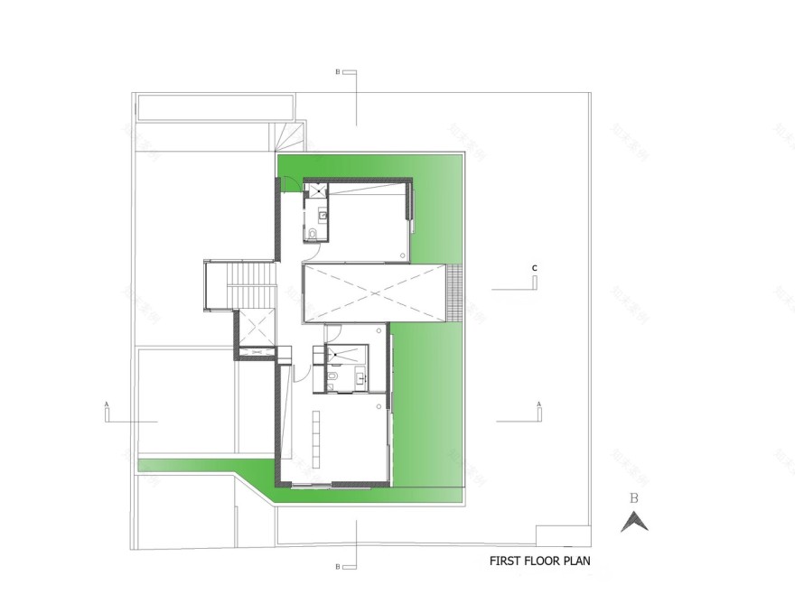
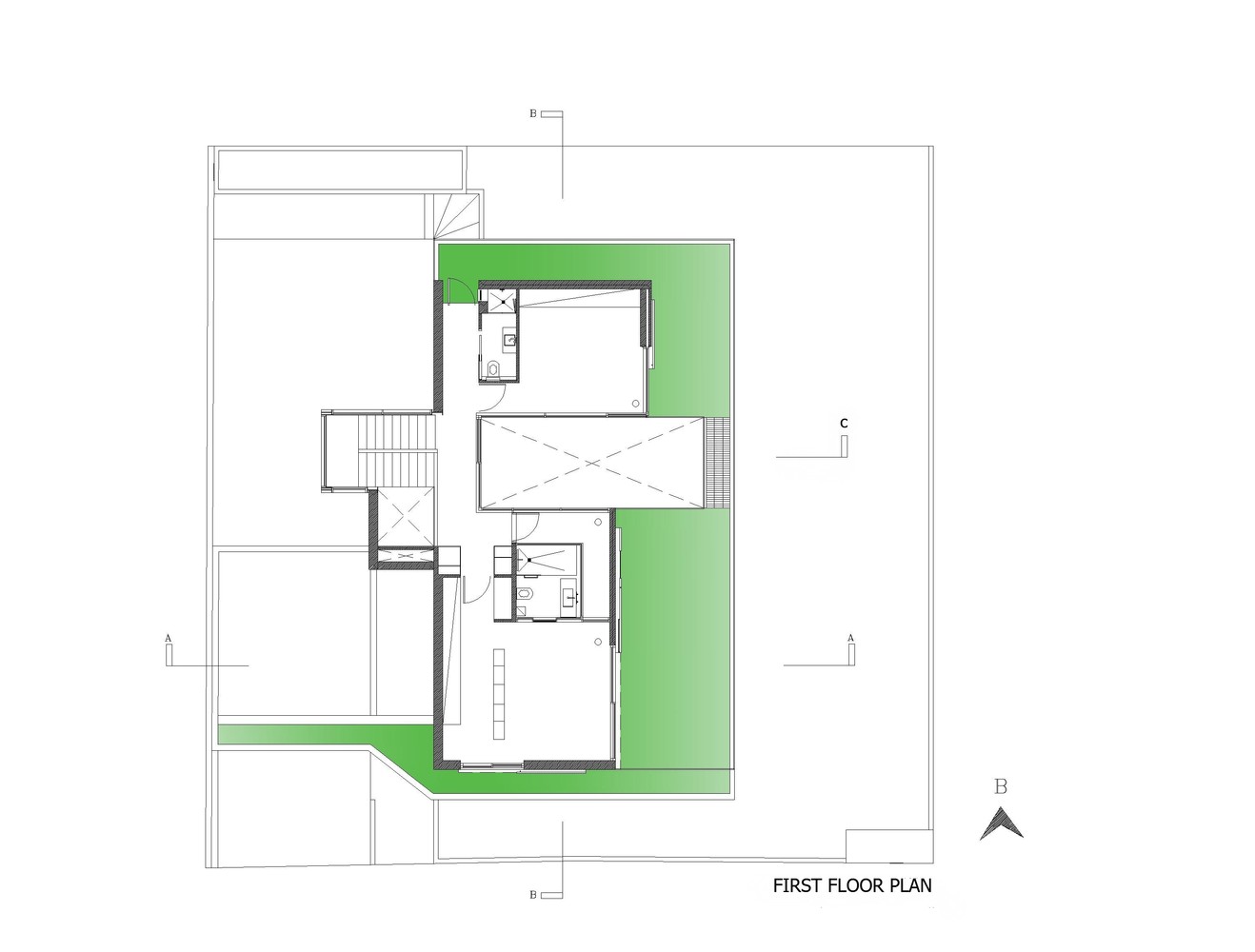
塞浦路斯花园别墅平面图
塞浦路斯花园别墅平面图
塞浦路斯花园别墅平面图
塞浦路斯花园别墅平面图
塞浦路斯花园别墅剖面图
客服
消息
收藏
下载
最近


































