查看完整案例

收藏

下载
项目名称:泰国Ritratana办公楼
位置:泰国
建筑师: 城市实践
背景Ritratana楼是一个城市中心,旨在复兴“Ramkamhaeng-Rama9交叉口”周围人口稠密的住宅区,以集体工作空间和公共区域为特色。这个街区的特点是没有配套设施的高层住宅建筑迅速增加,这主要是由于最近捷运(大都市轨道交通)橙线的扩建。2楼2时代-30年前建造的原始Ritratana建筑是上一代建筑的八层见证。继承人代表着一个新时代,寻求将相邻的狭窄地块开发成B塔。B塔的设计与众不同,但有意通过建筑立面与其前身联系起来,以纪念上一代建筑的骄傲和成功。反映了当代人的现代价值观,业主设想B塔是一个具有独特身份的玻璃结构。
泰国Ritratana办公楼外部实景图
泰国Ritratana办公楼外部实景图
泰国Ritratana办公楼外部实景图
泰国Ritratana办公楼外部实景图
泰国Ritratana办公楼外部实景图
泰国Ritratana办公楼外部实景图
泰国Ritratana办公楼外部实景图
泰国Ritratana办公楼内部实景图
泰国Ritratana办公楼内部实景图
泰国Ritratana办公楼内部实景图
泰国Ritratana办公楼内部实景图
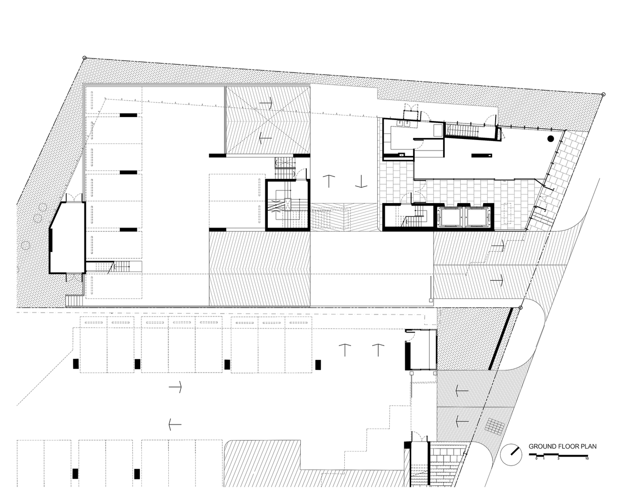
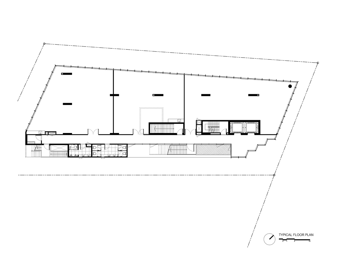
泰国Ritratana办公楼平面图
泰国Ritratana办公楼平面图
泰国Ritratana办公楼平面图
泰国Ritratana办公楼平面图
泰国Ritratana办公楼剖面图
泰国Ritratana办公楼立面图
泰国Ritratana办公楼立面图
泰国Ritratana办公楼立面图
泰国Ritratana办公楼立面图
客服
消息
收藏
下载
最近























