查看完整案例

收藏

下载
项目名称:伦敦Whitfield街45号办公楼翻新
位置:伦敦
设计公司:dMFK Architects
近日,dMFK 建筑事务所为 Derwent London 完成了对 20 世纪 70 年代的五层办公楼Whitfield街 45 号的改造项目。该项目位于Fitzrovia地区的中心地带,经过精心翻新,该项目提供了 10,557 平方英尺的高品质、注重健康的灵活办公空间和宽敞的休闲空间。从建筑现有特征中汲取灵感的高品质饰面贯穿始终,以增强温暖感和触感,例如,从Whitfield街 45 号醒目的现有窗户和匀称的预制混凝土外墙的木菱形中汲取灵感的细木工制品。台面由从废弃锯木厂回收的木材废料制成,与建筑的深色木材围墙和新的水磨石风格瓷砖相得益彰,同时还保留了 20 世纪 70 年代的传统氛围。在过去的半个世纪里,这座 20 世纪 70 年代的建筑经历了一系列不连贯、不协调的装修,已不再符合现代人的办公需求。dMFK 的方法是将该建筑恢复Whitfield街 45 号的真实面貌,在其无人问津的困境中寻找解决方案,同时解决随着工作方式的演变而出现的问题,从而实现成功持久的翻新。
在原建筑设计的那个年代,办公室的层高更低且通透性更低——租客们并不欢迎人们从外部进入它们的工作环境。Whitfield街45号办公楼的地下室里有一个细长的坡道,专门为 20 世纪 70 年代的小型汽车而设,现在已经成为多余的停车设施。现在,大多数的工作者使用公共交通或者骑车来到中心城区。这座建筑不再正常的运转。为了解决这些问题,dMFK的设计方案精心的提升了建筑的整体可读性,加强每一层之间的联系,重新塑造了一个清晰定义的吸引人的入口,激活了建筑首层。并将地下室改造成最先进的休闲设施。今天,人们对工作环境的期待是能提供灵活性和高舒适度的生活设施,一种要远好于远程办公的舒适环境。灵活性是成功实现这一目标的关键–设计师需要为不同的任务提供不同的办公空间。
最终的建筑设计融合了用于非正式协作工作的休息空间、用于安静专注和私人通话的隔间、用于更传统协作的明亮会议室以及每层楼的室外露台(共 1400 平方英尺),以支持用户的健康、平静和工作效率。该设计还为未来的灵活性提供了保障,通过下拉式服务,现有的房间配置可在未来几年内根据租户的需要进行更改。在气候危机不断升级、建筑成本急剧攀升的情况下,建筑师们知道,从可持续发展的角度和商业的角度出发,用经过深思熟虑的高质量干预措施来纠正过去装修中的错误,是最合适的建筑应对措施。建筑师没有从根本上改造建筑结构,而是选择了战略性改造,重点是提高可达性、通透性和灵活性——以最少的改动产生最大的效果。新改造的建筑并没有追赶最新的设计潮流;建筑师相信,这样它的使用寿命会更长,成为真正的可持续发展的标志。
伦敦Whitfield街45号办公楼翻新外部实景图
伦敦Whitfield街45号办公楼翻新外部实景图
伦敦Whitfield街45号办公楼翻新内部实景图
伦敦Whitfield街45号办公楼翻新内部实景图
伦敦Whitfield街45号办公楼翻新内部实景图
伦敦Whitfield街45号办公楼翻新内部实景图
伦敦Whitfield街45号办公楼翻新内部实景图
伦敦Whitfield街45号办公楼翻新内部实景图
伦敦Whitfield街45号办公楼翻新内部实景图
伦敦Whitfield街45号办公楼翻新内部实景图
伦敦Whitfield街45号办公楼翻新内部实景图
伦敦Whitfield街45号办公楼翻新内部实景图
伦敦Whitfield街45号办公楼翻新内部实景图
伦敦Whitfield街45号办公楼翻新内部实景图
伦敦Whitfield街45号办公楼翻新内部实景图
伦敦Whitfield街45号办公楼翻新内部实景图
伦敦Whitfield街45号办公楼翻新内部实景图
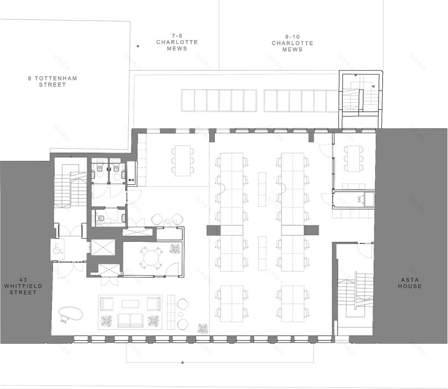
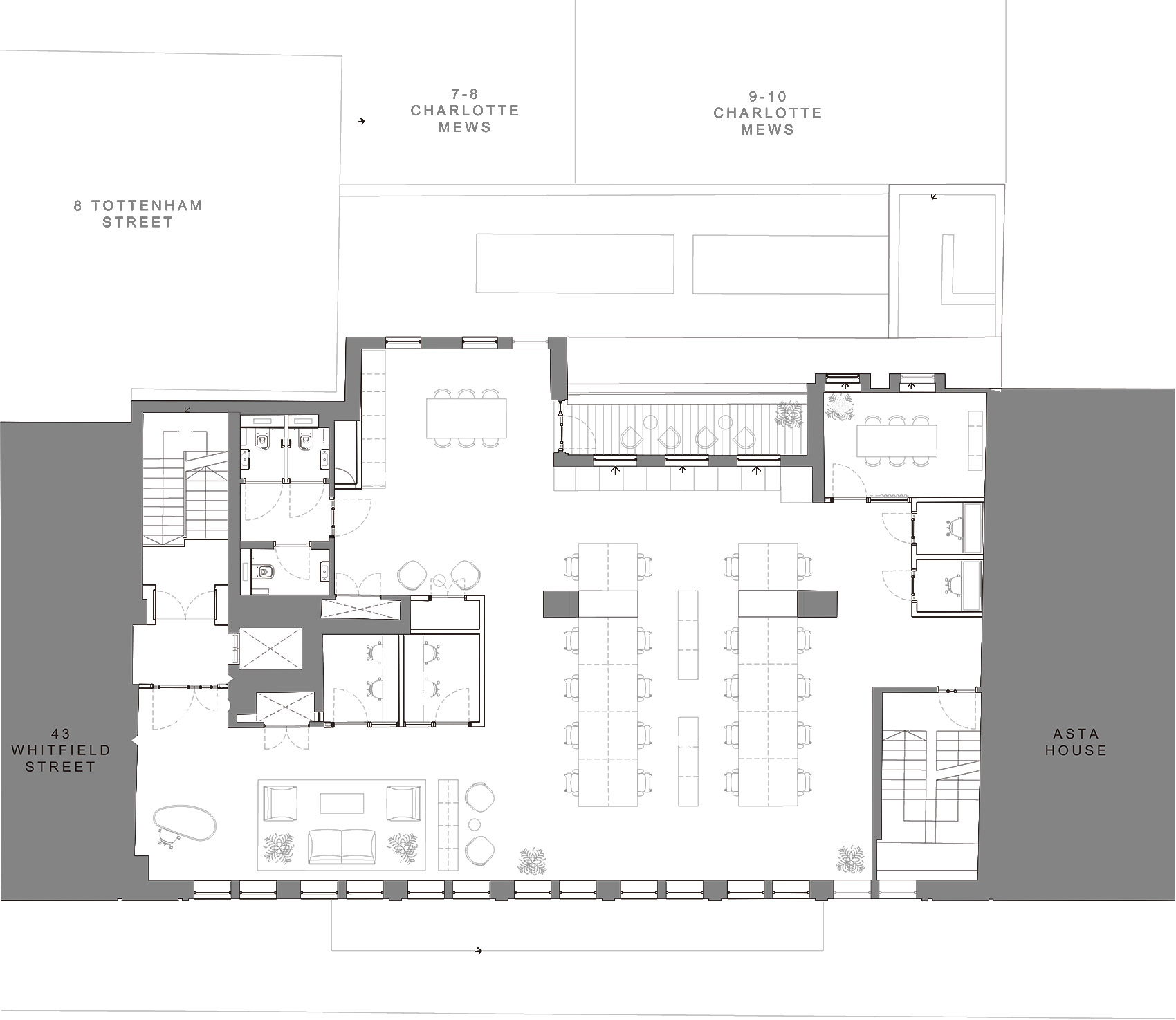
伦敦Whitfield街45号办公楼翻新平面图
伦敦Whitfield街45号办公楼翻新平面图
伦敦Whitfield街45号办公楼翻新平面图
伦敦Whitfield街45号办公楼翻新平面图
伦敦Whitfield街45号办公楼翻新平面图
伦敦Whitfield街45号办公楼翻新平面图
伦敦Whitfield街45号办公楼翻新平面图
伦敦Whitfield街45号办公楼翻新立面图
客服
消息
收藏
下载
最近




























