查看完整案例

收藏

下载
项目名称:无锡德禄柏丽亚太生产研发总部
位置:无锡
设计公司: Chiasmus 建筑事务所
摄影师:存在建筑-建筑摄影
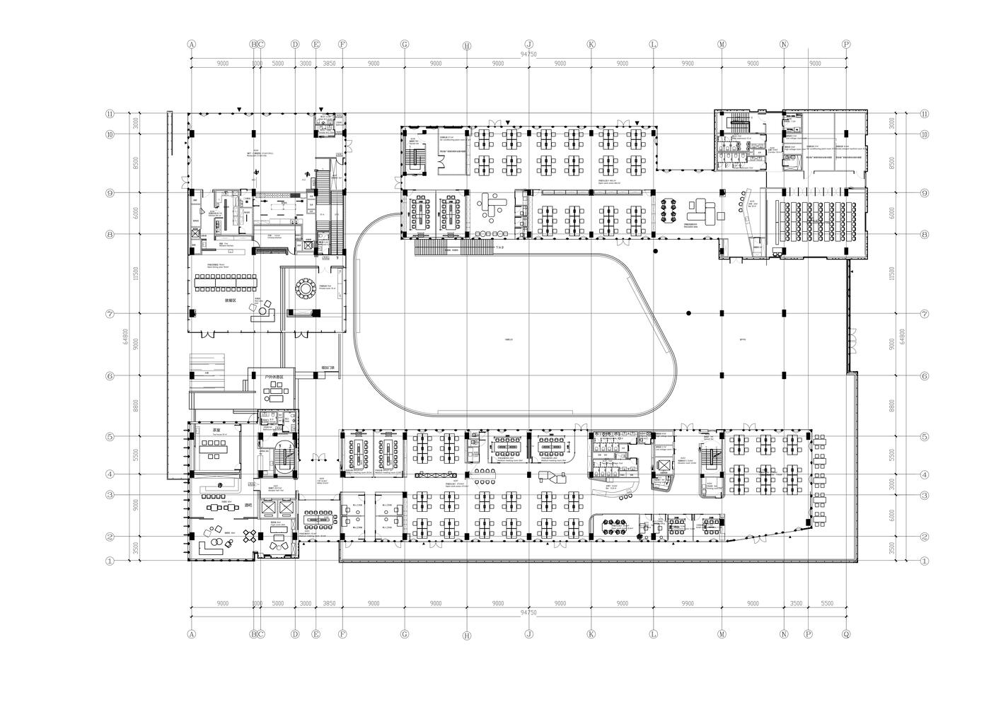
柏丽德禄亚太生产研发总部被设想为一个微型环境,承载研究、实验、管理、展览和产品发布等功能。从平面上,四个相互交错的矩形体量保护着一个长条形的庭院。从剖面上,底层的大型体量由人造石材勾勒而成,而玻璃幕墙覆盖的二层则是一个由锌板包裹的雕塑体量。建筑的外部造型深受德国跑车(如宝马 M1)棱角分明的线条的启发。内部花园是研发中心所有部门的中心聚会场所,花园也是一个非正式的室外舞台,设有阶梯式座位和中央舞台。所有三层办公空间都向内部花园开放,既能采光,又可借助阳台和露台通向中心空间。修长的庭院也让人联想到永恒的意大利都灵的菲亚特工厂。一楼的内部空间主要属性是公共的,包括主大厅、会议室、柏丽德禄的独立展厅、及与访客频繁互动的咖啡厅以员工空间。所有上述空间都可直接通往中央花园。二楼是管理办公空间和贵宾用餐及接待空间,这些空间相互贯穿,但又被一系列室外露台分隔开来。
在这里,室内和室外空间的划分变得模糊起来。由于每个体量的尺寸较小,所有办公空间都能享受到自然光和交叉通风,营造出舒适节能的工作环境。三楼是研发中心,展示一些正在开发中的待发布产品。此外,三层还设有一个多功能阶梯式舞台,可举办演出、讲座、培训及其他集体活动。建筑西南角的垂直塔楼是公共聚会空间:它的底层是公共餐厅,其上的所有楼层都设有开放的公共开放空间。这里所有的内部空间都朝向西侧流淌的溪水。室内采用简洁的材料,公共区域铺设人造石地板,办公和研发空间铺设地毯,便于未来灵活布置。大部分垂直表面采用金属、石材和玻璃材料,天花板保持干净裸露,以创造高度和空间灵活性。所有的室内隔断、滑动门、嵌入式橱柜都采用的是柏丽和德禄自己的产品。我们的想法便是,研发中心的内部工作空间同时也是一个 “现场展示厅”,员工们在自己设计和生产的产品间穿梭。
员工们可以共享大部分朝向风景和通向露台的空间,包括餐厅、员工休息室、多功能厅等。 我们希望为工作人员创造一个充满灵感、感到自豪,且能放松的环境。与此同时我们还努力创造许多功能不明确的空间,希望在这里工作的每个人都有自己最喜欢的角落,无论是室外、室内,还是介于两者之间。室外材料的色调延伸到生产厂房的外墙。垂直方向的渐变为水平体量提供了视觉韵律,同时与窗饰设计相融合。厂房内部采用大量天窗照明。生产线在几乎零粉尘的室内环境中运行。景观设计基于海绵城市的理念,借助自然雨水的地下渗透。大型水景和起伏的地面景观打破场地本身的单调感。建筑南侧种植了大量树木。随着时间的推移,这些树木将逐渐长大,为停车区提供遮阳,并为研发中心的主立面提供视觉缓冲。柏丽(Nobilia )1997年进入中国市场,成为首家将德国安装进口橱柜引入中国的进口品牌。
无锡德禄柏丽亚太生产研发总部外部实景图
无锡德禄柏丽亚太生产研发总部外部实景图
无锡德禄柏丽亚太生产研发总部外部实景图
无锡德禄柏丽亚太生产研发总部外部实景图
无锡德禄柏丽亚太生产研发总部外部实景图
无锡德禄柏丽亚太生产研发总部外部实景图
无锡德禄柏丽亚太生产研发总部外部实景图
无锡德禄柏丽亚太生产研发总部外部实景图
无锡德禄柏丽亚太生产研发总部外部实景图
无锡德禄柏丽亚太生产研发总部外部实景图
无锡德禄柏丽亚太生产研发总部外部实景图
无锡德禄柏丽亚太生产研发总部外部实景图
无锡德禄柏丽亚太生产研发总部外部实景图
无锡德禄柏丽亚太生产研发总部外部实景图
无锡德禄柏丽亚太生产研发总部内部实景图
无锡德禄柏丽亚太生产研发总部内部实景图
无锡德禄柏丽亚太生产研发总部内部实景图
无锡德禄柏丽亚太生产研发总部内部实景图
无锡德禄柏丽亚太生产研发总部内部实景图
无锡德禄柏丽亚太生产研发总部内部实景图
无锡德禄柏丽亚太生产研发总部内部实景图
无锡德禄柏丽亚太生产研发总部内部实景图
无锡德禄柏丽亚太生产研发总部内部实景图
无锡德禄柏丽亚太生产研发总部内部实景图
无锡德禄柏丽亚太生产研发总部平面图
无锡德禄柏丽亚太生产研发总部平面图
无锡德禄柏丽亚太生产研发总部平面图
无锡德禄柏丽亚太生产研发总部平面图
无锡德禄柏丽亚太生产研发总部平面图
无锡德禄柏丽亚太生产研发总部平面图
无锡德禄柏丽亚太生产研发总部平面图
无锡德禄柏丽亚太生产研发总部立面图
客服
消息
收藏
下载
最近



































