查看完整案例

收藏

下载
项目名称:沙特阿拉伯阿西拉总部
位置:沙特阿拉伯
建筑师: 彼得·鲁格·阿奇特克滕
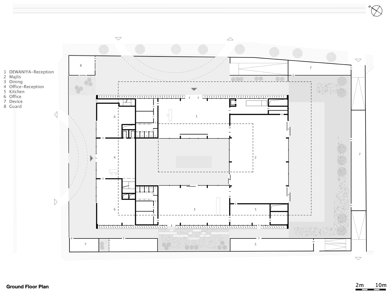
利雅得是沙特阿拉伯的首都,也是该国最大的城市,人口约770万。它位于历史上的Najd / Al-Yamama地区,位于阿拉伯半岛大高原的中心。该物业位于该市西部,靠近Al Safarat外交区,该区是众多大使馆和住宅区的所在地。在酒店的东侧,您会发现哈立德国王路,可直接到达Dewaniya和地下停车场。在北侧,一座清真寺位于对面,车道通往总部及其办公室。该建筑是一个新的建筑,包括两个主要功能-行政与Dewaniya和办公室,以及一个地下停车场。该建筑是根据该地块的矩形形状设计的,共有两层,一层夹层和一层地下室。建筑师分析了传统的建筑形式和当地的气候条件,以确保建筑非常适合其环境。设计中包括一个内部庭院,以实现自然通风和采光,并在其周围安排了各种功能,以提供建筑内的直观方位。
建筑体量被水平分割成一个角度,两个部分相互转换。上半部分已被转移,以创建一个自然遮蔽的Dewaniya入口区。一楼是Dewaniya,有一个宽敞的接待处、majlis和用餐区,以及一个单独的办公室门厅。办公室、会议室和餐厅位于楼上。建筑的外墙覆盖着三种不同颜色的典型当地砂岩板——米色、黄色和白色。根据天空的方向和太阳的位置,垂直的砂岩百叶窗以不同的方向安装在立面上。这种设计为玻璃外墙提供了有效的防晒保护。板条还构成了立面并赋予其韵律,形成了一个重要的建筑元素。户外区域以不同的方式布置——部分覆盖石板,辅以岩石花园和沙漠植物,以及与部分绿色草坪形成对比的棕榈树群。内院也是用石板铺成的,可以注水。该建筑的设计经过了仔细的考虑,以确保其与环境非常适合,并提供舒适高效的工作空间。
沙特阿拉伯阿西拉总部外部实景图
沙特阿拉伯阿西拉总部外部实景图
沙特阿拉伯阿西拉总部外部实景图
沙特阿拉伯阿西拉总部外部实景图
沙特阿拉伯阿西拉总部外部实景图
沙特阿拉伯阿西拉总部外部实景图
沙特阿拉伯阿西拉总部内部实景图
沙特阿拉伯阿西拉总部内部实景图
沙特阿拉伯阿西拉总部内部实景图
沙特阿拉伯阿西拉总部内部实景图
沙特阿拉伯阿西拉总部内部实景图
沙特阿拉伯阿西拉总部平面图
沙特阿拉伯阿西拉总部平面图
沙特阿拉伯阿西拉总部平面图
沙特阿拉伯阿西拉总部剖面图
沙特阿拉伯阿西拉总部剖面图
客服
消息
收藏
下载
最近



















