查看完整案例

收藏

下载
项目名称:瑞典Stuveriet办公楼
位置:瑞典
设计公司:Erdegard Arkitekter
在哥德堡的Masthuggskajen,办公大楼Stuveriet耸立在16层的雷蓝色金属板中。一个不规则的情节创造了一个有着许多角和边的体量,这些角和边都被向上圆化成一个完全属于它自己的角色。这座房子被赋予了一个适合哥德堡恶劣天气的轮廓,雨水和碎片扫过圆形的立面形状。屋顶轮廓也屏蔽了建筑的开放技术区,没有人想看到。雷蓝色经过精心设计,可以随着天气的细微变化而变化。Stuveriet由一种单一的表面材料覆盖:再生铝。屋顶和立面之间没有界限。与蓝色的外观形成鲜明对比的是,街道是热情和温暖的。
这里有一个舒适的入口大厅,为每个人提供咖啡馆,可以抵御天气的影响。较低的楼层是城市中每个人都可以进入的区域。红色的屋顶是双层高咖啡馆的突出部分,这种颜色是为了向原始的海港环境致敬。红色代表庆祝,但也与港口生锈的起重机和该地区特有的红色铁皮屋顶联系在一起。木质纤维屋顶给人一种略显粗糙,同时又与众不同的感觉。在墙上,面板的功能既是声学材料,也是高大房间的框架。在一楼,有一面木墙可以倚靠,通往主入口的天篷比你可能习惯的要稍微低一些,这是必需的;这里经常刮风。
瑞典Stuveriet办公楼外部实景图
瑞典Stuveriet办公楼外部实景图
瑞典Stuveriet办公楼外部实景图
瑞典Stuveriet办公楼外部实景图
瑞典Stuveriet办公楼外部实景图
瑞典Stuveriet办公楼内部实景图
瑞典Stuveriet办公楼内部实景图
瑞典Stuveriet办公楼内部实景图
瑞典Stuveriet办公楼内部实景图
瑞典Stuveriet办公楼内部实景图
瑞典Stuveriet办公楼内部实景图
瑞典Stuveriet办公楼内部实景图
瑞典Stuveriet办公楼内部实景图
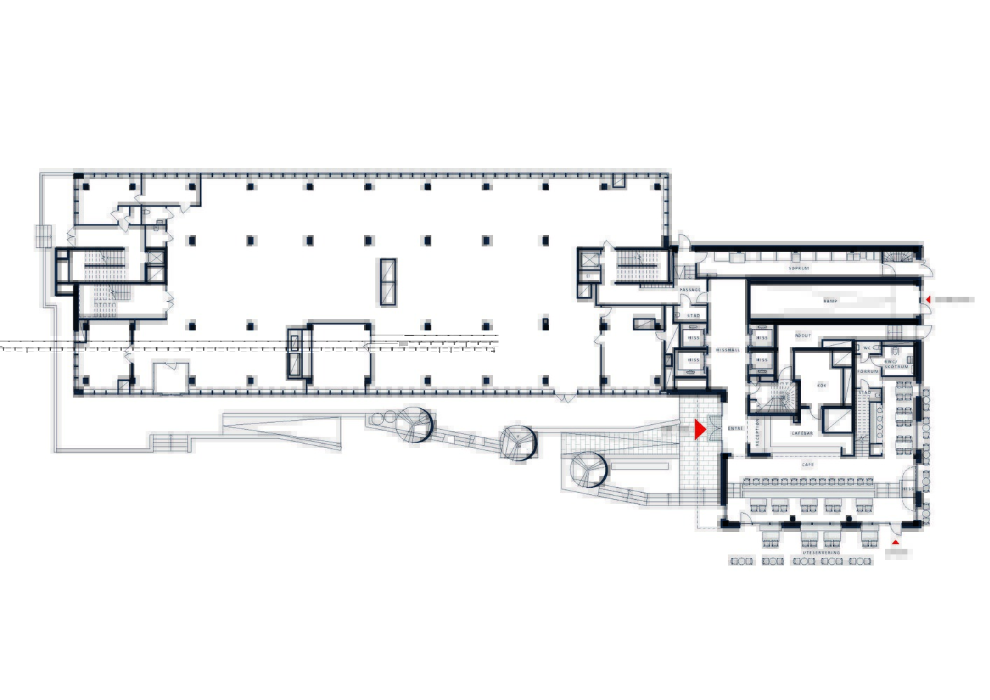
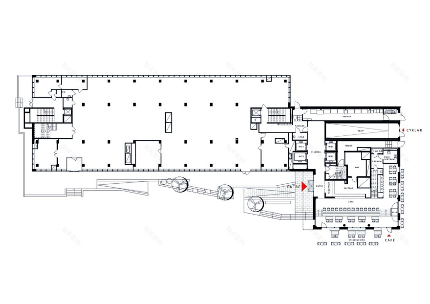
瑞典Stuveriet办公楼平面图
瑞典Stuveriet办公楼平面图
瑞典Stuveriet办公楼平面图
瑞典Stuveriet办公楼剖面图
瑞典Stuveriet办公楼立面图
瑞典Stuveriet办公楼立面图
瑞典Stuveriet办公楼立面图
瑞典Stuveriet办公楼立面图
客服
消息
收藏
下载
最近
























