查看完整案例

收藏

下载
项目名称:意大利Be顾问总部
位置:意大利
建筑师: 建筑设计部
BeAdvisor总部产生于一个有远见的企业家和威尼托的乡村景观之间的相遇,由简单数字的算盘描述:耕地的几何表面;大道、树篱和葡萄藤的直线;堤坝、运河和水库的凹凸不平。在这里,一个大约10,000平方米的场地位于住宅区和开阔的乡村之间,这是一家金融咨询公司的老板决定将他的办公室搬到这里,之前他的办公室位于历史悠久的市中心。他被一种新的工作环境理念所引导,这种理念融合了操作性、共享性和以运动为中心的空间,将室内和室外融为一体。福祉、健康、社交和生态是这一方法的基石,它以人为本。一个暴露的混凝土体量在一个楼层上具有显著的水平性,与天际线融为一体,并与开放空间和附近的非正式休闲空间建立了多种关系。识别路堤和洼地的细微变化改变了场地的自然凸度。
虽然中央绿草如茵的区域响应了水力功能,并使立面流线化,但路堤对场地周围的车辆交通起到了声音和视觉屏障的作用。自然地形构造本身被用作项目的材料,并被修改以配置新的技术解决方案,定义不可预见的透视图,并确定空间层次。建筑象征性地占据了景观的情节,通过其基本的语言,它看起来像一个悬浮在广阔的草地上的物体,与花园保持平衡。地形成分的波纹和混凝土体量的刚性之间的张力集中在建筑对象通过与乡村接触而产生的阴影中。平面构成源自平行但交错的外露混凝土隔墙,重新诠释了耕地的纹理。它们的模块化让人想起以前占据项目场地的藤蔓植物的间距。这种将空间连接成平行条带的方式在立面上也清晰可辨,这是通过中央分布路线的高度差实现的。
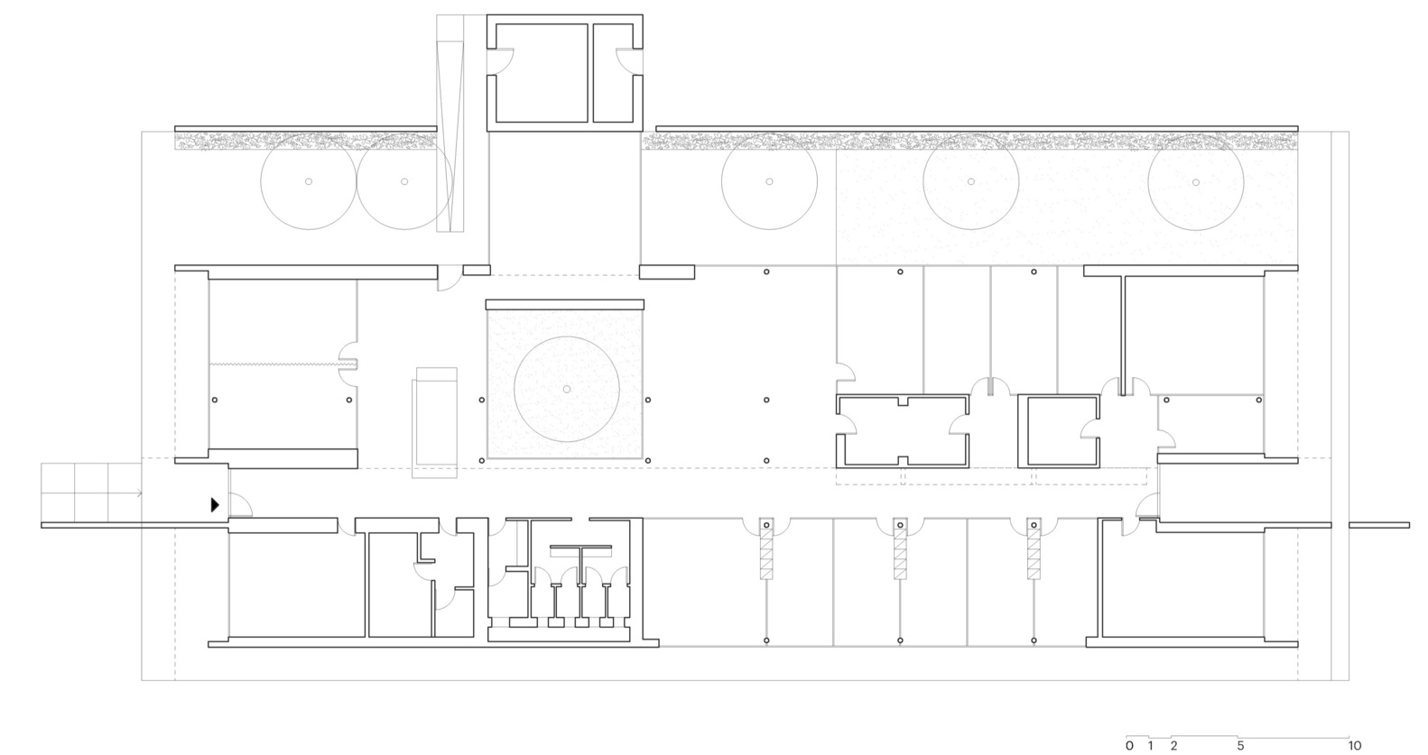
工作空间沿着这条轴线发展,它的顶端是入口,由一个不成比例的钢门和一面悬挂的混凝土墙加强。第二条轴线与第一条轴线正交,将建筑的公共正面与操作区域分开:接待室和会议室位于第一部分,办公室和开放空间位于第二部分。过滤带在布局上以向北的外向技术体量为标志,包含洗手间和杂物间,一个带厨房的休闲区和一个露台。地板用光滑的水泥砾岩处理,骨料外露。分布路径的远景被一个灌木状的走道加强了,走道的一端指的是被屋顶切断的光线。入口柜台和外部地板也重新采用了混凝土,与木质板条天花板、无烟煤灰色涂漆的百叶窗和钢窗进行了对话。从光电系统到回收雨水用于灌溉的技术选择都是面向资源的可持续利用。室内空间与自然环境建立了非常密切的关系。面向东西的混凝土隔墙与大窗户交替,增加了花园的景观,并欢迎自然光,根据室内空间的需要进行调节。
屋顶的突出部分和外部窗帘可以防止南面的阳光直射。中央天井位于公共区域和操作空间之间,代表着工作场所的视觉支点,将自然光和植物带回建筑的中心。另外两个庭院位于北面,在建筑和停车场之间创造了开放空间。这些是矿物空间,其中突出的是Phormium带和一系列桦树。面向庭院的办公室有大窗户,受益于来自北方的漫射光,而拥有双面景观的休闲室向外延伸,成为一个理想的延续。因此,工作场所具有高度的灵活性、生态和技术创新,与非正式的开放空间、绿色区域、帕德尔球场、自行车共享和赛车服务相结合。这种污染促进了创造力和协同作用,而与自然环境的直接接触增加了幸福感,被认为是视觉、听觉、发光和温湿度的舒适。自然和人为因素和谐地结合在一起,根据美的有机意图,创造了一个工作和个人服务的校园。
意大利Be顾问总部外部实景图
意大利Be顾问总部外部实景图
意大利Be顾问总部外部实景图
意大利Be顾问总部外部实景图
意大利Be顾问总部外部实景图
意大利Be顾问总部外部实景图
意大利Be顾问总部外部实景图
意大利Be顾问总部内部实景图
意大利Be顾问总部内部实景图
意大利Be顾问总部内部实景图
意大利Be顾问总部内部实景图
意大利Be顾问总部内部实景图
意大利Be顾问总部内部实景图
意大利Be顾问总部内部实景图
意大利Be顾问总部平面图
意大利Be顾问总部平面图
意大利Be顾问总部平面图
意大利Be顾问总部剖面图
意大利Be顾问总部剖面图
客服
消息
收藏
下载
最近






















