查看完整案例

收藏

下载

翻译
Architect:HIBINOSEKKEI;Youji no Shiro
Location:Guangzhou, Guangdong, China; | ;View Map
Project Year:2020
Category:Nurseries
This project is to convert an old 7-story adult vocational school building into a kindergarten in Guangzhou. Haizhu District, where the kindergarten is located, has a rich historical and cultural atmosphere that is very familiar to the citizens of Guangzhou. Walking down a slightly narrow street from the main road, the kindergarten building is hidden in a dense forest of banyan trees. In keeping with its natural surroundings and the owner's educational philosophy that emphasizes art and beautiful education, we created this concept of “every element becomes an inspiration for children's art.”
The picture book shelves installed in front of the classrooms are not only to display picture books, but also to induce a free play style by making them bookshelves where children can enter and play inside. In the children's restroom, a children's scale tunnel and mirrored walls make it a fun place for children and make them want to go there.
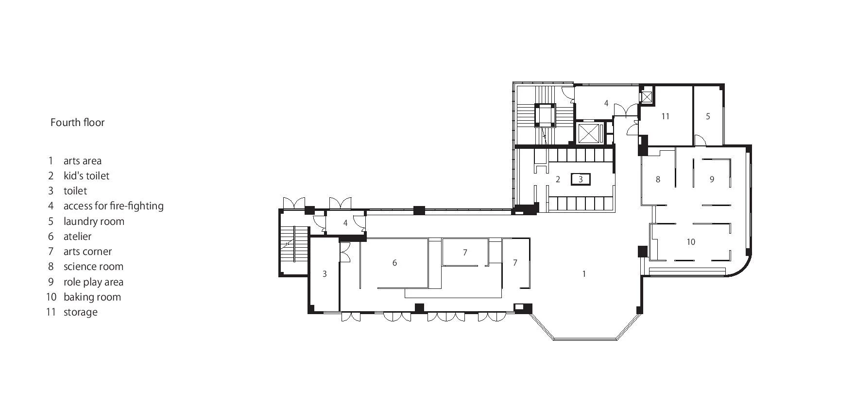
The entire fourth floor is turned into a studio for art activities, with a common area and booths where children can concentrate on their creative activities. The walls of the booths are also mirrors and blackboards, making the entire room a place for children to express themselves.
We aimed to create a design that would make children interested in the place where they spend their time by using interior materials that would carry on the memory of the land and the building, such as the red color, which was inspired by the cotton flower, the flower of Guangzhou, and square tiles that were inspired by paper, as the building was originally a vocational school for learning paper making. The architecture encourages the concept of "every element becomes an inspiration for the children's art" by allowing every space to have a white space that does not have to be used or perceived in a single way.
Design and Supervision: HIBINOSEKKEI + Youji no Shiro + KIDS DESIGN LABO
Photography: Siming Wu, HIBINOSEKKEI
▼项目更多图片
客服
消息
收藏
下载
最近































