查看完整案例

收藏

下载
项目名称:武汉联发科研发中心
位置:武汉
设计公司:上海潘冀建筑设计
摄影师:赵奕龙
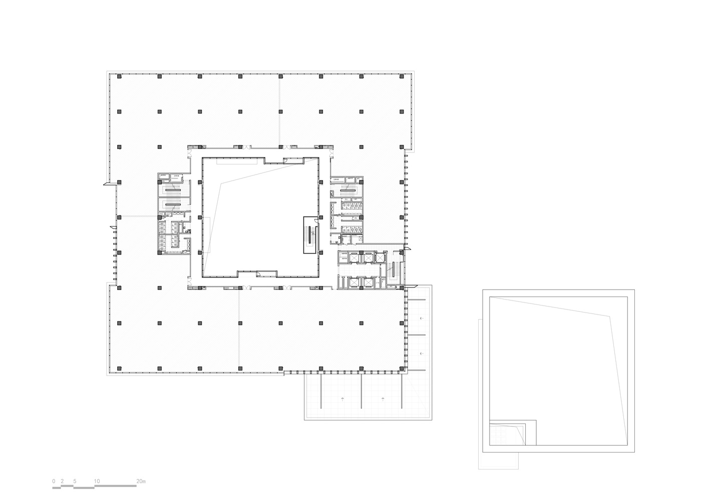
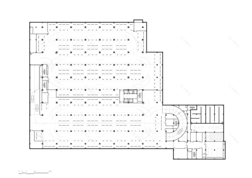
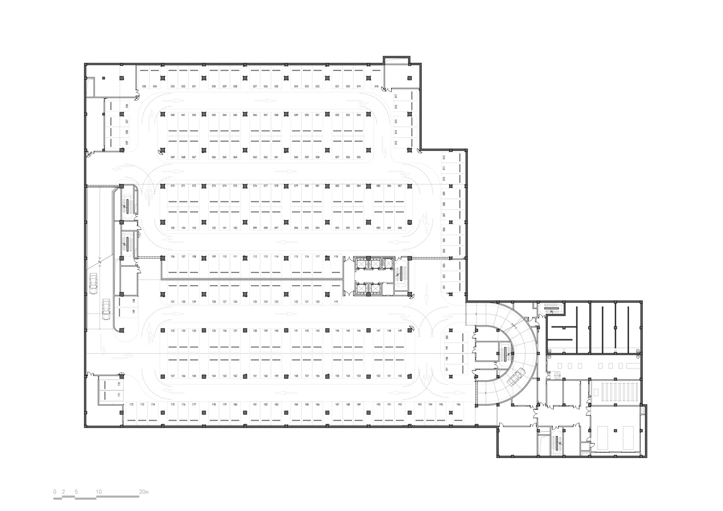
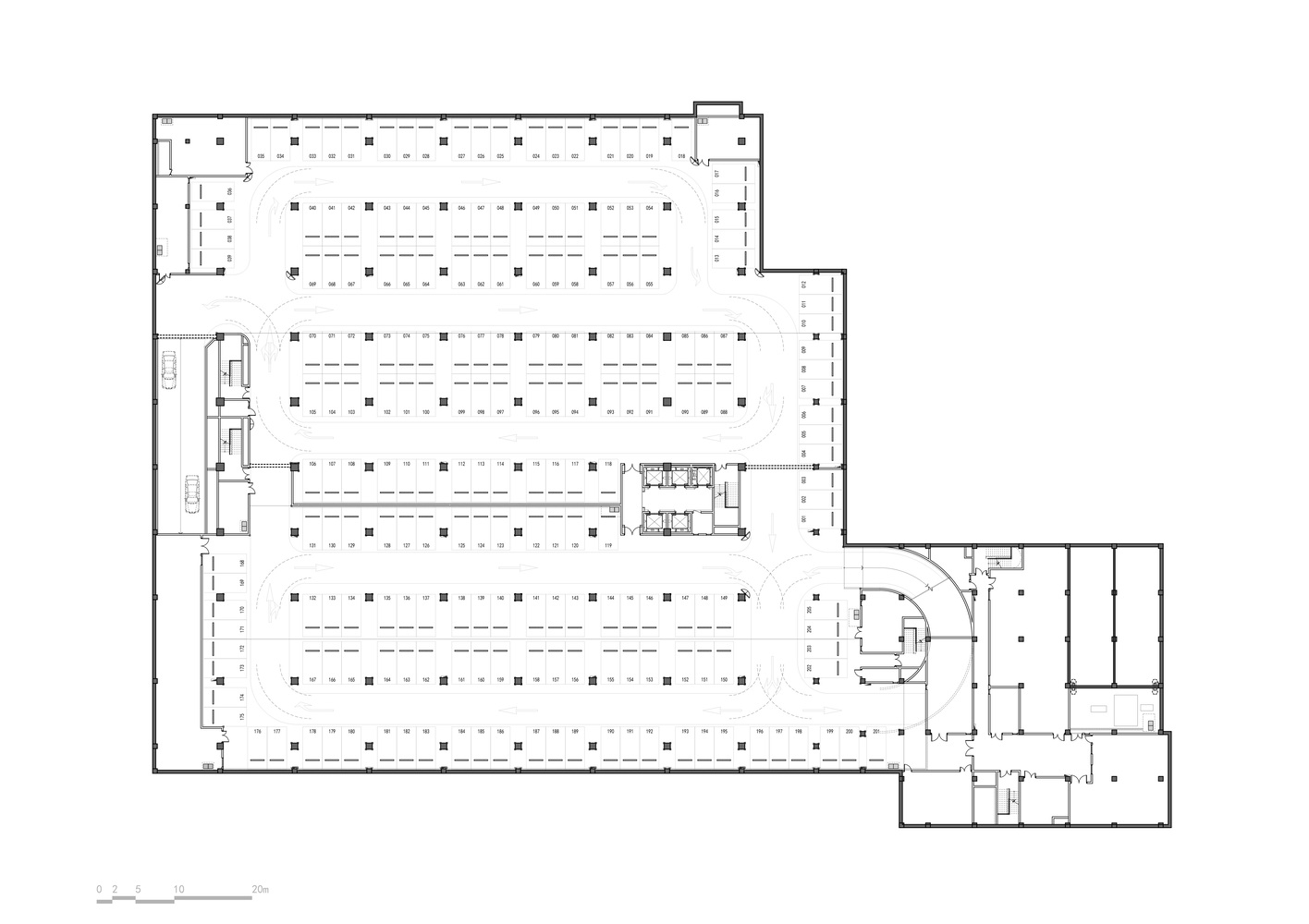
项目位于武汉光谷金融港,为联发科技MediaTek进行软件系统设计的研发基地。基地只向南面临道路,内部却存在约5米的高差和不规则的用地轮廓。因此,如何因地制宜地设计建筑,以满足用户对规整、易于弹性调整使用空间大小的要求,成为了项目设计的关键所在。为了划分出研发主楼和附属停车楼的范围,我们在用地轮廓内嵌入两个方形区域。汽车坡道顺应地势高差,与邻近道路的开口相邻,不仅缩短了车辆地面行驶路径,还将车流和人流分离开来。研发主楼采围合式回形平面,交通核心及辅助空间则集中于东西两侧。这样研发空间既可完整联通,也能轻松地调整大小。此外,我们在建筑中央创造了一个露天中庭以提供额外的自然采光面,同时也形成了内外双重景观视野。中庭内串联的通道、平台和户外楼梯营造出节奏分明的动线,并创造出通透明亮的室内外互动休憩空间。
武汉联发科研发中心外部实景图
武汉联发科研发中心外部实景图
武汉联发科研发中心外部实景图
武汉联发科研发中心外部实景图
武汉联发科研发中心外部实景图
武汉联发科研发中心外部实景图
武汉联发科研发中心外部实景图
武汉联发科研发中心外部实景图
武汉联发科研发中心外部实景图
武汉联发科研发中心外部实景图
武汉联发科研发中心外部实景图
武汉联发科研发中心外部实景图
武汉联发科研发中心外部实景图
武汉联发科研发中心外部实景图
武汉联发科研发中心外部实景图
武汉联发科研发中心外部实景图
武汉联发科研发中心外部实景图
武汉联发科研发中心平面图
武汉联发科研发中心平面图
武汉联发科研发中心平面图
武汉联发科研发中心平面图
武汉联发科研发中心平面图
武汉联发科研发中心平面图
武汉联发科研发中心平面图
武汉联发科研发中心平面图
武汉联发科研发中心剖面图
武汉联发科研发中心立面图
武汉联发科研发中心立面图
客服
消息
收藏
下载
最近































