查看完整案例

收藏

下载
项目名称:南非Deloitte办公建筑
位置:南非
照片:超结构
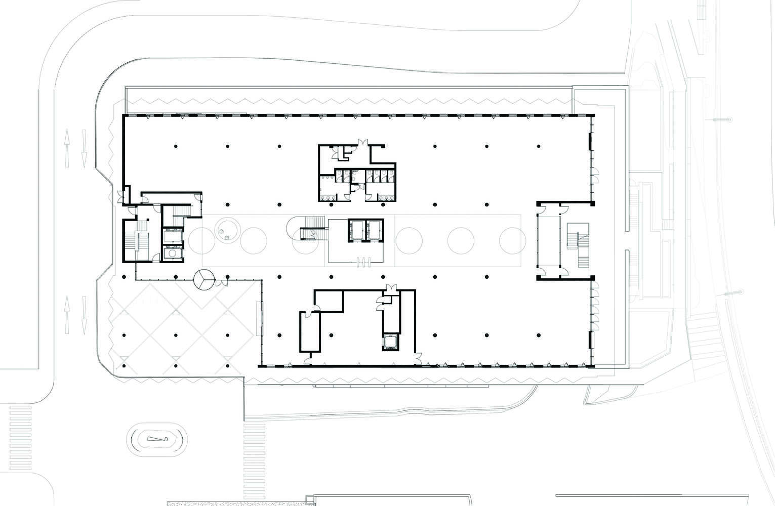
该设计涉及studioMAS和奥雅纳之间的密切合作。其结果是一个合理的设计,其中建筑和工程是完全整合的,从最早的概念阶段开始就并肩发展。立面使用交叉层压木材(CLT),赋予建筑独特的身份。该建筑,以前是一个停车场,是长方形的,从北到南稍微倾斜。褶皱的木材立面通过将木材或玻璃折叠到直接的南北方向来纠正这一点,这有助于阳光控制策略。使用CLT可以节省大量的碳。它是本地的,可再生的,非常耐用。它不需要额外的内部或外部装饰,没有绝缘,它是一种室温材料,最终它允许木材外墙随着时间的推移和老化而改善。冷却主要通过自然通风来实现。窗户可以手动或自动操作。深矩形地板与自然通风的街道/中庭中央分开,允许交叉通风和自然采光。
这条中央自然通风街道有一排大型高层鼓筒,既充当烟囱,又充当光斗(屋顶层的自动窗户控制通过鼓筒的空气流动)。地板的尺寸、中央街道、立面设计和TABS(热激活建筑系统,即浇铸在楼板中的冷冻水管)使得在一年中大约82%的时间里被动控制建筑的温度成为可能。鼓声和中央大街定义了室内空间:人们在这里走动、聚会和互动。这条街道和入口广场也体现了更大的城市规划,该规划将随着该区域的发展而展开,它将打开V&A滨水区和绿点之间的连接,最终将有助于创建一个更加一体化的互联城市。建筑的成功依赖于企业用户的行为改变,例如,窗户的开关。居民与外界的这种关系对能源/碳消耗、新鲜空气、你上班穿的衣服、一个人与外界环境的联系以及最终的幸福水平有着直接的影响。
南非Deloitte办公建筑外部实景图
南非Deloitte办公建筑外部实景图
南非Deloitte办公建筑外部实景图
南非Deloitte办公建筑外部实景图
南非Deloitte办公建筑外部实景图
南非Deloitte办公建筑外部实景图
南非Deloitte办公建筑外部实景图
南非Deloitte办公建筑内部实景图
南非Deloitte办公建筑内部实景图
南非Deloitte办公建筑平面图
南非Deloitte办公建筑平面图
客服
消息
收藏
下载
最近














