查看完整案例

收藏

下载
项目名称:印度Atal Akshaya Urja Bhavan办公楼
位置:印度
设计公司:大厦顾问私人有限公司
印度第一座净正能量建筑/位于国家首都中心的净正能量校园/印度最节能的建筑。作为新能源和可再生能源部(MNRE)的总部,Atal Akshaya Urja Bhawan是一个净积极的能源校园,为该国的节能发展创造了一个新的范例。作为印度的第一个净阳性建筑,该建筑表达了MNRE的开创性愿景,整合可再生能源系统和被动策略,并使其对公众具有教育意义。Atal Akshaya Urja Bhawan建筑群的设计展示了该部的使命,从而鼓励未来的发展将这些可持续原则纳入其设计,同时创造一个标志性的净正能量建筑的原型。位于沿Lodhi路的CGO综合区,占地2.7英亩,新德里该建筑群与印度人居中心、洛迪花园、贾瓦哈拉尔·尼赫鲁体育场等标志性建筑齐名。这些当代标志性建筑结构的几个方面极大地影响了建筑的设计反应——印度人居中心的文化魅力、洛迪花园的绿色绿洲以及贾瓦哈拉尔·尼赫鲁体育场的宏伟象征。
这些背景影响进一步确定了该项目的愿景:创造一个标志性建筑,象征着该国的可持续发展的愿望,并有一个积极的公共界面。该网站的中心位置也增加了它的知名度,它靠近地铁站,确保方便公众连接。为了适应校园的功能需求,培养一个吸引人的公共领域,建筑遵循与场地相同的方向,沿南北轴线排列,同时极大地增加了太阳能电池板的屋顶面积。一个可渗透的公共边缘沿着建筑的东部边缘被创造出来,以庆祝场地的正面。开放的庭院向场地的东南角延伸,在邻近的道路和建筑的前院之间创造了一个无缝的连接。这个延伸部分就是Urja展馆所在的地方,它是一个互动区,旨在颠覆政府建筑不透明、不可渗透的传统形象。作为一个拥有太阳能雕塑和装置的城市广场,Urja展馆横跨JLN地铁站,通过一条林荫步道将展馆与入口前院连接起来,为行人提供流畅的体验。
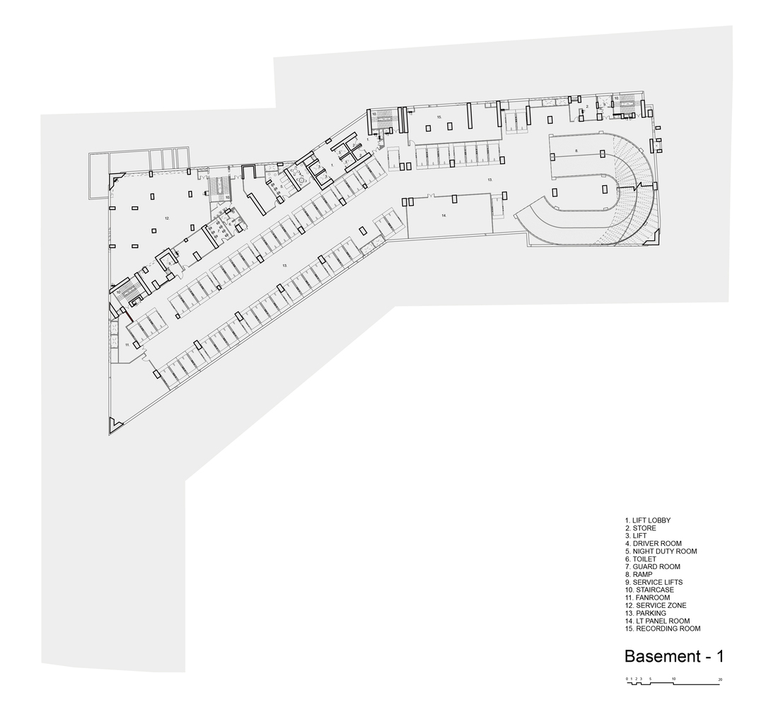
Atal Akshaya Urja Bhawan的建筑以整体可持续性方法为中心,与校园愿景一致,将节能与被动设计策略和低影响材料相结合。整块建筑分为南北两部分,中央中庭作为主要入口,并在两者之间建立枢纽联系。根据场地的几何形状,南翼已经倾斜,以创造一个增强的到达体验,并最大限度地增加从北方进入的日光。从中央中庭延伸出来的循环脊柱将建筑的平面一分为二,功能空间位于东半部。服务和流通核心被放置在另一半上,以保护被占用的区域免受强烈的西方阳光的照射——这是一个灵感的策略,可以应对场地南北对齐带来的挑战。建筑的底层与周围的景观无缝融合,为日常使用者和公众提供公共空间和市民功能。参观者进入三层的中央中庭,朝向以醒目的石头背景为标志的主接待处。中庭的一侧是北翼,有托儿所、Kendriya Bhandar、银行和自动取款机,所有这些都可以从前院直接进入。
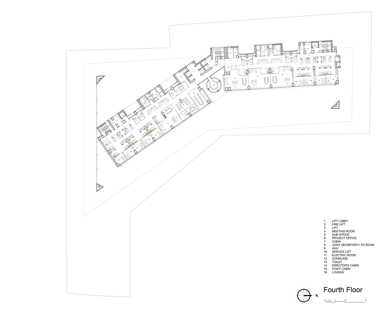
另一侧是南翼,包括一个250座的礼堂、展览中心和访客室,通过南边的二级入口进入。第一层和第二层由集体建筑设施组成,如图书馆、展览区、座位区、食堂、娱乐和锻炼区以及客房,在公共底层和私人办公室楼层之间形成了一个过渡区。工作区位于较高的楼层,在这里他们可以获得最佳的日光、开阔的视野和公共区域的隐私。内阁部长办公室和国务部长位于八楼,这是一个独家楼层,周围的景观尽收眼底。一个大跨度的屋顶坐落在阳台地板上,有65,000平方英尺的太阳能电池板,延伸到建筑的足迹之外,形成了遮蔽墙壁的悬挑。Atal Akshaya Urja Bhavan将成为德里天际线的重要组成部分,它借鉴了Lutyens' Delhi丰富的建筑词汇,为自己打造了一个独特的现代视觉形象,同时也向过去致敬。它延续了公共建筑的传统新德里,使用米色Dholpur砂岩作为主要的立面材料。东面有一个连续的双层玻璃单元(DGU)玻璃幕墙,让阳光进入室内空间,同时隔热。
东立面采用双层墙体隔热,墙体采用ACC砌体,填充200 mm厚的玻璃棉。西面的立面覆盖了服务核心,采用了实心墙和GFRC花柱,允许攀缘植物在上面生长,并为建筑带来凉爽的微风,实现交叉通风。太阳能屋顶的拱腹也由jaalis组成,为屋顶投影提供了美学覆盖,并将建筑与卢泰恩的城市景观的建筑词汇联系起来。在南面的边缘,一面太阳能墙除了为建筑提供能源外,还保护了建筑和南面的座位不受辐射的影响。多种战略干预措施与替代能源相结合,使Atal Akshaya Urja Bhawan成为一个净阳性校园。诸如建筑朝向、开窗、jaalis、节能建筑围护结构和遮阳设备等策略协同工作,以减少被动得热。屋顶和南墙的光电板每年可发电1100千瓦,发电潜力为19万千瓦。
水冷式螺杆冷冻机已被用于创建一个辐射冷却系统——通过嵌入天花板的PEX管,它们均匀地降低表面温度。此外,建筑空调占地面积的减少和节能灯具的使用进一步降低了建筑的能耗。该项目还旨在通过收集雨水和处理废水,在冷却塔中重复使用,冲洗和园艺来节约用水。该网站的景观已经完成了当地和土著植物,所有照明设备通过单独的太阳能电池板供电。随着不可逆转的气候变化对全球生活的威胁迫在眉睫,设计和实施更新、可持续的生活方式已成为当务之急。Atal Akshaya Urja Bhawan是一个典型的先例,它创造了一个体现能源意识的里程碑,并展示了一种将形象性与交互式公共界面相结合的新的城市发展模式。
印度Atal Akshaya Urja Bhavan办公楼外部实景图
印度Atal Akshaya Urja Bhavan办公楼外部实景图
印度Atal Akshaya Urja Bhavan办公楼外部实景图
印度Atal Akshaya Urja Bhavan办公楼外部实景图
印度Atal Akshaya Urja Bhavan办公楼外部实景图
印度Atal Akshaya Urja Bhavan办公楼外部实景图
印度Atal Akshaya Urja Bhavan办公楼外部实景图
印度Atal Akshaya Urja Bhavan办公楼外部实景图
印度Atal Akshaya Urja Bhavan办公楼外部实景图
印度Atal Akshaya Urja Bhavan办公楼外部实景图
印度Atal Akshaya Urja Bhavan办公楼外部实景图
印度Atal Akshaya Urja Bhavan办公楼外部实景图
印度Atal Akshaya Urja Bhavan办公楼外部实景图
印度Atal Akshaya Urja Bhavan办公楼外部实景图
印度Atal Akshaya Urja Bhavan办公楼外部实景图
印度Atal Akshaya Urja Bhavan办公楼外部实景图
印度Atal Akshaya Urja Bhavan办公楼内部实景图
印度Atal Akshaya Urja Bhavan办公楼平面图
印度Atal Akshaya Urja Bhavan办公楼平面图
印度Atal Akshaya Urja Bhavan办公楼平面图
印度Atal Akshaya Urja Bhavan办公楼平面图
印度Atal Akshaya Urja Bhavan办公楼平面图
印度Atal Akshaya Urja Bhavan办公楼平面图
印度Atal Akshaya Urja Bhavan办公楼剖面图
印度Atal Akshaya Urja Bhavan办公楼剖面图
印度Atal Akshaya Urja Bhavan办公楼剖面图
客服
消息
收藏
下载
最近





























