查看完整案例

收藏

下载
项目名称:济南国家重型汽车工程技术研究中心
位置:济南
设计公司:CCDI 21设计工作室
国家重型汽车工程技术研究中心,位于济南市高新区的中心地带,北临汉峪金谷,紧靠舜奥公园,坐拥便利的交通和良好的景观。项目用地面积22861平方米,总建筑面积为145516.21平方米,塔楼幕墙高度:96m,结构顶板高度89.85米。总部办公强调效率与体验相结合,在我们之前参与设计汉屿金谷的高楼林立的周边环境中,通过极简的悬浮体量与丰富的内部空间的强烈对比,形成一定的标识性,让人过目不忘。我们希望通过塑造有活力的、更高品质的人性化办公空间,激发重汽的创新之心,相信未来会有更多的创意在这里产生。项目基地呈东西向狭长“L”型,西低东高,项目基地呈东西向狭长“L”型,在功能布局上,将办公塔楼布置于西北角,突出主要形象,企业展厅沿东西向水平布置,拓宽展示面。建筑在外观上整体呈极简的几何形体关系,办公塔楼如同纯粹的白色立方悬浮于裙房之上,与一期建筑形成一种新旧对话,体现中国重汽高效的企业文化。
水平裙房首层为企业展厅,其上为会议中心及食堂,通过悬挑的体量将东侧地面空间释放给园区及城市,形成人性化的灰空间。建筑以绿建二星为标准,采用超白玻三银Low-E玻璃。外部极简的精准建造,以及隐藏式开启扇的可呼吸式幕墙,既保证了立面的干净完整,同时解决了办公空间自然排烟和自然通风的问题。塔楼与裙房采用两种尺度和方向的竖向三角杆件,创造一种独特的韵律。三角形的阳极氧化板装饰线条形成遮阳,环保节能。而且阳极氧化铝板的材料应用,强调建筑稳定、有力的气质,入口雨棚采用布纹不锈钢,强调金属质感,进一步提升整体的视觉效果。在泛光设计上,隐藏式灯槽使建筑立面更为纯粹,通过洗墙的泛光形式,见光不见灯,灯光投射到三角斜面上,营造一种高级内敛的灯光效果。简洁的外观内具有丰富的内核。建筑内部通过多层次的共享空间,营造效率与体验并重的氛围,激发员工的创造力。服务空间与被服务空间界面完整清晰。
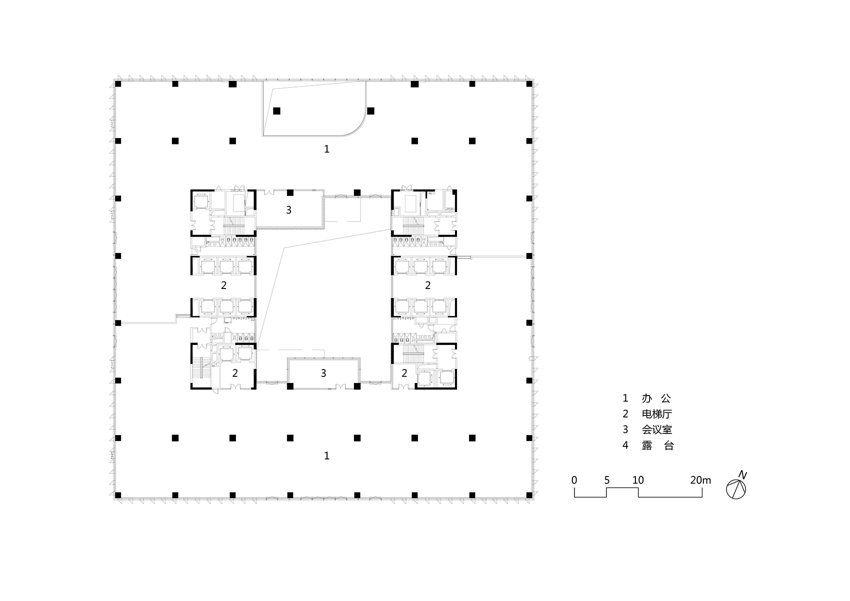
方形塔楼内创造一个六至十八层竖向通高的天井,在物理环境上,增加了采光,并强化自然通风,提高了舒适度,减少过渡季节的能耗。视觉上,贯穿的入口室内中庭与室外的内天井形成了戏剧化的框景效果。围绕着天井在东西两侧布置核心筒,核心筒电梯厅正对天井,打破一般办公楼封闭的电梯厅效果,提升员工出入电梯厅的舒适感;塔楼卫生间均为明卫,细条纹的U玻保证了私密性,更满足了采光的需要。梭形的细密金属百叶给中央庭院带来了细腻的光影变化,结合中庭的井格形天窗,经过过滤的阳光洒入中庭,将建筑变成了一个捕光的机器。内天井南北两侧如百宝阁一般错动的会议室体量,形成了丰富的具有体验感的庭院空间,错位的露台让办公人员能够就近到达邻近的花园平台接触自然绿化,呼吸新鲜空气、沐浴冬日暖阳。塔楼在面向主干道的北侧设置了九至十八层的通高边庭,象征企业总部与城市对话的窗口,弧形错位的边庭挑空空间,寓意着重型汽车中轴承齿轮的相互咬接互动关系;多种活化办公空间,进一步丰富内部办公的体验。 边庭立面采用拉索玻璃幕墙,超过一千平的光电玻璃,作为城市舞台给银灰色的纯净悬浮建筑体量带来了一抹未来的科技感。
济南国家重型汽车工程技术研究中心外部实景图
济南国家重型汽车工程技术研究中心外部实景图
济南国家重型汽车工程技术研究中心外部实景图
济南国家重型汽车工程技术研究中心外部实景图
济南国家重型汽车工程技术研究中心外部实景图
济南国家重型汽车工程技术研究中心外部实景图
济南国家重型汽车工程技术研究中心外部实景图
济南国家重型汽车工程技术研究中心外部实景图
济南国家重型汽车工程技术研究中心外部实景图
济南国家重型汽车工程技术研究中心外部实景图
济南国家重型汽车工程技术研究中心外部实景图
济南国家重型汽车工程技术研究中心外部实景图
济南国家重型汽车工程技术研究中心外部实景图
济南国家重型汽车工程技术研究中心外部实景图
济南国家重型汽车工程技术研究中心外部实景图
济南国家重型汽车工程技术研究中心外部实景图
济南国家重型汽车工程技术研究中心外部实景图
济南国家重型汽车工程技术研究中心外部实景图
济南国家重型汽车工程技术研究中心内部实景图
济南国家重型汽车工程技术研究中心内部实景图
济南国家重型汽车工程技术研究中心内部实景图
济南国家重型汽车工程技术研究中心内部实景图
济南国家重型汽车工程技术研究中心内部实景图
济南国家重型汽车工程技术研究中心内部实景图
济南国家重型汽车工程技术研究中心平面图
济南国家重型汽车工程技术研究中心平面图
济南国家重型汽车工程技术研究中心平面图
济南国家重型汽车工程技术研究中心平面图
济南国家重型汽车工程技术研究中心剖面图
济南国家重型汽车工程技术研究中心剖面图
客服
消息
收藏
下载
最近

































