查看完整案例

收藏

下载
项目名称:成都浣花67文化创意园
位置:成都
设计公司:門口建筑工作室
摄影师 :杨雨舟, 存在建筑
浣花67文化创意园西侧毗邻浣花溪公园,西北侧紧靠杜甫草堂,东侧距离四川博物院不远。当我们开始设计浣花67文化创意园时,我们感到非常兴奋,因为在这个显要的地方,我们不仅可以延续成都的城市空间,还可以在时间和历史上留下印记。作为城市更新项目,我们无法对规划模式做出重大改变。这座高档住宅楼建于21世纪初,布局平行,空间关系无趣,导致它几乎与城市隔绝。这是那个时期记忆的沉淀。作为位于杜甫草堂保护区的四层建筑,其规模并不小,在立面上使用传统的“符号”显然是不合适的。周围景色中的树木、水波、光影深深打动了我们,为了反映这些元素,我们使用了最简单的玻璃幕墙,在超白玻璃和白釉玻璃之间交替。在场地的西侧,面对着浣花溪公园,我们新增了一个双向敞廊。敞廊开放的状态既面向城市,也面向公园。敞廊将现有建筑物“缝合”在一起,是城市和校园之间的粘合剂。
通过敞廊连接的公园建筑物提供公共功能,如书店、茶馆、咖啡厅和餐厅,使浣花67创意园不仅成为一个封闭的办公空间,还是一个与城市融为一体的焕活社区,服务于城市的“公共空间”。由于原住宅的公共服务空间不足,我们在东侧添加了一个更独立的走廊系统,以服务办公园区。该走廊系统包括公共洗手间、会议室、安保室、快递柜等必要的功能,以确保浣花67创意园的内部功能得到完善。这个项目反映了我们在城市更新项目中考虑到的两个方面:一方面,我们希望改善内部功能;另一方面,我们希望以开放的态度面向城市,让项目自愿成为城市的一部分。当建设的潮流逐渐平息时,城市更新也应该成为城市自我提升的方式。具有包容性和模糊性的有机更新是城市的末来。
成都浣花67文化创意园外部实景图
成都浣花67文化创意园外部实景图
成都浣花67文化创意园外部实景图
成都浣花67文化创意园外部实景图
成都浣花67文化创意园外部实景图
成都浣花67文化创意园外部实景图
成都浣花67文化创意园外部实景图
成都浣花67文化创意园外部实景图
成都浣花67文化创意园外部实景图
成都浣花67文化创意园外部实景图
成都浣花67文化创意园外部实景图
成都浣花67文化创意园外部实景图
成都浣花67文化创意园内部实景图
成都浣花67文化创意园内部实景图
成都浣花67文化创意园内部实景图
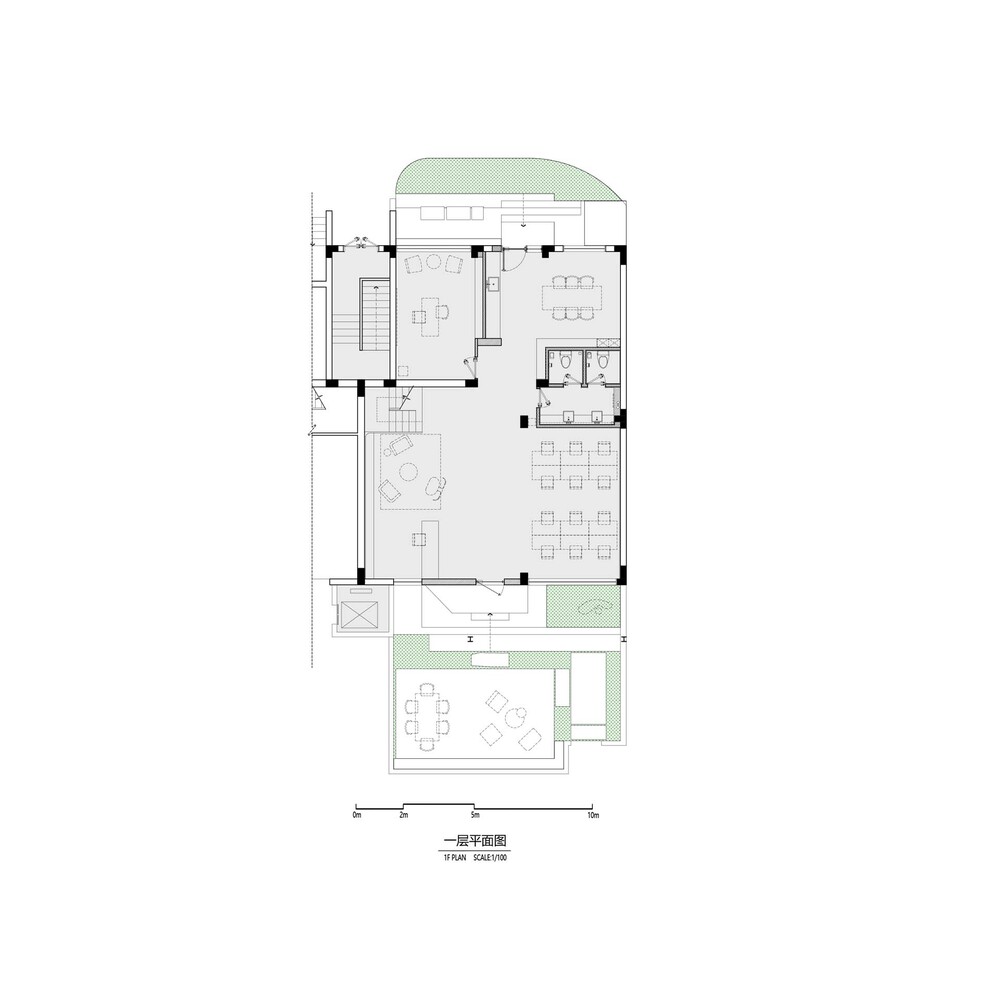
成都浣花67文化创意园平面图
成都浣花67文化创意园平面图
成都浣花67文化创意园平面图
成都浣花67文化创意园平面图
客服
消息
收藏
下载
最近






















