查看完整案例

收藏

下载
项目名称:印度Zydus总部
位置:印度
设计公司: 形态发生
技术和传统结合在一起,重新定义了Zydus公司园区的办公楼原型。Zydus总部位于郊区一条繁忙的高速公路旁,被设想为一个富有弹性的21世纪工作场所,借鉴了古吉拉特邦充满活力的建筑和文化遗产艾哈迈达巴德对该地区极其炎热干燥的气候反应灵敏。一个坚固的尖顶轮廓的巨石,建筑的堡垒般的形式参考了中世纪的城墙城市的纪念碑艾哈迈达巴德:Bhadra Fort、Pavagadh Fort、Adalaj的阶梯式庭院,以及传统的Kutch“Bhunga”建筑。Pavagadh堡垒为形成西部立面的三面城墙提供了关键的背景线索,这三面城墙有效地屏蔽了室内的夏季烈日,并提供了抵御极端温度的热缓冲。这些双曲Corten钢堡垒(14,200个数据点)以复杂的几何形状连接在一起艾哈迈达巴德“坎萨拉”的传统金属工艺,通过计算设计进行参数化翻译。嵌在墙内的三角形玻璃管的灵感来自“Bhungas”的镜面作品,这是一种因其建筑弹性和装饰而备受推崇的古奇民居。
这些管子由二向色薄膜制成,捕捉太阳在一天中的运动,并赋予立面永恒的万花筒般的活力。从东到西,墙屏蔽并创造了一个绿洲,为南北向的办公楼,大约是他们的边缘。塔楼间隔开,以遮挡它们之间的台阶庭院,从而产生一个合适的小气候,鼓励户外娱乐和参与。无柱工作大厅完全无眩光,100%自然光,无百叶窗,因此白天无需人工照明。被动设计和气候响应策略的使用大大降低了能源性能指数(EPI ),仅为56千瓦时/平方米/年,该建筑的能耗比最佳绿色建筑标准规定的能耗低50%。除了起到环境屏障的作用,建筑的墙壁还容纳了2000多名劳动力的整个社会孵化空间。沿着场地长度延伸的墙之间的流通区域由休息区、凹室座位、小酒馆、员工参与区、游客休息室和用于头脑风暴会议和非正式会议的隔间组成。
这个脊柱连接了脊椎结构中所有正式的工作区域。在今天的背景下,这个区域同时也是分散劳动力的社交距离空间。建筑和地形的平面无缝汇聚和发散,创造了独特的土地调制。通过融入自然界中的五种元素,这在细节和材料上更进一步。主要的建筑挑战是将手工建造的工匠的古老知识与墙壁几何形状所需的精度相结合。此外,表面处理结合了当地的工艺和施工方法,如现场水磨石地板、模铸水泥着色瓷砖、手工翻转金属家具和装置。该项目体现了工作场所的公平和透明的意识形态,作为其建筑词汇的一个组成部分。该建筑将古吉拉特邦丰富的手工艺传统重新融入当代习语,通过关注简单被动的设计和高效的建筑原则,渴望成为全球和本地相关商业建筑的典范。
印度Zydus总部外部实景图
印度Zydus总部内部实景图
印度Zydus总部外部实景图
印度Zydus总部外部实景图
印度Zydus总部外部实景图
印度Zydus总部外部实景图
印度Zydus总部外部实景图
印度Zydus总部内部实景图
印度Zydus总部内部实景图
印度Zydus总部内部实景图
印度Zydus总部内部实景图
印度Zydus总部内部实景图
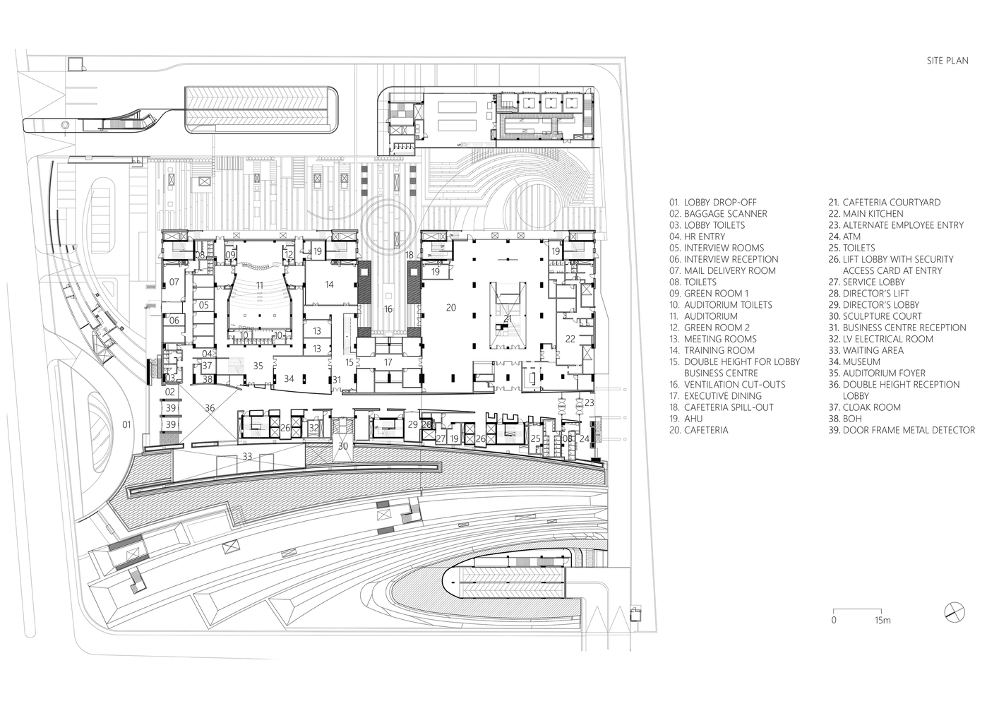
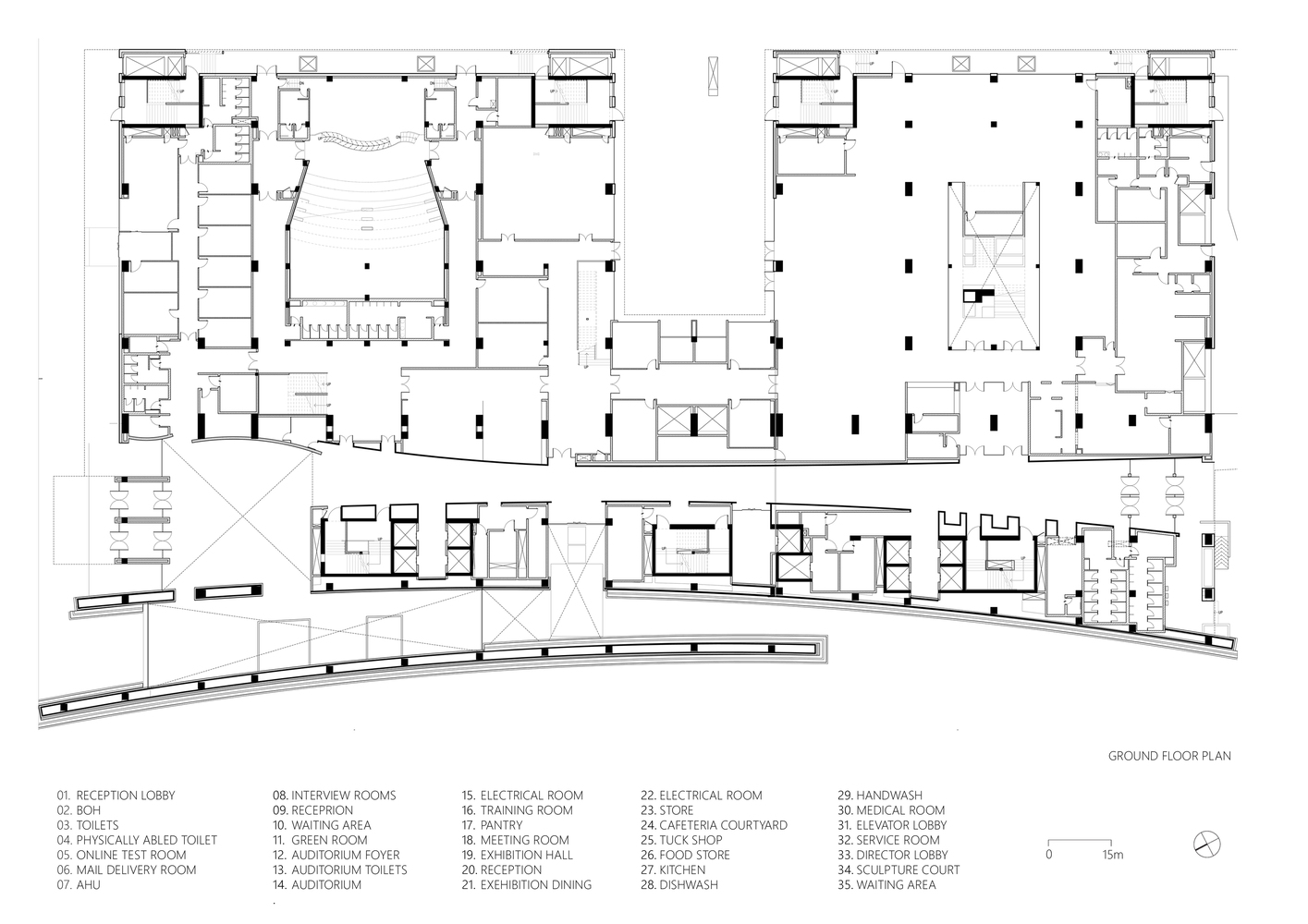
印度Zydus总部平面图
印度Zydus总部平面图
印度Zydus总部平面图
印度Zydus总部平面图
印度Zydus总部剖面图
印度Zydus总部剖面图
客服
消息
收藏
下载
最近





















