查看完整案例

收藏

下载
项目名称:西班牙Natura Bissé新总部大楼位置:西班牙
设计公司:TDB Arquitectura
Natura Bissé的新总部位于巴塞罗那萨尔达尼奥拉市的Alba公园。该建筑的目的是为化妆品制造、实验室、物流、活动区和办公室提供空间。它将成为其所有子公司和国际分销商的参考中心。总面积约为15,373平方米,加上5,394平方米的室外空间,共分为五层:停车场(地下一层)、物流/自动化区域(首层下半部分)、生产/实验室(首层上半部分)和最上面两层分别用于管理、行政、研究、设计和员工的配套设施。这些层级错落有致,适应地形的高低差异,并定义了一个与景观形成对比的轮廓和与企业形象相一致的形象。该建筑被构想为新一代的生产设施,其中办公、创新和实验室空间的规划都大过工业生产本身所占面积。这种方法需要特定的设施来支持生产过程的持续革新与再评估。在这种背景下,该项目依赖于工业空间的人性化设计,并融入了其他重要方面,如自然采光、天窗过滤器、大露台与室外景观的视觉联系、室内空间的植被以及交叉通风。在这些条件下,设计最大限度地促进人员之间的关系和沟通。当建筑业主考察工业活动与用户舒适度的兼容性时,将该建筑定义为“住宅式工厂”。
西班牙Natura Bissé新总部大楼外部实景图
西班牙Natura Bissé新总部大楼外部实景图
西班牙Natura Bissé新总部大楼外部实景图
西班牙Natura Bissé新总部大楼外部实景图
西班牙Natura Bissé新总部大楼外部实景图
西班牙Natura Bissé新总部大楼外部实景图
西班牙Natura Bissé新总部大楼外部实景图
西班牙Natura Bissé新总部大楼外部实景图
西班牙Natura Bissé新总部大楼外部实景图
西班牙Natura Bissé新总部大楼内部实景图
西班牙Natura Bissé新总部大楼内部实景图
西班牙Natura Bissé新总部大楼内部实景图
西班牙Natura Bissé新总部大楼内部实景图
西班牙Natura Bissé新总部大楼内部实景图
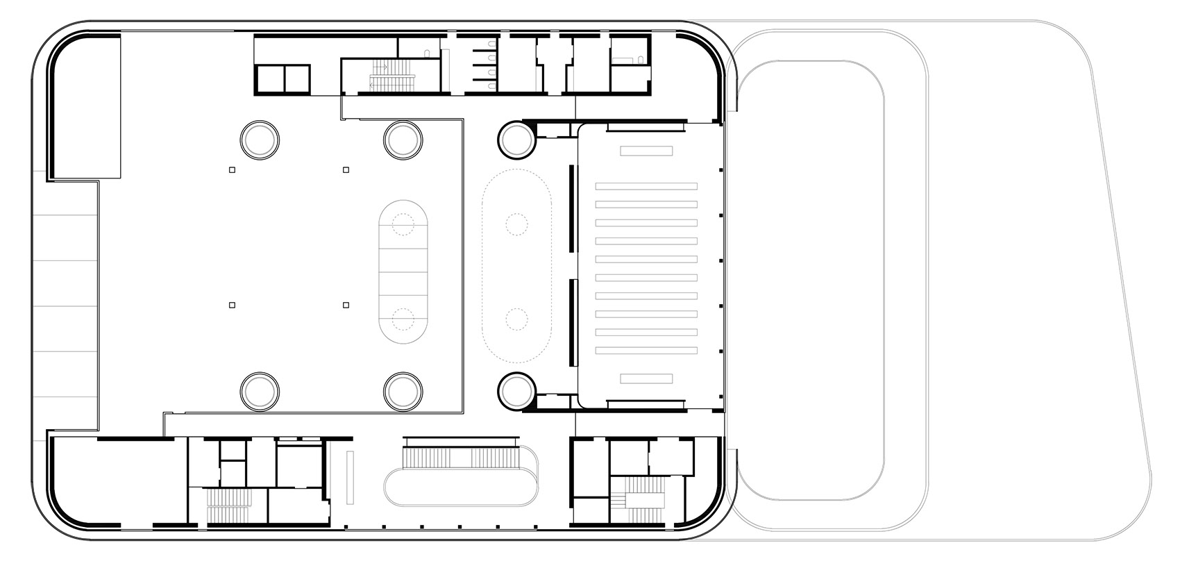
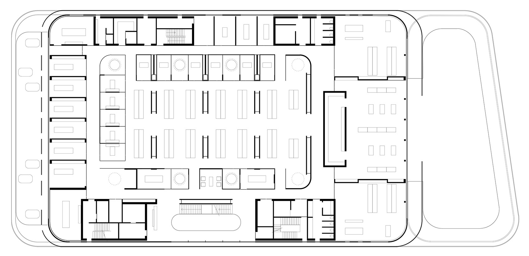
西班牙Natura Bissé新总部大楼平面图
西班牙Natura Bissé新总部大楼平面图
西班牙Natura Bissé新总部大楼平面图
西班牙Natura Bissé新总部大楼平面图
西班牙Natura Bissé新总部大楼平面图
客服
消息
收藏
下载
最近






















