查看完整案例

收藏

下载
项目名称:德国TINA–灵活的办公和住宅建筑
位置:德国
设计公司:索齐亚工作室
由于大弗赖堡地区的低土地储备和相关的土地价格急剧上涨,我们的客户获得了一处商业地产,比理想的多家庭地产便宜了近85%。作为对这种矛盾心理的回应(这在全国并不罕见),我们产生了这样一个想法,即设计一座办公楼,如果未来土地使用计划需要调整,只需在扩建层面进行一些干预,就可以将它改造成数量可变的公寓。一个独立的,三层的单人纸牌游戏是基于该物业的几何形状和未来,新商业区的选择性周边发展而开发的。从长远来看,为了实现灵活的办公室和公寓大小,甚至超出实际楼层,因此也是为了将目前规划的两个使用单元分离为三个,在东北面向通道的外部开发被整合。突出的半圆形楼梯平台打破了体量的清晰几何结构,标志着各个单元的入口,并作为周围城市空间的沟通者。无障碍通道也是通过北立面的直通电梯从外部进入。通过一个5 x 5米的承重网格,该建筑从北部的封闭墙板,通过中心的独立墙板,转变为南部的开放支撑结构,并有一个毗邻的宽敞的室外区域。尽管地震区的结构要求很高,但这种结构转变使得创建资源高效、持久的支撑结构成为可能,同时实现了使用和分区的最大灵活性。
与功能概念一致的是,厕所、储藏室和技术等服务用房都位于封闭的北墙上。所有的工作区域都围绕着厨房的中心,作为一个交流的场所。南部的室外区域用于放松、非正式交流和临时工作场所。改造的概念性指导原则也体现在立面设计中。北立面看起来完全不透明,有一个后部通风的梯形金属板立面,西立面和东立面通过2.5 x 3.0米的大窗户向周围开放。朝南的阳台和露台横跨建筑的整个宽度,形成了结论和外部空间的第二个物理接口。建筑区通过连续的水平立面带在视觉上连接起来,同时也容纳了纺织品的防晒功能。受商业环境的启发,建筑的所有组件都按照工业质量进行规划,内部设计成精致的外壳。另一方面,立面中有很高比例的玻璃,这对于商业区来说是不典型的。由内部使用策划,这应该创造交流和振兴周围的商业区。该建筑是一个功能可持续和面向未来的建筑,因为地震区需要大量的建筑和灵活和无障碍的可用平面图。特别注意建筑的拆分潜力,即使将来要求发生变化,立面也可以很容易地升级到当前状态。
德国TINA–灵活的办公和住宅建筑外部实景图
德国TINA–灵活的办公和住宅建筑外部实景图
德国TINA–灵活的办公和住宅建筑外部实景图
德国TINA–灵活的办公和住宅建筑外部实景图
德国TINA–灵活的办公和住宅建筑外部实景图
德国TINA–灵活的办公和住宅建筑内部实景图
德国TINA–灵活的办公和住宅建筑内部实景图
德国TINA–灵活的办公和住宅建筑内部实景图
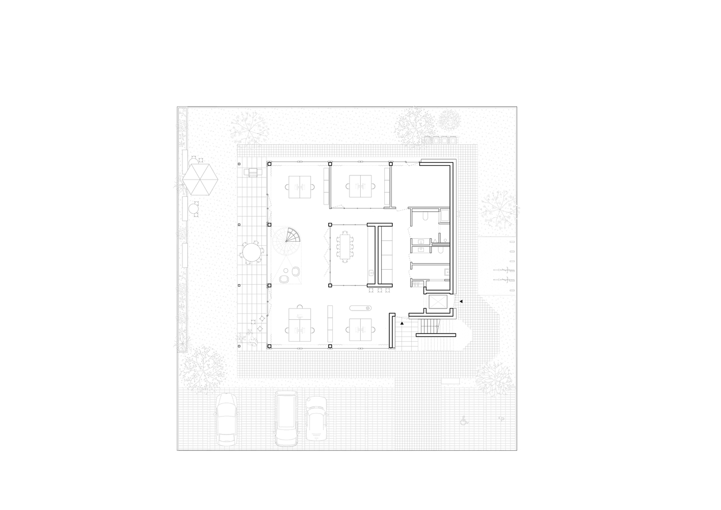
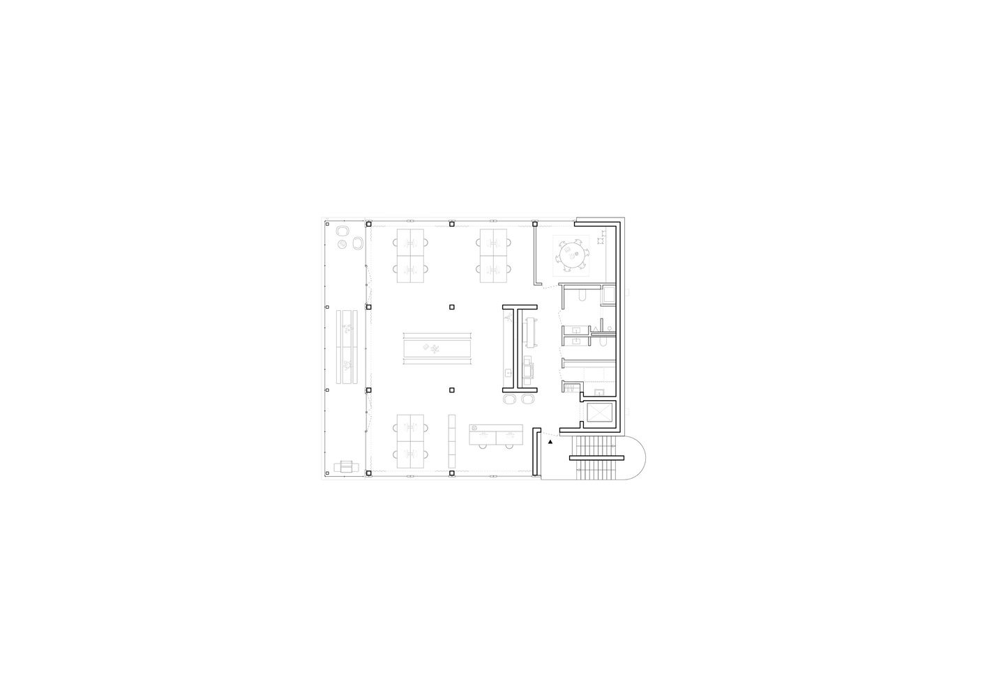
德国TINA–灵活的办公和住宅建筑平面图
德国TINA–灵活的办公和住宅建筑平面图
德国TINA–灵活的办公和住宅建筑平面图
德国TINA–灵活的办公和住宅建筑平面图
德国TINA–灵活的办公和住宅建筑剖面图
德国TINA–灵活的办公和住宅建筑剖面图
客服
消息
收藏
下载
最近

















