查看完整案例

收藏

下载
项目名称:英国昆虫旅馆
位置:英国
建筑师: Hyperspace
摄影师 :Simon Kennedy
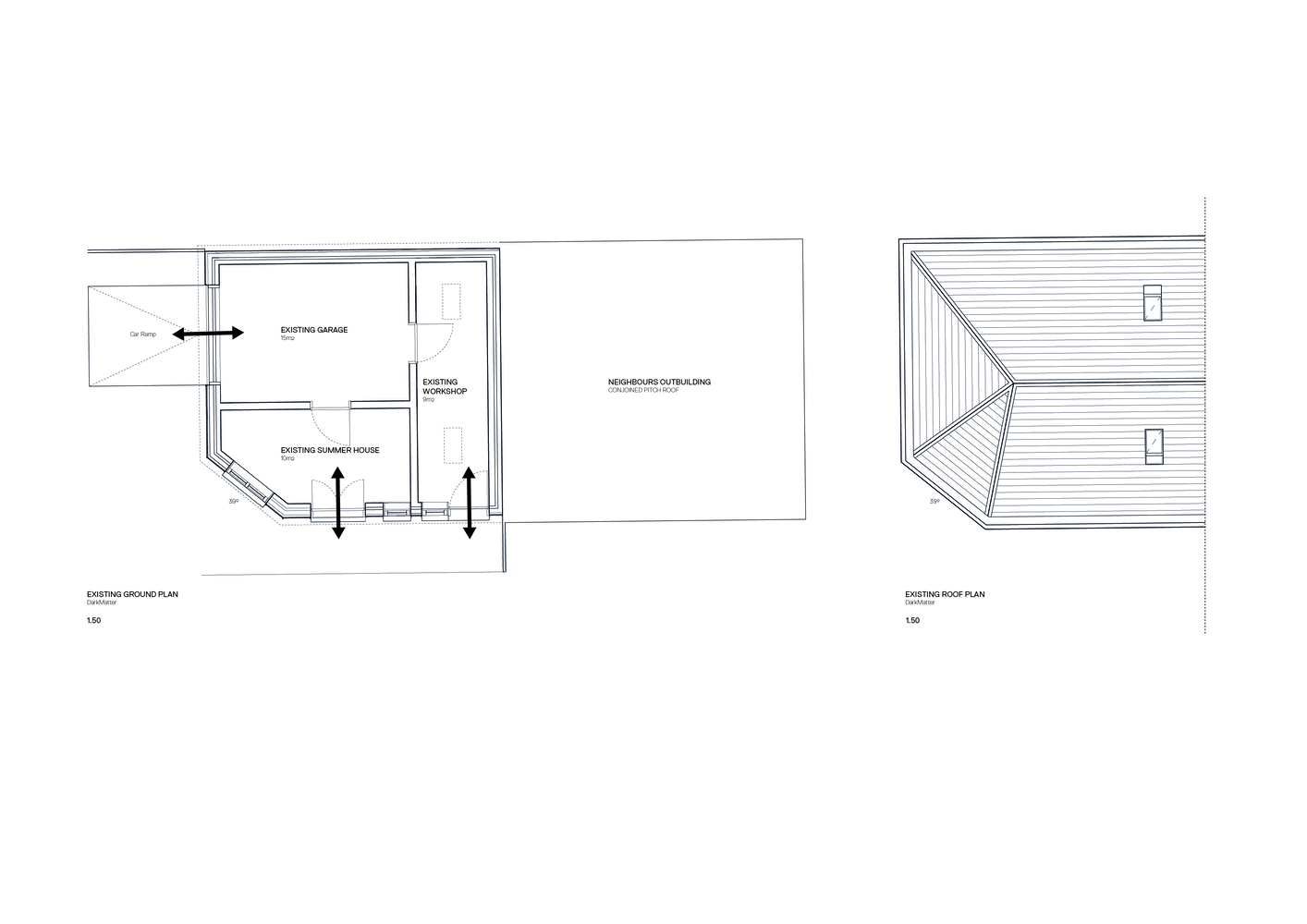
Hyper_工作室将一个旧的郊区车库改造成了一个与自然和谐相处的工作室空间。它位于英国赫特福德郡,这可不是一个普通的花园式办公室,而是一个宁静而宽敞的环境,让人得以一种专注而灵活的方式在精致的建筑形态中工作。在这个 35 平方米的工作室介绍中包含了提供一个可用来虚拟办公的设计需求;让用户可以在有纹理的背景中在和各种地方坐着工作。工作室有一个简单的长方形平面,其中一个角被切开形成入口,一个超宽的旋转门创造出门槛的感觉——跨入一个工作的地方。这里有窗台可以工作或沉思,自然光倾泻而入并创造出与大自然的联系。工作室的外墙被巧妙地命名为 “黑暗物质”,它有 850 个由烧焦的木材制成的鳞片,这是一种被称为烧杉板的日本工艺,根据处理木材的热度而不同,它为每片木材提供了各种微妙的焦感。倒角鳞片之间的缝隙是为了促进花园的生物多样性,作为一个巨大的 "昆虫旅馆",供昆虫冬眠之用。
温暖的浅色室内装饰与黑色的外墙形成了鲜明的对比,白色的涂油木椽和苍白的杨木胶合板衬托着墙壁。 为了创造将自然带入室内的感觉,两个 "光烟囱 "悬挂在屋顶上,其上的穿孔图案模仿了斑驳的阳光柔和地穿过树冠的感觉。创造一个可持续发展的设计对于客户和建筑师来说都很重要,他们的任务是创造一个碳足迹最小、保暖性能最好的家庭工作室。令人印象深刻的是,最初结构中使用的 95% 的材料在最终设计中被重新利用,包括钢门楣、块状工程和屋顶木材,限制了最终送往垃圾场的废弃材料数量。为了减少隐含碳排放量,大部分材料都是从 10 英里半径内采购的。钢材和混凝土的使用量保持在最低水平,只有一块钢制翼板和不到 1 米的混凝土。因为在拆除原木制屋顶结构时格外的注意,才得以使 100% 的材料被重新使用。在新花园工作室和另一个 Hyper_项目中都是如此,忠实于工作室成立时立下的循环经济原则。
英国昆虫旅馆外部实景图
英国昆虫旅馆外部实景图
英国昆虫旅馆外部实景图
英国昆虫旅馆内部实景图
英国昆虫旅馆内部实景图
英国昆虫旅馆内部实景图
英国昆虫旅馆内部实景图
英国昆虫旅馆内部实景图
英国昆虫旅馆内部实景图
英国昆虫旅馆内部实景图
英国昆虫旅馆平面图
英国昆虫旅馆平面图
英国昆虫旅馆立面图
英国昆虫旅馆立面图
客服
消息
收藏
下载
最近

















