查看完整案例

收藏

下载
项目名称:武汉市蔡甸城市综合服务中心一期
位置:武汉
设计公司:中信设计
在当今的现代语境中,综合服务中心承担着重要的城市客厅作用,不同的服务功能在这里形成聚合效应,激发城市活力。在蔡甸城市发展日新月异的背景下,迫切需要一个高质量的公共空间,满足市民的聚集、学习、娱乐、运动、办事的场所环境。整体建筑设计通过对周边城市肌理的解读,运用理性的柱网和方正的轮廓去构建高效通用的建筑组群。体块的切分咬合更好的实现了建筑与城市的相互渗透和空间共享,体现了对传统合院的当代诠释,增加了体块间的互动,并呈现张力,符合现代“山水合院”的理念。建筑布局顺应蔡甸东西向城市发展主轴,形成丰富的城市界面与开敞的市民广场。功能版块的打造各具特色,以营造引人入胜的到访体验,同时又兼具连贯统一的形式和结构逻辑。通过二层平台及连廊将四栋独立的建筑单体有机串联成组,模糊建筑单体之间的界面,底层通透开放,上层私密独立。
底层架空打通多方向的人行通路,有效激活配套服务业态,同时将周边优质的景观资源与建筑渗透融合。平台屋面作为二层屋顶花园,供办公人员活动休憩。项目在北侧入口及庭院等处设置下沉广场,挖掘地下空间价值,同时塑造层次多变的空间体验。东西向的庭院广场和建筑间的联系走廊提供了贯穿场地的步行路径,吸引市民参与公共活动,呈现亲和开放、放松舒适的人性关怀,将庭院、廊道与建筑内部空间融为一体,形成内外相融和谐有序的现代服务空间。设计以地域文化和人文情怀为脉络,寻找建筑组团功能属性与开放共享自然包容的内核关系,以幕墙、铝板及石材做为立面表皮设计元素,根据各馆的不同功能属性,通过虚实、疏密的变化和统一,打造顺应每一个空间采光、通风及空间需求的立面表皮。
与此同时,设计团队也尝试赋予冰冷的现代材料以人文的内涵:在外,通过铝板穿孔率的变化,呈现朦胧山水画的意境;于内,用夹绢玻璃勾勒出一幅徐徐展开的山水画卷。内外交融,共同编织出一组“高度融合,和而不同”,富有荆楚底蕴的建筑聚落。通过5G全光网实现服务空间的高效和兼容,智能化信息技术的广泛应用,使综合服务中心无论是在运维管理,节能低碳,智慧共享方面,还是在“无线泛在”的个性化互动方面都具有特色;将智能化与建筑内部空间相融合,大数据可视化屏安置在各个重要的空间节点,市民行走其间,视线所及即可获取所需政务信息,实践了现代智慧政务服务的理念。为了优化热性能,中庭设计采用了格构屋顶,在保证室内采光的同时,兼具遮阳,避免直射阳光照射办公空间。辅以穿孔铝板,以进一步提供外部遮阳。根据项目各室内空间不同的功能需求、太阳光辐射强度以及朝向,板面的穿孔大小不一,从而调节不同程度的进光量。
武汉市蔡甸城市综合服务中心一期外部实景图
武汉市蔡甸城市综合服务中心一期外部实景图
武汉市蔡甸城市综合服务中心一期外部实景图
武汉市蔡甸城市综合服务中心一期外部实景图
武汉市蔡甸城市综合服务中心一期外部实景图
武汉市蔡甸城市综合服务中心一期外部实景图
武汉市蔡甸城市综合服务中心一期外部实景图
武汉市蔡甸城市综合服务中心一期外部实景图
武汉市蔡甸城市综合服务中心一期外部实景图
武汉市蔡甸城市综合服务中心一期外部实景图
武汉市蔡甸城市综合服务中心一期外部实景图
武汉市蔡甸城市综合服务中心一期外部实景图
武汉市蔡甸城市综合服务中心一期外部实景图
武汉市蔡甸城市综合服务中心一期内部实景图
武汉市蔡甸城市综合服务中心一期内部实景图
武汉市蔡甸城市综合服务中心一期内部实景图
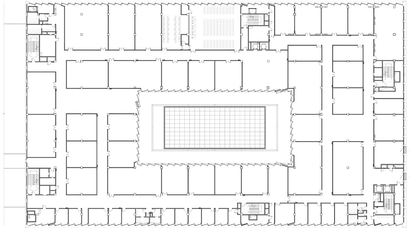
武汉市蔡甸城市综合服务中心一期平面图
武汉市蔡甸城市综合服务中心一期平面图
武汉市蔡甸城市综合服务中心一期平面图
武汉市蔡甸城市综合服务中心一期剖面图
武汉市蔡甸城市综合服务中心一期立面图
客服
消息
收藏
下载
最近
























