查看完整案例

收藏

下载
项目名称:法国瓜德罗普岛Pitre司法宫
位置:法国
设计公司:Ignacio Prego建筑公司
传统上,大而厚,似乎是为了表达力量和权力皮特尔角唤起开放和透明。通过这种方式,该建筑以明显的温暖、其形式的直接可读性以及从司法建筑的专制代码中解放出来,挑战了法院冰冷的流行形象。法院建筑与城市结构和城市的主要路线保持一致,并适应了它与其他建筑的关系皮特尔角。项目中使用的颜色来自Pointe-à- Pitre的彩色环境,特别是面对它的政府建筑,而铝防晒板反射的不同光线来自加勒比海天空的阳光。建筑唤起的轻盈感也寻求与城市中许多其他建筑的接近,精致的阳台、柱廊和遮阳篷营造出非凡的身份感。向城市开放,展示其功能的透明性,体现在可以从街上看到的三个法庭,法院向人们展示自己,而不是完全裸露。司法机构的谦逊,加上其法定的约束,迫使它尊重更私密的环境,并把好奇心放在一边。除了体积和线条之外,建筑的力量来自于材料的选择,通过材料,建筑的某种理念被有机地表达出来。这些材料,由于它们对凝视和身体感觉的影响,表达了建立一种既不遥远也不冷漠的正义感的意愿。
该建筑由几何形状严谨的钢筋混凝土框架构成,确保屋顶与基础设施的完美连续性,以确保地震应力转移到地基。该计划是由一个脊柱的房屋垂直分布(致力于公众,法官,被拘留者和囚犯)和流体通道。这个框架由一个金属框架完成,覆盖了大的公共空间:法庭和公共大厅。确保围护结构承重的立面有助于支撑。由钢筋混凝土和铝窗框交替组成的隧道,满足了建筑的基本目标:坚固、防水和模块化,以确保空间的可逆性。一个大的气候遮阳网完善了这个系统,为建筑的所有表面(玻璃、墙壁和屋顶)提供了防晒保护,同时提供了对光线强度的被动控制。这使得大幅降低能耗成为可能。它确保了室内空间相对于周围街道繁忙的亲密感,因为建筑不能从任何挫折中受益。最后,它保护玻璃表面免受猛烈飓风的冲击。为这款遮阳网选择阳极氧化彩色表面的铝既是一种技术,也是一种美学。在这里,由于强烈的紫外线和含盐的空气,石膏、覆盖层或车身的所有彩色颜料都会迅速褪色。选择阳极化处理的铝首先是因为其不可改变的化学性质,以及预制模块化实施的必要精度。
法国瓜德罗普岛Pitre司法宫外部实景图
法国瓜德罗普岛Pitre司法宫外部实景图
法国瓜德罗普岛Pitre司法宫外部实景图
法国瓜德罗普岛Pitre司法宫外部实景图
法国瓜德罗普岛Pitre司法宫外部实景图
法国瓜德罗普岛Pitre司法宫内部实景图
法国瓜德罗普岛Pitre司法宫内部实景图
法国瓜德罗普岛Pitre司法宫内部实景图
法国瓜德罗普岛Pitre司法宫平面图
法国瓜德罗普岛Pitre司法宫平面图
法国瓜德罗普岛Pitre司法宫平面图
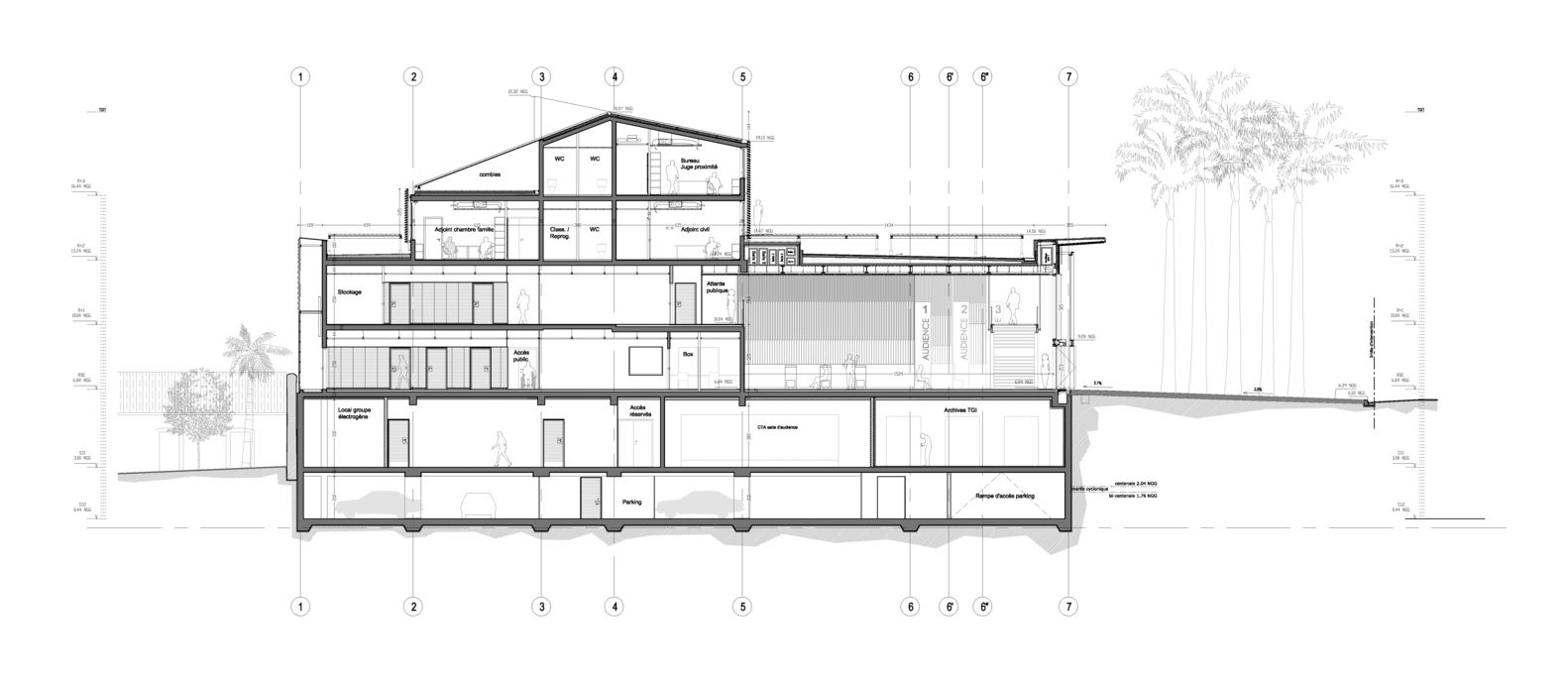
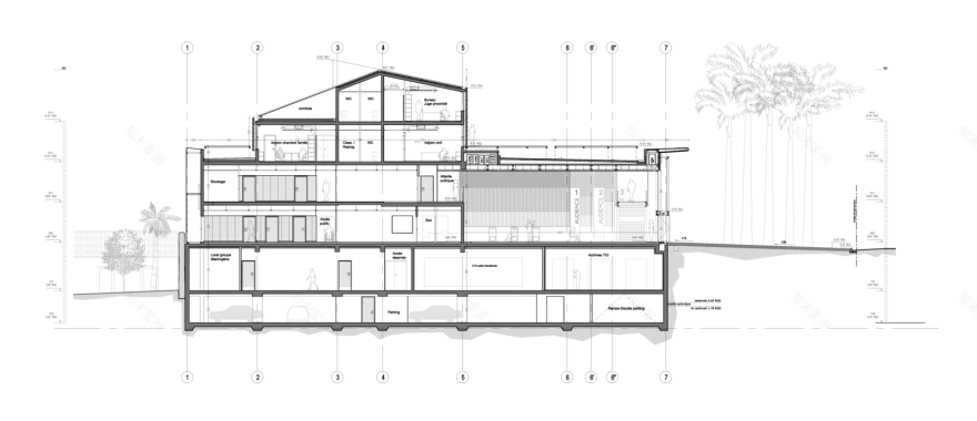
法国瓜德罗普岛Pitre司法宫剖面图
法国瓜德罗普岛Pitre司法宫剖面图
法国瓜德罗普岛Pitre司法宫立面图
法国瓜德罗普岛Pitre司法宫立面图
法国瓜德罗普岛Pitre司法宫立面图
客服
消息
收藏
下载
最近



















