查看完整案例

收藏

下载
项目名称:越南城市农业办公楼
位置:越南
设计公司:VTN建筑师事务所
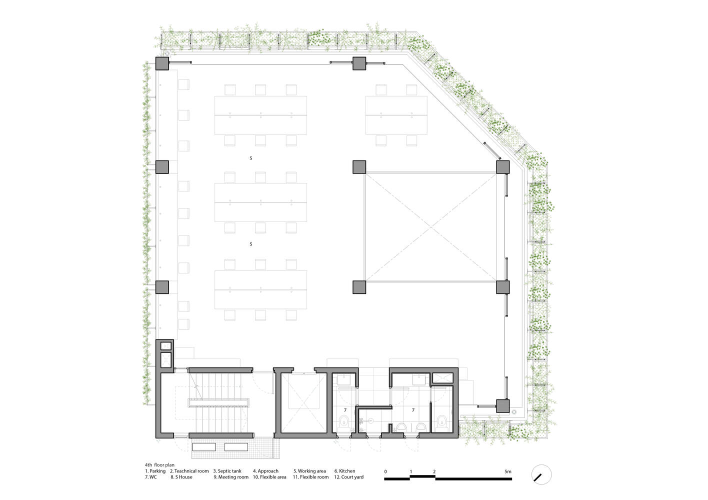
在快速城市化的背景下,越南的城市已经远远偏离了它们最初的杂乱无章的热带森林。绿色的缺乏导致了各种各样的社会问题,例如由于摩托车过多造成的空气污染、空气污染、洪水和热岛效应。在这种情况下,城市地区的新一代人正在失去与自然的联系。此外,随着中国转向以制造业为基础的经济,它正面临着一些变化,这对环境造成了损害。干旱、洪水和盐碱化的加剧危及了食物供应。“都市农办”,就是改变这种状况的一种努力。该项目的目的是将绿色空间还给城市,并促进安全的食品生产。位于一个新开发的区域胡志明市办公室项目展示了垂直都市农业的可能性。它的正面由悬挂的种植箱和各种当地植物组成,让它们获得充足的阳光。这种绿色方法将以最低的能耗提供安全的食物和舒适的环境,为城市的可持续发展做出贡献。
环境策略——“垂直农场”为整个建筑创造了一个舒适的小气候。结合玻璃窗,植被过滤阳光直射,净化空气。它由储存的雨水灌溉,同时蒸发冷却空气。相反,北墙相对坚固,便于将来扩建,有小开口以加强横向通风。它由双层砖墙制成,内部有空气层,隔热性能更好。所有这些都有助于减少空调的使用。耕作系统——“垂直农场”是为植被设计的,建造方法简单——它由混凝土结构、钢支撑和悬挂在那里的模块化种植箱组成。种植箱是可更换的,因此可以根据植物的高度和生长状况灵活安排,提供充足的阳光。加上屋顶花园和地面,该系统为场地面积提供了高达190%的绿化率,相当于1.1吨的收成。选择各种当地可食用的植物,如蔬菜、草药和果树,以促进该地区的生物多样性。它们用有机处理方法来维持。
越南城市农业办公楼外部实景图
越南城市农业办公楼内部实景图
越南城市农业办公楼内部实景图
越南城市农业办公楼内部实景图
越南城市农业办公楼内部实景图
越南城市农业办公楼内部实景图
越南城市农业办公楼内部实景图
越南城市农业办公楼内部实景图
越南城市农业办公楼内部实景图
越南城市农业办公楼内部实景图
越南城市农业办公楼内部实景图
越南城市农业办公楼内部实景图
越南城市农业办公楼平面图
越南城市农业办公楼平面图
越南城市农业办公楼平面图
越南城市农业办公楼平面图
越南城市农业办公楼平面图
越南城市农业办公楼平面图
越南城市农业办公楼平面图
越南城市农业办公楼平面图
越南城市农业办公楼平面图
客服
消息
收藏
下载
最近























