查看完整案例

收藏

下载
项目名称:意大利化学安全办公楼
位置:意大利
照片:阿尔多·阿莫里蒂
这个项目是客户和Archisbang工作室之间富有成果的合作的第二集,它涉及一个未完成的家庭别墅的装修和转换成办公空间,通过破产拍卖在锁定阶段获得。该建筑位于夸柳佐(TO),就在Chemsafe总部附近,该总部已经是Archisbang在2015年干预的对象。该项目重新诠释了未完工建筑的概念,该建筑在其中漂浮了多年,作为翻新提案的解释关键:原材料和裸露的饰面遇到了彩色和讽刺的元素,透明物和光线片,胶合板桦木家具和部分合成绿色定义了一个智能和友好的工作环境。在外面,体量被包裹在金属网里,封闭了突出的屋顶,而墙壁则覆盖着暴露在外的木质纤维和混凝土隔热镶板。包围轻型木门窗的镀锌板内饰的设计,在精确的细节和原材料之间创造了想要的对比。门廊下的新延伸体也是一个镀锌金属板的反射箱,有助于重新设计建筑的外观,展示新的功能。粉刷成白色的钻孔砌块中的隔墙被嫁接到现有的混凝土框架结构上,故意显得清晰可辨。
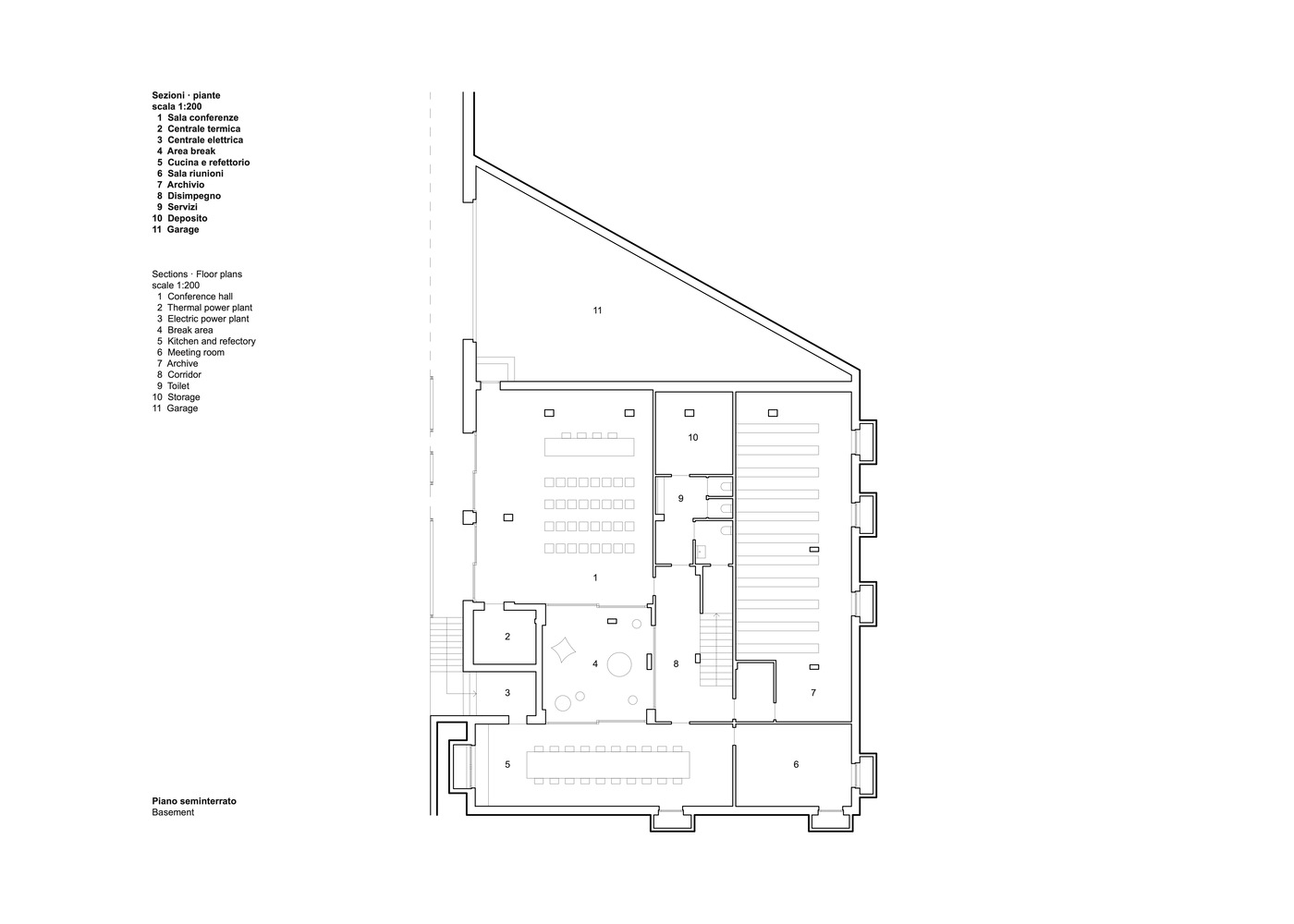
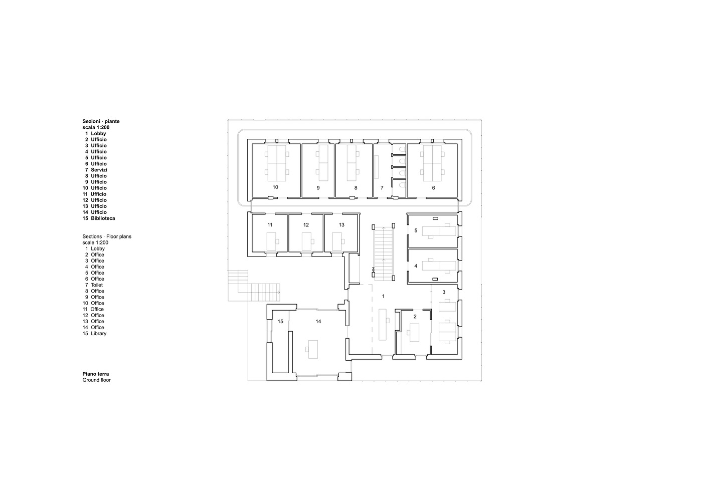
部分墙壁和假天花板用矿化木纤维板和水泥处理,这有助于房间的声学舒适性。机械通风的输送和吸入管道,以及带有直立通道的开关,都是一些可见的技术细节,这些细节反映了这个地方的工业环境,软化了房屋风格,有利于房屋的当前使用。在一楼,接待处和办公室通过一个中央楼梯与其他两层相连,楼梯上有一个斜坡:这是一个已经存在的元素,后来用黄色树脂完成。在连接地下室的空间部分,那里有档案馆、厨房角落、休闲和休息空间以及会议室;弯曲的杏仁金属板制成的新楼梯由链条支撑,完成了服务于阁楼和夹层的坡道,这里是非正式空间和行政办公室,开放或私人,是公司可用空间的顶部。通过铺设混凝土的连续性、覆盖材料(如网和看似自然的隔热材料)之间的对话,以及内部元素的外部门窗的使用,与外部环境(一个宁静宜人的丘陵环境)的联系得到了加强。50米长的田径跑道从里到外环绕着房子,体现了一系列办公室的分布走廊。在地下室,会议室由金属屏幕和网格保护,这些屏幕和网格标记了进出的方式,并支持与上层人行道的高度差。
意大利化学安全办公楼外部实景图
意大利化学安全办公楼外部实景图
意大利化学安全办公楼外部实景图
意大利化学安全办公楼外部实景图
意大利化学安全办公楼外部实景图
意大利化学安全办公楼外部实景图
意大利化学安全办公楼内部实景图
意大利化学安全办公楼内部实景图
意大利化学安全办公楼内部实景图
意大利化学安全办公楼内部实景图
意大利化学安全办公楼内部实景图
意大利化学安全办公楼内部实景图
意大利化学安全办公楼平面图
意大利化学安全办公楼平面图
意大利化学安全办公楼平面图
意大利化学安全办公楼平面图
意大利化学安全办公楼立面图
意大利化学安全办公楼立面图
意大利化学安全办公楼立面图
意大利化学安全办公楼立面图
客服
消息
收藏
下载
最近























