查看完整案例

收藏

下载
项目名称:莱斯特太空公园中心
位置:外国
建筑师: 谢泼德·爱泼斯坦·亨特
照片:保罗·科兹洛夫斯基,本·克拉克森|鲍默+柯克兰,马丁·汉密尔顿·奈特
太空公园莱斯特设计为一个坚固、可持续、实用的设施,可以在较长的生命周期内管理变化和适应,以适应用户需求的变化,但也旨在成为一个美丽、有吸引力的地方,同样欢迎研究专家和学生,并通过使用功能形式和持久、可回收的材料来传达“关于空间的一些东西”。建筑被安排成四层和五层的亭子,围绕中心中庭提供教学、实验室、办公室和协作空间,鼓励学科之间的互动以及与当地社区和学校的联系;一个两层楼高的技术侧楼(能够向上延伸),提供专业实验室、车间和洁净室,提供METEOR(制造、工程、技术和地球观测研究)项目。这些建筑在平面图上像一条蛇一样拥抱着弯曲的东部边界,靠近绿地和成熟的树冠,距离西部相邻的低层住宅最远,后者的规模不同。该项目是一个优秀的设计和公有棕色土地的富有想象力的再生利用的例子,它促进了与邻近发展相关的经济增长。它创造了太空公园莱斯特作为一个独立的研究机构,与附近的国家航天中心协同工作,并与联合王国国家航天战略的四个目标保持一致:促进联合王国航天部门的发展;与合作伙伴和盟友开展国际合作;将英国发展成为一个科技超级大国,发展弹性空间能力和服务。
太空公园莱斯特已经将一个位于死胡同尽头的洪水风险区的长期废弃的污染棕地变成了社会、经济和环境改善的发电机。该场地以前用作垃圾填埋场,现已封顶,并提高到1:1000年一遇洪水水位以上400毫米,1:100年一遇洪水水位以上700毫米(+50%气候变化容差)。二十年前废弃后,这里杂草丛生,被獾所采用,因此最初设计所基于的矩形周长在早期设计阶段减少了25%,以保留它们。牛津大学的马丁·巴斯托教授莱斯特他说:‘我们有一座令人惊叹的建筑。就环境质量、各种会议/互动空间和实验室设施而言,它确实提供了我们想要的一切。美丽的中庭为建筑的居住者创造了一个焦点,也为游客创造了一个欢迎的登陆空间。该设施使我们能够与学术研究人员一起接待行业合作伙伴,并创造一种新的合作模式。我们相信我们创造了世界上独一无二的东西,许多国际游客在他们热情积极的评论中证实了这一点。
莱斯特太空公园中心外部实景图
莱斯特太空公园中心外部实景图
莱斯特太空公园中心外部实景图
莱斯特太空公园中心外部实景图
莱斯特太空公园中心外部实景图
莱斯特太空公园中心外部实景图
莱斯特太空公园中心外部实景图
莱斯特太空公园中心外部实景图
莱斯特太空公园中心外部实景图
莱斯特太空公园中心外部实景图
莱斯特太空公园中心外部实景图
莱斯特太空公园中心外部实景图
莱斯特太空公园中心外部实景图
莱斯特太空公园中心内部实景图
莱斯特太空公园中心内部实景图
莱斯特太空公园中心内部实景图
莱斯特太空公园中心内部实景图
莱斯特太空公园中心内部实景图
莱斯特太空公园中心内部实景图
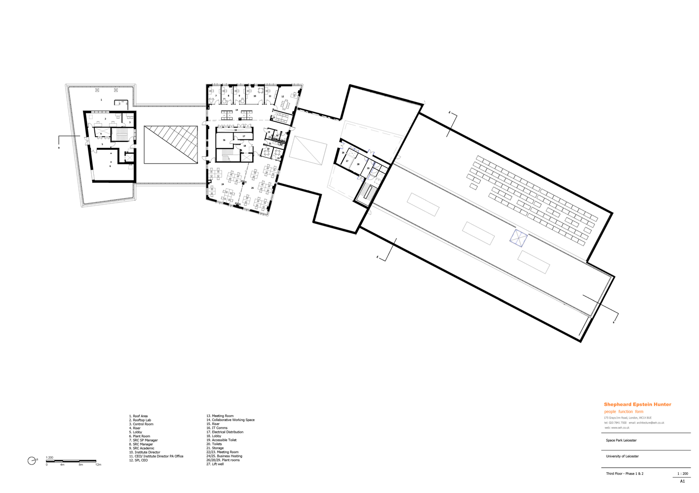
莱斯特太空公园中心平面图
莱斯特太空公园中心平面图
莱斯特太空公园中心平面图
莱斯特太空公园中心平面图
莱斯特太空公园中心平面图
莱斯特太空公园中心剖面图.jpg
莱斯特太空公园中心剖面图
莱斯特太空公园中心立面图
莱斯特太空公园中心立面图
莱斯特太空公园中心立面图
莱斯特太空公园中心立面图
客服
消息
收藏
下载
最近

































