查看完整案例

收藏

下载
项目名称:深圳创意工厂
位置:深圳
建筑师:MVRDV
创意工厂,是对2000年的一座旧厂房的改造深圳南投的都市村庄,可持续地再利用和改善建筑,而不是拆除和重建它。该项目包含了中国万科城市研究院的办公室和出租办公室的混合——尽管有这个项目,它的显著特征在本质上是公共的:楼梯穿过六层楼的建筑,通向一个屋顶,屋顶上有一系列由活竹“墙”围起来的“房间”,提供各种便利设施和活动。南投是一个古老的历史城镇,但现在是一个城中村深圳与周围的摩天大楼相比相形见绌。创意工厂是万科提出的一系列改造项目中最大的一个,全部由国内外知名建筑师设计,旨在加速南投向文化创意中心的转型。该设计不是拆除和重建,而是可持续地翻新一座废弃的工厂建筑,保留了南投的一段历史,同时比新建筑的碳排放量更低。这座建筑的原有结构得到了加固,因此可以在顶部增加一层,以最大限度地扩大建筑面积。与此同时,原来的façades已经被拆除,建筑的混凝土框架暴露在外,并保留下来,以展示建筑的历史痕迹。
新的façade从结构的边缘后退,创造了环绕整个建筑的开放式凉廊。这些允许流通,并能与同事偶遇,创造一个充满活力的创造性环境。面对一楼的一个小公共广场,一个突出的木质管状结构标志着穿过建筑的公共楼梯的入口。在里面,楼梯被镜子包裹着,用明亮的霓虹灯装饰着,创造了一个早期的美学提醒深圳城市化。在第四层,这个楼梯突出于建筑的另一侧——在转向并继续向上到达屋顶之前,有机会看到周围的屋顶。一走出楼梯,迎接游客的是一片绿色的竹子景观,充满了各种便利设施和活动。这是为了形成一个竹子“迷宫”,将屋顶分成不同的房间,每个房间都包含不同的活动:一个用于表演和活动的玻璃盒子,各种座位区,健身房,蹦床,秋千,茶馆,餐厅,舞池和象棋。这种屋顶使该项目在生态和社会方面更具可持续性:竹子创造了一个凉爽、阴凉的空间,并在密集的城市环境中支持生物多样性,而活动室为历史上一直处于劣势的社区提供了社交和休闲空间。
深圳创意工厂外部实景图
深圳创意工厂外部实景图
深圳创意工厂外部实景图
深圳创意工厂外部实景图
深圳创意工厂外部实景图
深圳创意工厂外部实景图
深圳创意工厂外部实景图
深圳创意工厂外部实景图
深圳创意工厂外部实景图
深圳创意工厂外部实景图
深圳创意工厂外部实景图
深圳创意工厂外部实景图
深圳创意工厂外部实景图
深圳创意工厂外部实景图
深圳创意工厂外部实景图
深圳创意工厂外部实景图
深圳创意工厂内部实景图
深圳创意工厂内部实景图
深圳创意工厂内部实景图
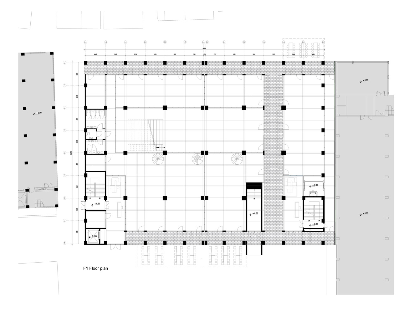
深圳创意工厂平面图
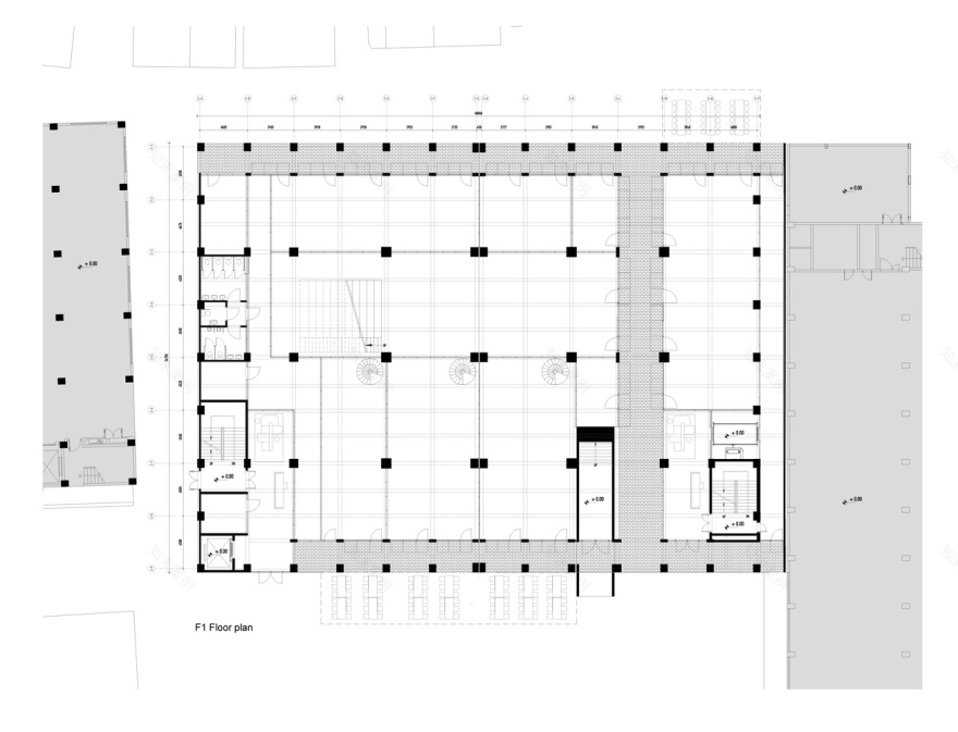
深圳创意工厂平面图
深圳创意工厂剖面图
深圳创意工厂立面图
客服
消息
收藏
下载
最近


























