查看完整案例

收藏

下载
项目名称:伊朗ECUT办公楼
位置:伊朗
建筑师: 阿利多斯特和合伙人
ECUT商业办公楼位于2005年的吉兰大道区拉什特伊朗的一个城市,这里曾经是一个很有价值的地方。地块面积约400平方米,总建筑面积约3000平方米,其中底层和夹层为联合大堂和商业用途,二层和一层为商业用途,一层为带停车库的地下室,四层为办公用途。这个项目的设计策略和执行挑战集中在建筑的用途、高度、规模和位置上,它位于商业和办公建筑的结构中,并且需要使这个项目的体量与这个结构相一致。为了创造与城市肌理的和谐,设计师专注于将大尺度的体量分成小尺度的体量,这些体量在高度和尺度上与相邻的建筑相对应。更准确地说,建筑的完整性和总体特征被保留了下来,同时产生了较小的体积。双面倾斜屋顶被添加到项目中创造和增加的微型盒子中,以实现与建筑类型的和谐拉什特通常在伊朗的北部城市。
为了推进设计的主要策略,并考虑到占用水平的限制,体量相互滑动,形成开放的露台和剩余密度。它增加了每个故事的有效面积,提高了它的空间质量,并提醒我们熟悉的村庄类型拉什特城市,带院子的房子。在建筑的细节设计中,干陶瓷立面技术和大切割陶瓷被用来避免潮湿地区的立面施工问题。此外,项目中的白色与城市的肌理相协调拉什特城市。由于该项目的位置和周围理想的城市景观,我们建议在立面上采用宽阔的透明表面。这些表面使该项目被认为是一个为办公和商业用途而设计的建筑,同时也给用户提供了最大化视野的机会。最后,ECUT办公商业建筑的设计者旨在使规模、形状和主色调与城市肌理相协调。设计过程还包括实现上述目标的指导方针,以及加强内部空间。
伊朗ECUT办公楼外部实景图
伊朗ECUT办公楼外部实景图
伊朗ECUT办公楼外部实景图
伊朗ECUT办公楼外部实景图
伊朗ECUT办公楼外部实景图
伊朗ECUT办公楼外部实景图
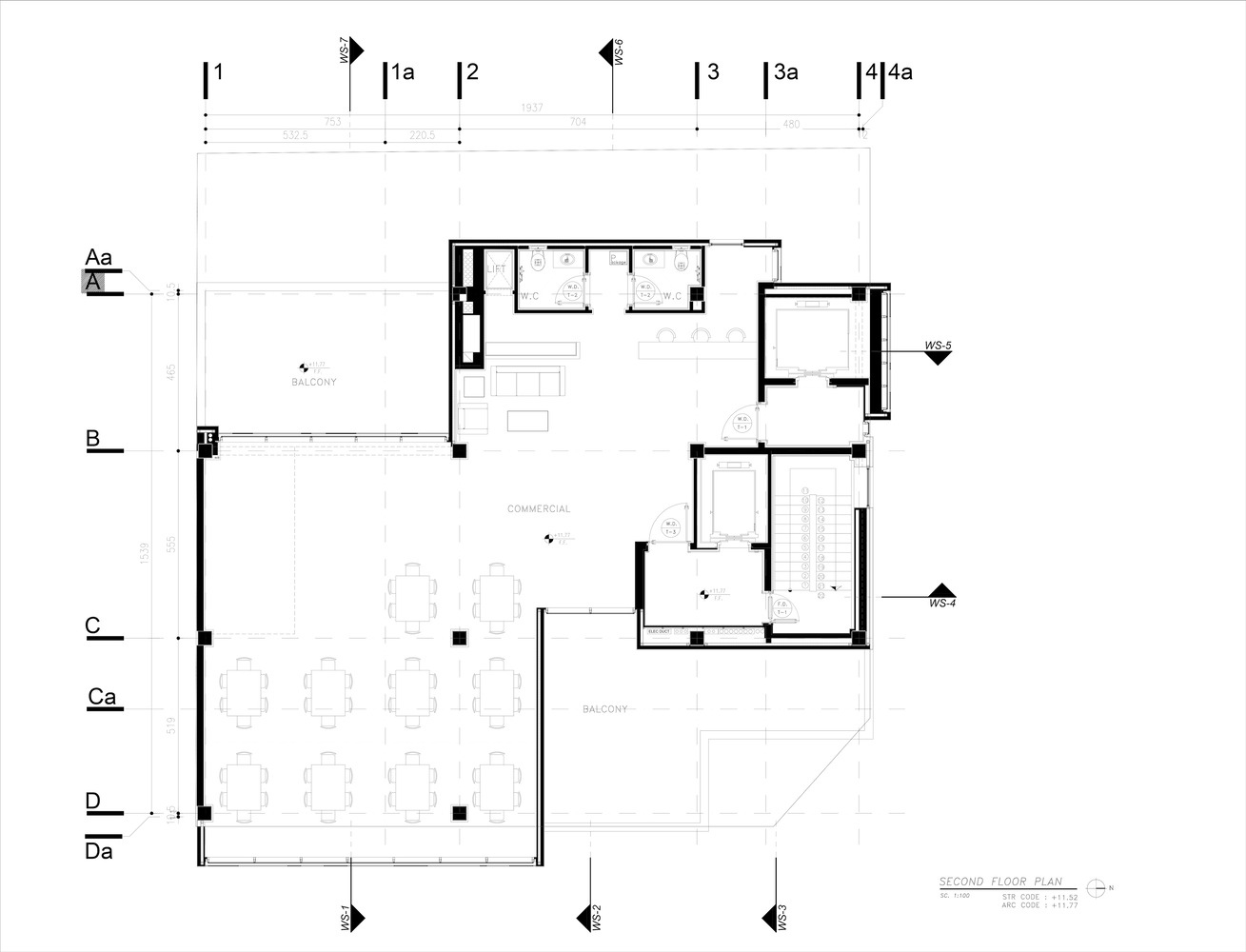
伊朗ECUT办公楼平面图
伊朗ECUT办公楼平面图
伊朗ECUT办公楼平面图
伊朗ECUT办公楼平面图
客服
消息
收藏
下载
最近













