查看完整案例

收藏

下载

翻译
Firm: Cutwork
Type: Residential › Multi Unit Housing
STATUS: Concept
Paris-based award-winning architecture design studio, Cutwork has created ReHome, an off-site modular construction solution that while originally conceived to address the housing crisis in war-torn Ukraine, seeks to address the global housing crisis equally in times of emergency and stability and the human right to shelter. Cutwork is actively seeking partners and developers who want to address the need for affordable housing around the world and let ReHome be a part of the solution.
Working with the Deutsche Gesellschaft für Internationale Zusammenarbeit (GIZ – German Society for International Cooperation), ReHome was initially developed as a low-cost, rapid-deployment housing solution to rebuild Ukraine, beginning with a demonstrator project in Lviv to showcase the concept. Known previously for their acclaimed Cortex Shelter project - Cutwork’s pioneering self-built, low-cost, long-term, ‘just add water’ housing solution to counteract the critical humanitarian crisis in refugee housing - ReHome was at first the studio’s
response to rebuilding a war torn country not only after the war, but during time of conflict when it is most needed.
While the demonstrator project in Lviv is on hold, Cutwork recognised ReHome’s potential as a project with broader scope, relevant for addressing the continued growing global housing crisis, particularly within Europe and USA. According to the National Association of Realtors, the United States is currently experiencing a housing shortage of between 5.5 and 6.8 million units, with the gap between supply and demand widening every year. In England, one estimate commissioned by the National Housing Federation (NHF) and Crisis from Heriot-Watt University, Scotland, around 340,000 new homes need to be supplied each year, of which 145,000 should be affordable. This shortage is partly due to a decline in new construction, which has failed to keep up with population growth and demand for housing. Reports show that when people are unable to access suitable housing it can result in overcrowding, more young people living with their parents for longer, impaired labour mobility, which makes it harder for businesses to recruit staff, and increased levels of homelessness.
ReHome is Cutwork’s vital and immediate response to the general housing shortage. Its off-site modular system is able to accommodate many and changing numbers of people comfortably, being easily
adaptable and expandable for more spacious living according to the evolving
needs of its inhabitants. The modular architecture is far cheaper, easier, and faster to produce than traditional construction methods and can be actioned without any of the time or geographical restraints so commonly associated with housing developments.
Cutwork was founded in the belief that the cities we live in were built for a world that no longer corresponds to the one we live in today. Cutwork’s projects reflect their belief that architects and designers need to shift perspectives on how to conceive and build space – to find new designs to support emerging lifestyles and communities of the 21st century. If the challenge of the last century was to densify cities vertically, the challenge of today is to rethink our spaces to make them more elastic in their usages and in ReHome, Cutwork demonstrates their continued commitment to this.
ReHome is designed to address three key questions vital to resolving the housing crisis across all territories -
1. What role can off-site, modular construction play to help combat the global housing crisis better, faster, and cheaper with immediate effect?
2. How can families and groups of 4-6 people in emergency housing situations live together in compact spaces while maintaining independence and personal space?
3. Can solutions be designed to extend beyond the present conditions of the housing crisis and continue to be useful once more homes are available universally?
Cutwork has specifically designed ReHome to meet these demands. Composed of 27m2 modular units, the blocks can be stacked like LEGO bricks to complete a full residential block up to six stories in significantly less time and cost compared with traditional construction methods (up to 40% less time for teams on-site to complete the building). This modular nature allows ReHome to adapt to a wide-range of conditions and contexts, enabling rapid re-urbanization across diverse environments.
Another key to ReHome is its affordability. Says Cutwork co-founder and lead architect, Antonin Yuji Maeno, “Regarding the size of the challenge ahead, we can see how prefabrication reduces the cost dramatically for creating affordable, modular housing with economies of scale.”
Beyond just providing an affordable roof, Cutwork has considered at length how ReHome can support residents’ well-being through the unsettling time of potential homelessness. ReHome is designed to completely rethink how compact space can accommodate full families of four to six people and avoid any sense of overcrowding in emergency situations.
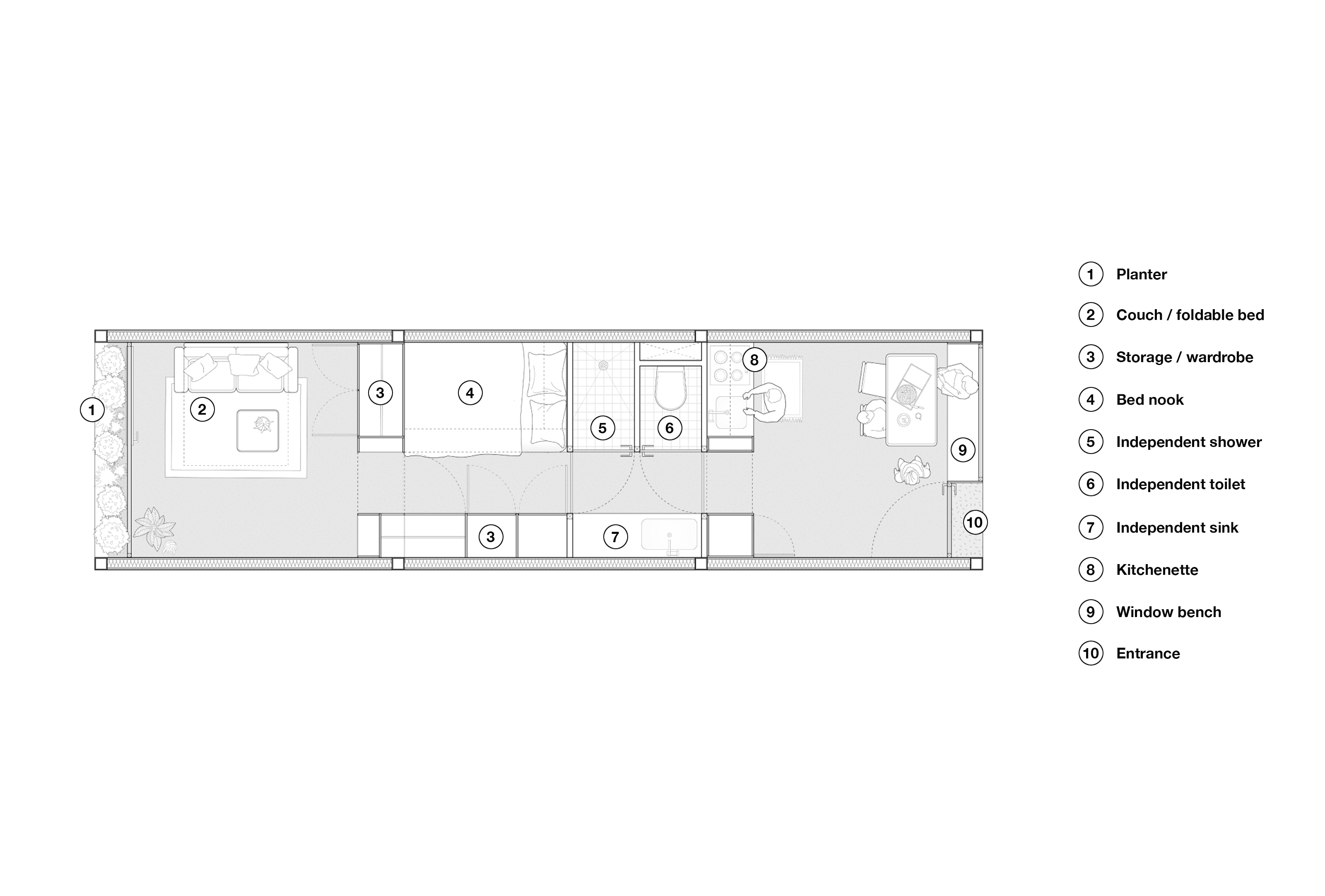
Cutwork has created one 27m2 modular construction unit that can be combined to create five apartment typologies when non-load bearing walls are removed, as well as designing a number of shared spaces:
● Apartment Typologies
○ Simple: Single Unit (27m2, up to 4 people)
○ Double: Side x Side Unit (54m2, up to 6 people)
○ Duplex: Stacked Unit (54m2, up to 6 people)
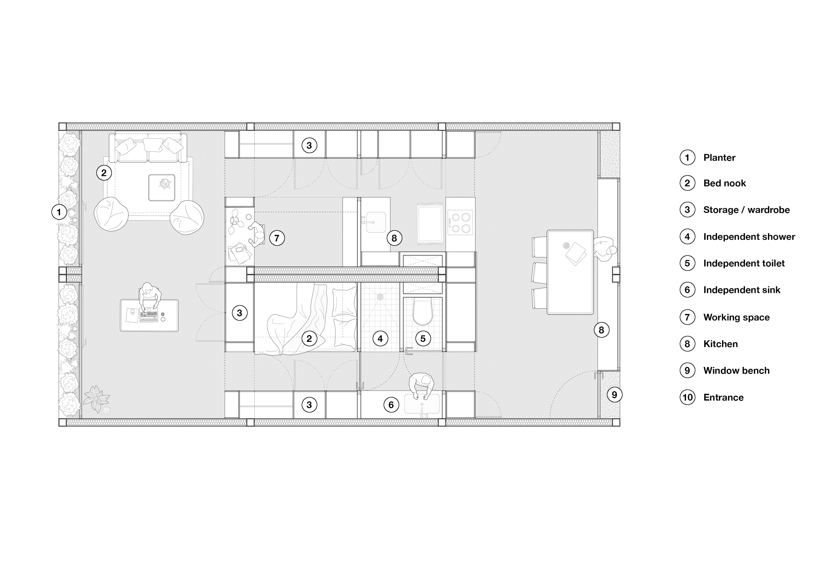
○ Tetrix: L-Unit (81m2, up to 8 people)
○ Doublex: Combination Unit (108m2, up to 10 people)
● Shared Spaces
○ Entrance Unit (27m2)
○ Shared Community Kitchen (27m2)
○ Staircase Unit (8m2)
○ Communal Rooftop Planted Area (27m2)
Each Standard Living Unit is partitioned into three sections; this compartmentalisation creates more flexibility, ensuring residents are not completely on top of each other within the compact space and maintaining personal and private space. The front door opens into a small kitchen and dining area, the central block includes a bed nook and a bathroom, and the end block is a multi-use living room with floor-to-ceiling windows and a convertible sofa-bed.
The bathroom features a unique double-door frame system. The bathroom can either be closed off as a single private space, or the door to the bedroom and the door to the kitchen can be closed in second positions to make the shower and the toilet smaller private spaces. This allows different people to use the shower, the toilet, and the sink independently all at the same time, giving inhabitants more flexibility and access to facilities without the need to queue.
The Loft Living Unit, designed for the Lviv demonstrator project includes a mezzanine which extends the ceiling height from three to four metres. Ladders access this loft space where there are two individual beds that can be
combined for couples or partitioned for individuals.
The Shared Community Kitchen & Laundry Units are designed to encourage social interaction and enable residents to meet, connect, and regain a sense of
community that may have been disrupted by the war. Inhabitants can gather, cook, and eat together, or just use the room as a co-working space or lounge. The unit also includes a small, shared recording studio for residents
that includes good lighting, a high-quality microphone, and acoustic padding. This space is designed to empower residents to create, record their journey, collaborate together, and even process traumatic experiences during a crisis.
ReHome will not only help address society’s urgent housing needs, but it is carefully designed to stand the test of time. Units can accommodate full families in a compact space while providing comfortable, affordable, well-designed and versatile homes for groups including couples, young professionals, students, and the elderly, when the housing crisis has eased. Specific walls in all unit types are designated as non-load bearing and with no technical elements inside them. These walls can be removed, giving building owners flexibility to easily combine multiple units and create a variety of different sized apartments.
Cutwork’s co-founder and lead architect Antonin Yuji Maeno puts it: “The idea is not to build strictly emergency shelters that won’t be used in the long term, but to build good quality affordable housing that can accommodate the population in and provide shelter and security in all environments and situations.”
Cutwork’s ReHome enables considered and innovative design, created in response to emergency needs, to be readapted for all scenarios - providing vital stability and security to those where having a roof over their heads is not always a basic human right.
客服
消息
收藏
下载
最近
















